Ngôi nhà kết hợp giữa truyền thống và hiện đại rất ấn tượng

(PLO)- Tọa lạc tại một khu phố sầm uất, ngôi nhà là sự giao thoa ấn tượng giữa truyền thống và hiện đại.

ngoi-nha-1.jpg
Phu Luong house có diện tích 212 m² được thiết kế bởi kiến trúc sư AICC Architecture.
Ngôi nhà được xây dựng dựa trên ý tưởng từ những giá trị truyền thống trong cuộc sống hiện tại. Do đó, kiến ​​trúc sư đã chuyển hướng không gian trọng tâm vào bên trong - nơi đặt không gian thờ cúng tổ tiên.
Ngôi nhà được xây dựng dựa trên ý tưởng từ những giá trị truyền thống trong cuộc sống hiện tại. Do đó, kiến ​​trúc sư đã chuyển hướng không gian trọng tâm vào bên trong - nơi đặt không gian thờ cúng tổ tiên.
ngoi-nha-3.jpg
Không gian này được thiết kế theo kiến ​​trúc gỗ truyền thống Việt Nam.
ngoi-nha-4.jpg
Ngôi nhà gồm hai kết cấu chính: kết cấu gỗ truyền thống và kết cấu bê tông hiện đại sử dụng hệ thống nhôm kính.
ngoi-nha-5.jpg
Kiến trúc sư còn phải tìm ra giải pháp hài hòa nhất giữa kiến ​​trúc truyền thống và hiện đại trong cùng một không gian.
ngoi-nha-6.jpg
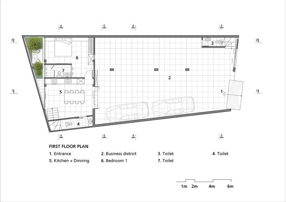
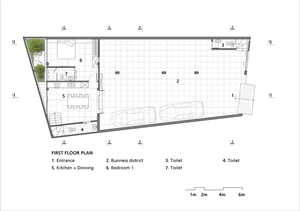
Tầng trệt của ngôi nhà được chia thành hai phần. Phần trước là khu kinh doanh thương mại, còn phần sau gồm phòng ăn, bếp, phòng ngủ riêng và hai phòng tắm.
ngoi-nha-7.jpg
Từ lối vào chính sẽ đi vào phòng khách, bếp, khu vực ăn uống và phòng ngủ riêng biệt cùng với phòng tắm chung.
ngoi-nha-8.jpg
Tiếp theo là sân trong, tạo sự kết nối giữa khu vực khách, bếp, khu ăn uống.
ngoi-nha-9.jpg
Kiến trúc sư sử dụng các vật liệu truyền thống như bê tông đúc và kết cấu bê tông cốt thép.
ngoi-nha-10.jpg
Tầng hai của ngôi nhà bao gồm các không gian được sắp xếp tuần tự từ ngoài vào trong.
ngoi-nha-11.jpg
Tầng ba của ngôi nhà gồm ba phòng ngủ riêng và một phòng tắm chung. Tầng bốn làm khu vui chơi và phòng kỹ thuật, đáp ứng nhu cầu giải trí, công nghệ của gia đình.
ngoi-nha-12.jpg
Trong một khu phố nhộn nhịp, kiến trúc sư đã tạo ra một không gian sống yên bình và thư giãn.
ngoi-nha-13.jpg
Mặt bằng tầng một.
ngoi-nha-14.jpg
Mặt bằng tầng hai.
ngoi-nha-15.jpg
Mặt bằng tầng ba.
ngoi-nha-16.jpg
Mặt bằng tầng bốn.
ngoi-nha-17.jpg
Mặt bằng mái.

Đừng bỏ lỡ

Video đang xem nhiều

Đọc thêm