Biệt thự gây trầm trồ bởi vẻ ngoài nổi bật ở vùng ven Sài Gòn

Biệt thự gây trầm trồ bởi vẻ ngoài nổi bật ở vùng ven Sài Gòn

(PLO)- Kiến trúc sư bố trí hệ lam gỗ linh hoạt đóng - mở cho mặt tiền biệt thự đã đem lại ấn tượng khó quên.

The Lodge Villa có diện tích 20x20m, tọa lạc tại quận Bình Tân, TP.HCM và được thiết kế bởi kiến trúc sư Phạm Thị Mỹ An (MM++ Architects).

The Lodge Villa có diện tích 20x20m, tọa lạc tại quận Bình Tân, TP.HCM và được thiết kế bởi kiến trúc sư Phạm Thị Mỹ An (MM++ Architects).

Nằm trong một khu dân cư ven TP.HCM, The Lodge Villa gây trầm trồ với vẻ ngoài nổi bật.

Nằm trong một khu dân cư ven TP.HCM, The Lodge Villa gây trầm trồ với vẻ ngoài nổi bật.

Mặt tiền của công trình được bố trí hệ lam gỗ linh hoạt đóng - mở dựa theo nhu cầu sử dụng, đem lại ấn tượng khi nhìn từ bên ngoài.

Mặt tiền của công trình được bố trí hệ lam gỗ linh hoạt đóng - mở dựa theo nhu cầu sử dụng, đem lại ấn tượng khi nhìn từ bên ngoài.

Cách xếp từng viên gạch ở phần mái cho thấy nét nổi bật của biệt thự so với những ngôi nhà xung quanh.

Cách xếp từng viên gạch ở phần mái cho thấy nét nổi bật của biệt thự so với những ngôi nhà xung quanh.

Tầng trệt ngôi nhà gồm nơi để xe, sân vườn nhỏ, một toilet chung, khu vực bếp nối thông với phòng ăn, phòng khách, phòng ngủ cho ông bà và thang máy.

Tầng trệt ngôi nhà gồm nơi để xe, sân vườn nhỏ, một toilet chung, khu vực bếp nối thông với phòng ăn, phòng khách, phòng ngủ cho ông bà và thang máy.

Chính nhờ hệ lam, ngôi nhà cũng hạn chế hấp thụ nhiệt độ từ môi trường một cách tối đa, chắt lọc nguồn ánh sáng chiếu vào không gian nội thất.

Chính nhờ hệ lam, ngôi nhà cũng hạn chế hấp thụ nhiệt độ từ môi trường một cách tối đa, chắt lọc nguồn ánh sáng chiếu vào không gian nội thất.

Không gian bên trong là những hình khối kiến trúc được sắp xếp một cách hợp lý.

Không gian bên trong là những hình khối kiến trúc được sắp xếp một cách hợp lý.

Từng khu vực được kết nối với nhau bởi thiên nhiên.

Từng khu vực được kết nối với nhau bởi thiên nhiên.

Khoảng xanh như điểm nhấn cân bằng tổng hoà, liên kết các không gian chức năng từ trước ra sau.

Khoảng xanh như điểm nhấn cân bằng tổng hoà, liên kết các không gian chức năng từ trước ra sau.

Tất cả các khối công năng đều có tầm nhìn mở hướng ra mảng xanh thông qua hệ cửa kính trong suốt.

Tất cả các khối công năng đều có tầm nhìn mở hướng ra mảng xanh thông qua hệ cửa kính trong suốt.

Ngay giữa trung tâm ngôi nhà, kiến trúc sư đã bố trí một khu vườn tươi mát.

Ngay giữa trung tâm ngôi nhà, kiến trúc sư đã bố trí một khu vườn tươi mát.

Mỗi đường nét trong ngôi nhà đều được xử lý một cách gọn ghẽ.

Mỗi đường nét trong ngôi nhà đều được xử lý một cách gọn ghẽ.

Các chi tiết nội thất chắt lọc tối đa và được đưa vào rất duyên, tạo nên linh hồn cho ngôi nhà.

Các chi tiết nội thất chắt lọc tối đa và được đưa vào rất duyên, tạo nên linh hồn cho ngôi nhà.

Gia chủ quyết liệt theo đuổi thái độ sống thuận tự nhiên và tích hợp nhiều công năng tiện nghi nhất có thể.

Gia chủ quyết liệt theo đuổi thái độ sống thuận tự nhiên và tích hợp nhiều công năng tiện nghi nhất có thể.

Các không gian trong nhà đều có sự tương tác giữa con người với thiên nhiên, giữa con người với con người.

Các không gian trong nhà đều có sự tương tác giữa con người với thiên nhiên, giữa con người với con người.

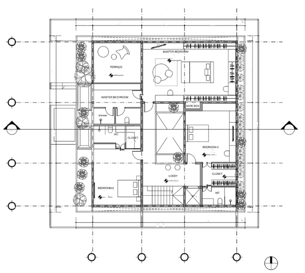
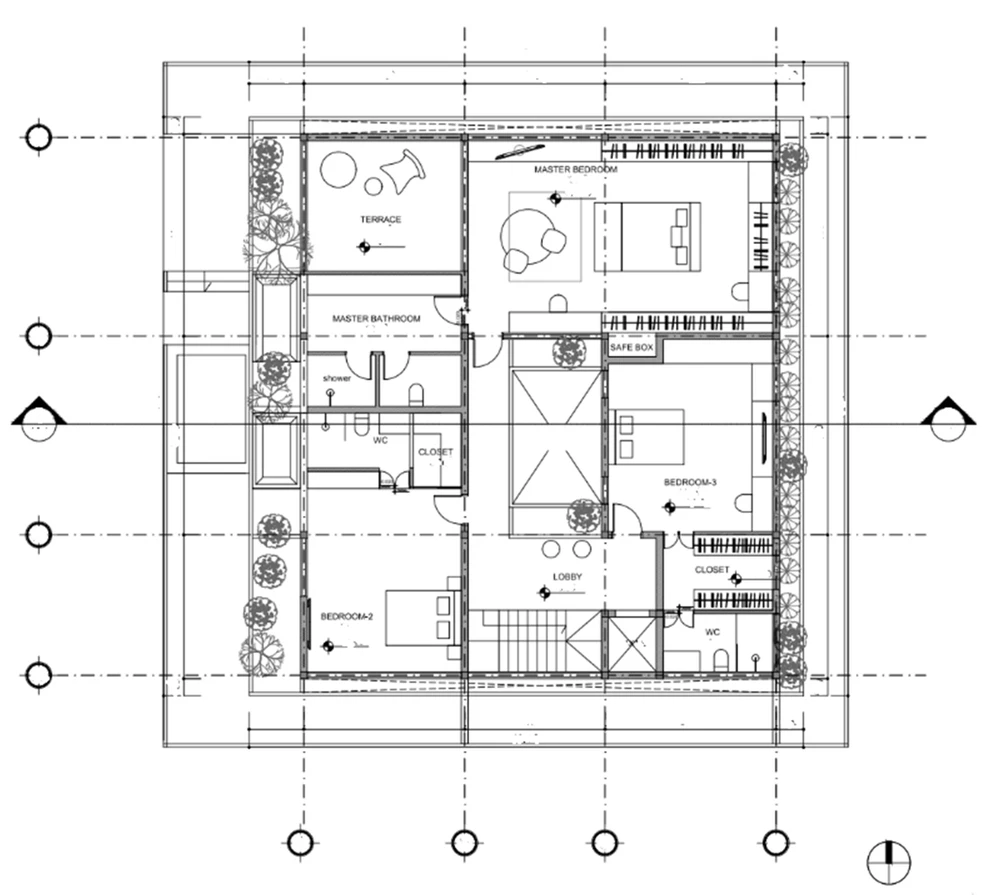
Tầng một là phòng ngủ master và hai phòng ngủ cho con gái.

Tầng một là phòng ngủ master và hai phòng ngủ cho con gái.

Ngay khi quay trở về ngôi nhà, gia chủ sẽ được tìm đến với những cảm xúc thư thái, bình yên.

Ngay khi quay trở về ngôi nhà, gia chủ sẽ được tìm đến với những cảm xúc thư thái, bình yên.

Mỗi không gian phòng ngủ đều kết nối với cây xanh bên ngoài.

Mỗi không gian phòng ngủ đều kết nối với cây xanh bên ngoài.

Kiến trúc sư sử dụng tông màu gỗ cho không gian nghỉ ngơi.

Kiến trúc sư sử dụng tông màu gỗ cho không gian nghỉ ngơi.

Khu vệ sinh thiết kế cửa riêng, kết nối với bên ngoài.

Khu vệ sinh thiết kế cửa riêng, kết nối với bên ngoài.

Tầng hai là phòng thờ, phòng karaoke (sinh hoạt chung), sân thượng, phòng xông hơi.

Tầng hai là phòng thờ, phòng karaoke (sinh hoạt chung), sân thượng, phòng xông hơi.

Từ khu vực phòng tắm bồn, phòng xông hơi, phòng karaoke đều được bố trí trong ngôi nhà, tạo nên một nơi chốn đầy đủ, tiện nghi và thoải mái.

Từ khu vực phòng tắm bồn, phòng xông hơi, phòng karaoke đều được bố trí trong ngôi nhà, tạo nên một nơi chốn đầy đủ, tiện nghi và thoải mái.

Đọc thêm