Nhà phố 3 tầng khoác lên mình 'chiếc áo' hiện đại

Nhà phố 3 tầng khoác lên mình 'chiếc áo' hiện đại

(PLO)- Công trình với thiết kế lạ mắt nhưng vẫn mang lại sự gần gũi với thiên nhiên thông qua các vật liệu mộc mạc.

Tropical Townhouse có diện tích 102 m2 tọa lạc tại khu đô thị mới tỉnh Bình Dương. Kiến trúc sư Công ty Kiến trúc Xây dựng Đất Thủ phải làm sao cho ngôi nhà khoác lên một chiếc áo hiện đại mà bên trong vẫn có thể giữ được giá trị văn hóa gia đình Việt.

Từ đó, kiến trúc sư đưa ra các giải pháp thiết kế thông qua ba khía cạnh lớn. Đầu tiên là thiết kế không gian mở kết nối đại gia đình.

Một sự thay đổi nhỏ trong kết cấu thông qua việc xóa bỏ vách ngăn giữa các khu chức năng và dùng thông tầng trung tâm. Điều này không chỉ mở rộng mà còn tạo nên phép nối giữa các không gian, giữa các thành viên.

Thứ hai, thiết kế không gian để con người sống hòa nhập cùng thiên nhiên. Không gian sinh sống dù ở đô thị vẫn được hài hòa với cây cối, nắng gió mây trời. Nơi con người và thiên nhiên cùng chia sẻ một không gian thở.

Thứ ba, thiết kế không gian lưu giữ nét kiến trúc người Việt xưa. Vật liệu bản địa luôn chiếm vị trí nhất định trong cảm nhận mỗi người.

Với công trình này, kiến trúc sư đã tạo nên bản phối mới trên nền vật liệu gạch đinh, gạch bông, nhưng vẫn truyền tải trọn vẹn sự mộc mạc, chân tình.

Ngoài ra, công trình đã xóa bỏ định kiến về nhà phố trong hẻm thông qua ba yếu tố sau. Các không gian tập trung lại một chỗ để tăng kết nối gia đình. Các không gian được bố trí với mục tiêu hướng vào khoảng sinh hoạt chung giữa nhà, thông qua khoảng thông tầng theo trục đứng.

Cùng với đó là việc xóa bỏ các vách ngăn giữa các khu chức năng. Điều này không chỉ tăng diện tích của không gian chung, mà còn giúp các thành viên trong gia đình có thể dễ dàng tương tác với nhau ở các vị trí khác nhau.

Tiếp đến, kiến trúc sư đưa ánh nắng vào nhà nhưng không nóng. Giải pháp thông tầng được sử dụng thông minh không chỉ khai thác sự rộng mở mà còn mang ánh sáng đến từng không gian sử dụng, tăng cường đối lưu gió theo trục đứng, tạo sự kết nối từ tầng trệt lên tầng 1, tầng 2.

Ngoài ra, một phần diện tích được dành làm “hẻm” gió, cùng lõi giếng trời được cấy vào giữa công trình, giúp đẩy khí nóng bay lên, mang khí lạnh xuống khắp nhà.

Cuối cùng là làm cho kiến trúc hiện đại quen thuộc hơn và kiến trúc truyền thống được sống lại. Sự sắp đặt đầy cá tính giữa gạch nung đỏ thô cứng với vật liệu kính hiện đại.

Hay những ô gạch bông, gạch thông gió, được vận dụng để tạo điểm nhấn cho không gian vô cùng mới mẻ. Chính sự kết hợp đã mang lại cảm giác vừa gần vừa thời thượng.

Chủ nhà chia sẻ: Công trình hoàn thành vừa đáp ứng về công năng vừa ôm ấp mọi cảm xúc riêng biệt về vị trí yêu thích cho tách trà sáng trà chiều, góc học tập đủ đầy ánh sáng cho con, một khu vườn dạo bước mỗi ngày.

Ở đó, họ có thể dành nhiều thời gian hơn cho bản thân và cho gia đình, hơn hết là được ngắm nhìn những đứa trẻ của mình lớn lên và hạnh phúc.

Sân thượng được bố trí nhiều cây xanh.
Sân thượng được bố trí nhiều cây xanh.
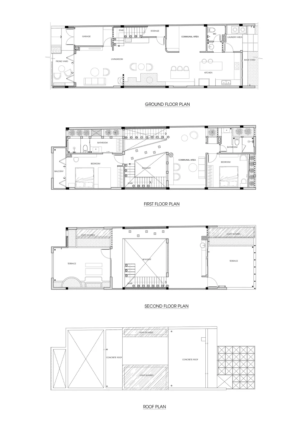
Mặt bằng ngôi nhà.

Mặt bằng ngôi nhà.

Đọc thêm