Ngôi nhà xưa nhưng không cũ ở Bình Dương

Ngôi nhà xưa nhưng không cũ ở Bình Dương

(PLO)- Ngôi nhà ở Bình Dương với thiết kế hiện đại nhưng vẫn giữ lại nếp nhà xưa của gia đình gắn bó hơn ba thập kỷ.
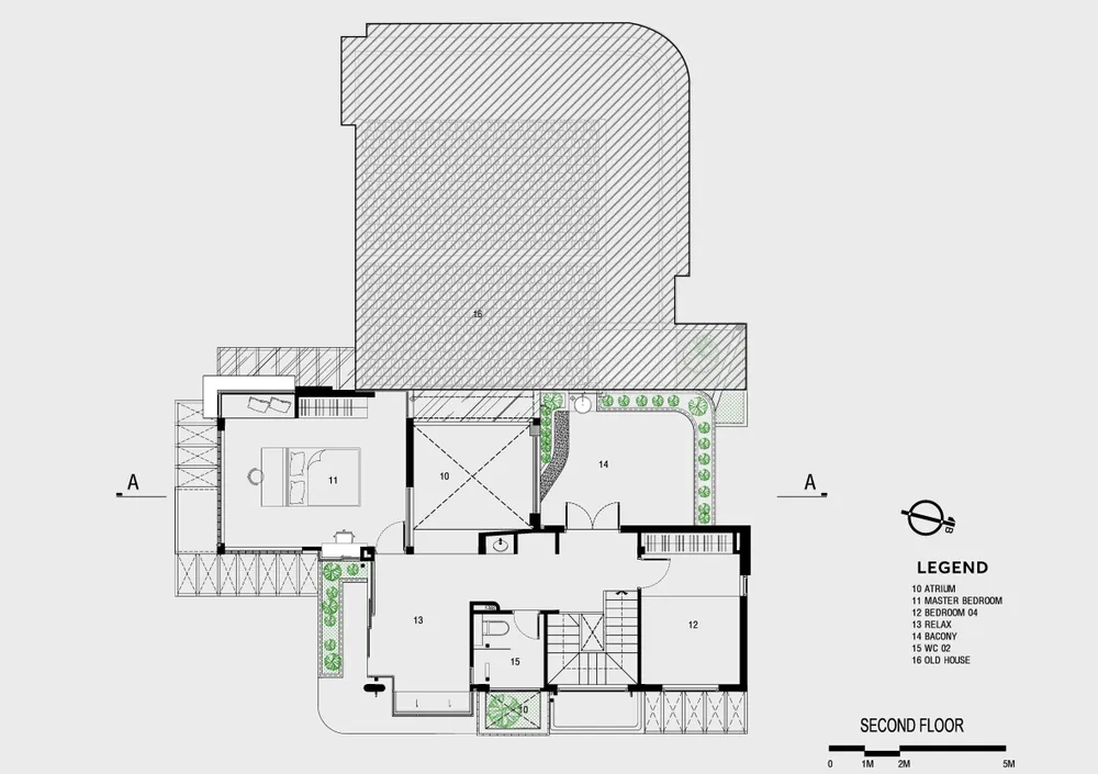
The Red Brick House có diện tích 98 m2 tọa lạc tại xã An Sơn, TP Thuận An, tỉnh Bình Dương.

The Red Brick House có diện tích 98 m2 tọa lạc tại xã An Sơn, TP Thuận An, tỉnh Bình Dương.

Kiến trúc sư Công ty Kiến trúc Xây dựng Đất Thủ phải tìm cách hình thành một ngôi nhà hiện đại nhưng gia đình vẫn cảm thấy gần gũi với nếp nhà đã gắn bó hơn ba thập kỷ và gần gũi với vùng đất.
Kiến trúc sư Công ty Kiến trúc Xây dựng Đất Thủ phải tìm cách hình thành một ngôi nhà hiện đại nhưng gia đình vẫn cảm thấy gần gũi với nếp nhà đã gắn bó hơn ba thập kỷ và gần gũi với vùng đất.
Ngôi nhà được kỳ vọng sẽ lưu giữ những dấu vết “nông thôn” duyên dáng trong bối cảnh đô thị mới.
Ngôi nhà được kỳ vọng sẽ lưu giữ những dấu vết “nông thôn” duyên dáng trong bối cảnh đô thị mới.
Mái ngói trầm mặc gợi lên ký ức quen thuộc, vẫn giữ được sự hài hòa về hình thức kiến trúc của những ngôi nhà lân cận.
Mái ngói trầm mặc gợi lên ký ức quen thuộc, vẫn giữ được sự hài hòa về hình thức kiến trúc của những ngôi nhà lân cận.
Từng viên gạch nung đỏ được sử dụng mang đến sự hồi sinh cho những giá trị truyền thống.

Từng viên gạch nung đỏ được sử dụng mang đến sự hồi sinh cho những giá trị truyền thống.

Công năng nhà được ngăn cách nhẹ nhàng bởi những vật dụng như bàn, ghế.
Công năng nhà được ngăn cách nhẹ nhàng bởi những vật dụng như bàn, ghế.
Mọi góc nhà đều có thể dễ dàng cảm nhận màu xanh của bầu trời và của cây cối, thông qua hệ thống kính được đặt ở vị trí phù hợp.
Mọi góc nhà đều có thể dễ dàng cảm nhận màu xanh của bầu trời và của cây cối, thông qua hệ thống kính được đặt ở vị trí phù hợp.
Kiến trúc sư đã sử dụng nguyên tắc đối lưu không khí, bằng cách bố trí hệ cửa chớp trên trần nhà cùng thiết kế thông tầng.
Kiến trúc sư đã sử dụng nguyên tắc đối lưu không khí, bằng cách bố trí hệ cửa chớp trên trần nhà cùng thiết kế thông tầng.
Từ đó, nguồn ánh sáng và gió tự nhiên cũng được bắt trọn và len lỏi đến từng khu vực.

Từ đó, nguồn ánh sáng và gió tự nhiên cũng được bắt trọn và len lỏi đến từng khu vực.

Chị chủ nhà cũng tự thưởng cho bản thân mình một không gian nghỉ ngơi ở tầng trên. Những ô cửa kính lớn đóng mở linh hoạt.
Chị chủ nhà cũng tự thưởng cho bản thân mình một không gian nghỉ ngơi ở tầng trên. Những ô cửa kính lớn đóng mở linh hoạt.
Khu vực vệ sinh thiết kế gần gũi, đón ánh nắng trực tiếp tạo sự thông thoáng, khô ráo cho không gian này.
Khu vực vệ sinh thiết kế gần gũi, đón ánh nắng trực tiếp tạo sự thông thoáng, khô ráo cho không gian này.
Bất cứ ở không gian nào, ở lúc nào, dù trong nhà hay bên ngoài gia chủ đều cảm thấy ấm áp, thoải mái nhất.
Bất cứ ở không gian nào, ở lúc nào, dù trong nhà hay bên ngoài gia chủ đều cảm thấy ấm áp, thoải mái nhất.
Kiến trúc sư cho biết, với những giải pháp trên, ngôi nhà có thể tự “mở” và tự “thở” được.
Kiến trúc sư cho biết, với những giải pháp trên, ngôi nhà có thể tự “mở” và tự “thở” được.

Đọc thêm