Công trình Nhà của Bơ được xây dựng trên khu đất 100 m2, là tổ ấm của một gia đình nhỏ ở TP Bắc Giang.
Kiến trúc sư Nguyễn Đăng Thắng (TMTA Architecture) cùng các cộng sự đã tạo ra không gian sống đảm bảo các yếu tố tự nhiên như ánh sáng, nắng, gió, cây xanh... Đồng thời, công trình sẽ giảm đi sự nhỏ hẹp, tối tăm và bức bí của những căn nhà phố.
![]() |
![]() |
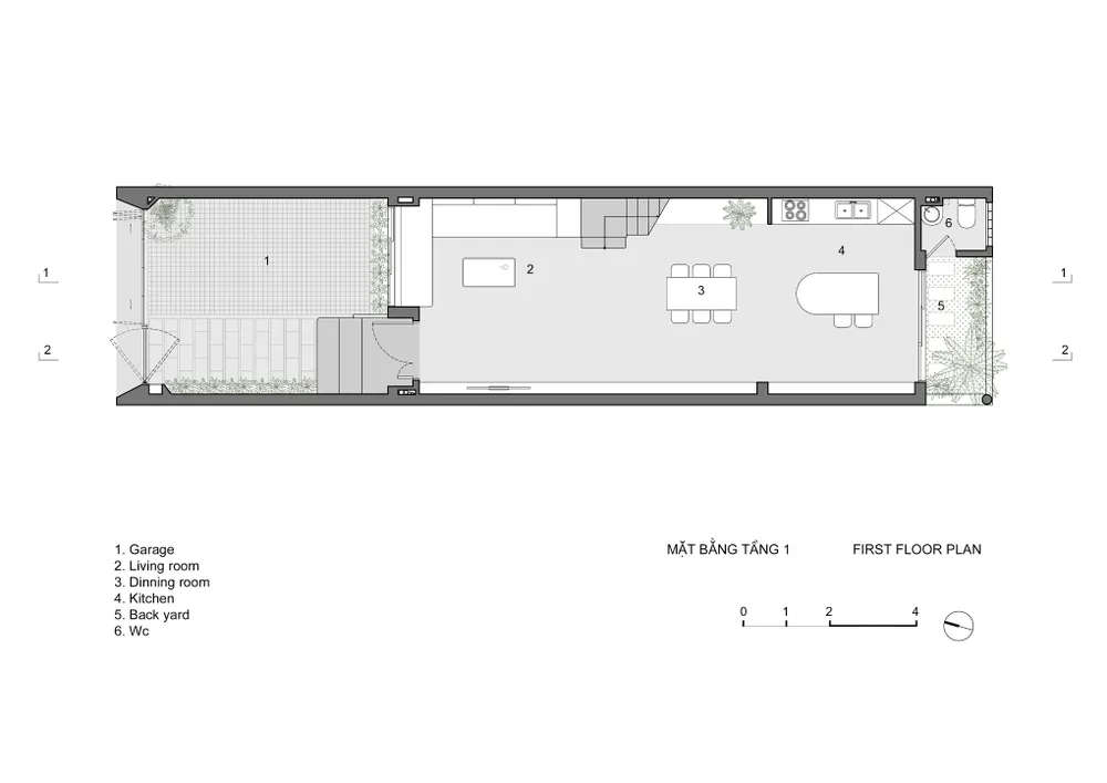
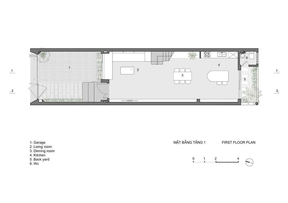
Tầng một là không gian chung của gia đình bao gồm sân vườn, không gian phòng khách, phòng ăn và bếp.
Bên cạnh đó, để tăng tính kết nối với thiên nhiên thì giếng trời là một yếu tố quan trọng.
![]() |
Ngôi nhà có thiết kế hiện đại kết hợp sử dụng các vật liệu truyền thống như ngói đỏ, sàn đá rửa granito, song sắt họa tiết.
![]() |
Các không gian chung không sử dụng máy lạnh, chỉ dùng quạt trần mà vẫn luôn mát mẻ.
![]() |
![]() |
Kiến trúc sư cho biết, gió chính vào từ vườn sau nhà được làm mát một phần nhờ độ ẩm của cây cối, tiếp tục lưu thông cho các không gian phía trước và giếng trời.
Khí nóng thoát ra qua lỗ gạch thông gió nằm sát mái kính giữ cho nhiệt độ trong nhà vào mùa hè luôn ở mức dễ chịu.
![]() |
![]() |
Kiến trúc sư bố cục kiến trúc lệch tầng với giếng trời ở trung tâm ngôi nhà, kết hợp với khoảng trống ở vườn sau tầng trệt vừa đúng hướng gió chính Đông Nam.
Mỗi lần gia chủ cần lấy gió nhiều hay ít chỉ cần trượt mở cửa ở vườn sau, toàn bộ gió sẽ ùa vào khoảng thông tầng và các không gian ở mặt trước.
![]() |
Mảng tường ở một phía thông tầng được sơn màu xanh bạc hà kết hợp cùng màu trắng tinh khiết của đá mài, sắc xanh của cây đã tạo nên một không gian trong trẻo và tràn đầy sức sống.
Khu vực bàn ăn được đặt giữa khoảng giếng trời giúp không gian sum họp của gia đình nhận được nhiều sự chú ý.
![]() |
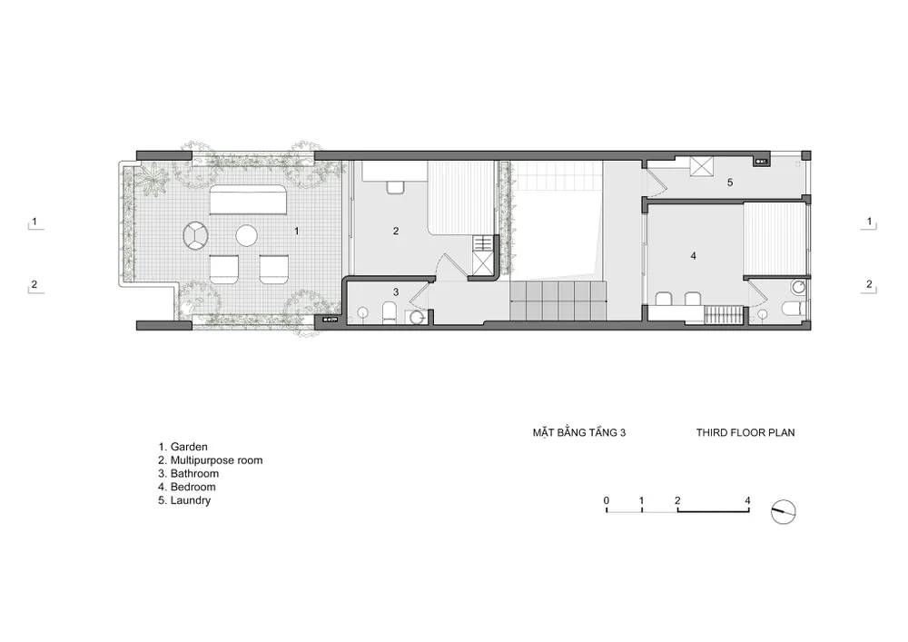
Tầng hai là sự kết hợp giữa chung và riêng. Không gian sinh hoạt chung được đặt ở trung tâm tầng hai, hướng ra khu vực giếng trời tràn ngập ánh sáng.
Phòng thờ được đặt ở phía tầng lệch, trong khi phòng ngủ của bố mẹ có ban công riêng được đặt ở mặt tiền.
![]() |
Tất cả phòng riêng đều được thiết kế với diện tích chỉ vừa đủ nhu cầu, để dành phần còn lại cho không gian chung của gia đình và các khoảng trống lấy ánh sáng và gió.
![]() |
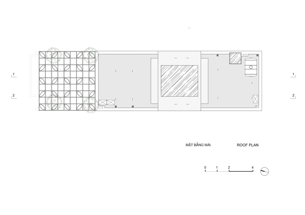
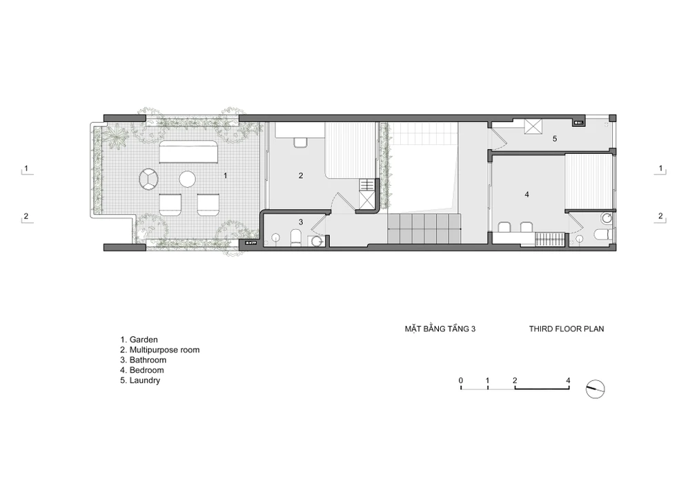
Tầng ba được thiết kế để phù hợp với nhu cầu làm việc, vui chơi cho cả gia đình.
Một khu vườn sân thượng được đặt ở phía trước kết nối với phòng đa năng để bố mẹ vừa có thể làm việc bên trong vừa có thể quan sát các con chơi đùa.
![]() |
![]() |
![]() |
![]() |
![]() |
















