Thiết kế nhà 5 tầng vừa ở vừa cho thuê

(PLO)- Ngôi nhà không chỉ ấn tượng với mặt tiền lạ mắt mà còn vừa là văn phòng cho thuê vừa là không gian sống của gia đình 5 thành viên.
Ngôi nhà nằm trong một con hẻm yên tĩnh trên đường Nguyễn Hữu Tiến, phường Tây Thạnh, quận Tân Phú, TP.HCM.

Ngôi nhà nằm trong một con hẻm yên tĩnh trên đường Nguyễn Hữu Tiến, phường Tây Thạnh, quận Tân Phú, TP.HCM.

NHT House xây dựng trên khu đất có diện tích 100 m2, do kiến trúc sư Vũ Hà Anh (VHA Architecture) thiết kế.

NHT House xây dựng trên khu đất có diện tích 100 m2, do kiến trúc sư Vũ Hà Anh (VHA Architecture) thiết kế.

NHT House là dự án về nhà ở kết hợp với văn phòng cho thuê.

NHT House là dự án về nhà ở kết hợp với văn phòng cho thuê.

Với mặt tiền chính là hướng Nam khiến cho công trình luôn được mát mẻ.

Với mặt tiền chính là hướng Nam khiến cho công trình luôn được mát mẻ.

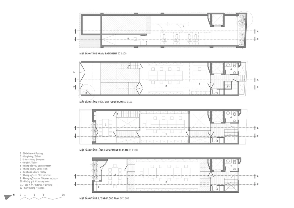
Công trình có năm tầng với hai công năng chính là không gian văn phòng làm việc và không gian nhà ở.

Công trình có năm tầng với hai công năng chính là không gian văn phòng làm việc và không gian nhà ở.

Lõi giao thông chính và khu vệ sinh được bố trí phía sau tạo ra một không gian lớn phía trước.

Lõi giao thông chính và khu vệ sinh được bố trí phía sau tạo ra một không gian lớn phía trước.

Diện tích lớn này làm cho không gian cho thuê văn phòng và nhà ở được trở nên rộng rãi tối đa.

Diện tích lớn này làm cho không gian cho thuê văn phòng và nhà ở được trở nên rộng rãi tối đa.

Về khối văn phòng là nơi cần tập trung với cường độ cao và tránh ảnh hưởng tới hiệu quả làm việc, kiến trúc sư đã hạn chế tối đa việc sử dụng ánh sáng mặt trời trực tiếp.

Về khối văn phòng là nơi cần tập trung với cường độ cao và tránh ảnh hưởng tới hiệu quả làm việc, kiến trúc sư đã hạn chế tối đa việc sử dụng ánh sáng mặt trời trực tiếp.

Việc hạn chế sử dụng ánh sáng mặt trời trực tiếp khiến cho không gian làm việc tránh mất tập trung.

Việc hạn chế sử dụng ánh sáng mặt trời trực tiếp khiến cho không gian làm việc tránh mất tập trung.

Kiến trúc sư cũng giảm việc sử dụng kính (vật liệu phổ biến khi thiết kế văn phòng) giúp tiết kiệm chi phí khi sử dụng máy điều hòa không khí.

Kiến trúc sư cũng giảm việc sử dụng kính (vật liệu phổ biến khi thiết kế văn phòng) giúp tiết kiệm chi phí khi sử dụng máy điều hòa không khí.

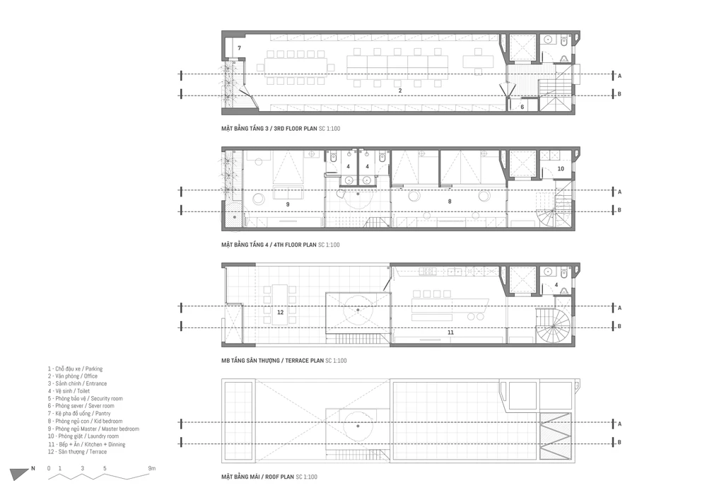
Hai tầng trên là không gian nhà ở, dành cho gia đình gồm hai thế hệ gồm ba, mẹ, con trai và hai em gái.

Hai tầng trên là không gian nhà ở, dành cho gia đình gồm hai thế hệ gồm ba, mẹ, con trai và hai em gái.

Về khối nhà ở là hai tầng trên cùng, kiến trúc sư kết nối hai tầng này bằng một không gian thông tầng vì vậy việc di chuyển của căn hộ sẽ được linh hoạt hơn.

Về khối nhà ở là hai tầng trên cùng, kiến trúc sư kết nối hai tầng này bằng một không gian thông tầng vì vậy việc di chuyển của căn hộ sẽ được linh hoạt hơn.

Không gian ngủ và học tập của các con.

Không gian ngủ và học tập của các con.

Kiến trúc sư còn tận dụng ban công trồng nhiều cây, tạo cảm giác gần gũi cho không gian phòng ngủ.

Kiến trúc sư còn tận dụng ban công trồng nhiều cây, tạo cảm giác gần gũi cho không gian phòng ngủ.

Không gian thông tầng này sẽ kết hợp với sân thượng, dàn cây xanh (cây nho) và bếp.

Không gian thông tầng này sẽ kết hợp với sân thượng, dàn cây xanh (cây nho) và bếp.

Sự kết nối này tạo một không gian sinh hoạt chung lớn dành cho những bữa tiệc cho gia đình ngắm hoàng hôn xuống.

Sự kết nối này tạo một không gian sinh hoạt chung lớn dành cho những bữa tiệc cho gia đình ngắm hoàng hôn xuống.

Đừng bỏ lỡ

Video đang xem nhiều

Đọc thêm