Để kết nối 2 tuyến Metro số 1 và số 2 ở TP.HCM, cơ quan chức năng đã đề xuất dự án kết nối khoảng gần 2.100 tỉ đồng đi ngầm dưới đất. Phạm vi xây dựng công trình kết nối đồng bộ tuyến đường sắt đô thị số 1 và 2 tại khu vực nhà ga Bến Thành sẽ bao gồm hai khu vực tiếp giáp phía trước và phía sau hộp kết nối đã đang được xây dựng trong phạm vi dự án tuyến số 1 .
Mặt cắt ngang và dọc tuyến số 2 khi kết nối ga Bến Thành. Quy mô xây dựng bao gồm: phần hộp kết cấu nhà ga ngầm Bến Thành tuyến 2 nằm ngoài phạm vi tuyến số 1 đã được thi công. Toàn bộ kiến trúc, cơ điện nhà ga ngầm Bến Thành tuyến 2 và các hạng mục để kết nối đồng bộ tuyến đường sắt đô thị số 1 và số 2 tại khu vực nhà ga Bến Thành
Mô hình hành khách di chuyển từ tuyến số 1 tới tuyến số 2 và ngược lại trong 4 tầng của nhà ga Bến Thành. Ga Bến Thành là ga đầu cuối của tuyến tàu điện ngầm số 2. Ngoài chức năng trung chuyển hành khách, ga Bến Thành còn có chức năng quay đầu đoàn tàu trong giai đoạn vận hành. Việc bố trí quay đầu đoàn tàu (bố trí ghi) đã được bố trí trong dự án tuyến metro số 2, Bến Thành - Tham Lương
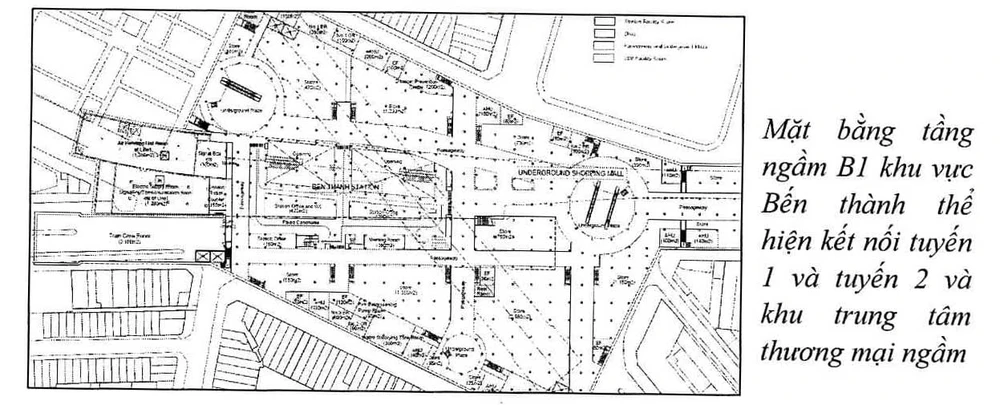
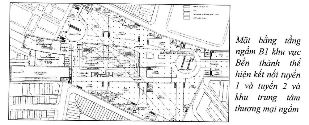
Mặt bằng tầng 1 nhà ga Bến Thành khi kết nối metro 1 và 2. Tầng hầm B1: Phần nhà ga Bến Thành tuyến số 2 giao cắt tuyến số 1 đã được xây dựng trong dự án tuyến số 1 là tầng sảnh chờ ga tuyến số 1 và sảnh trung chuyển trung giữa tuyến số 1 với tuyến số 2 và các dự án khác. Phần còn lại ở 2 đầu nhà ga Bến Thành, tuyến 2 dự kiến xây dựng kết nối với trung tâm thương mại ngầm Bến Thành. Đồng thời các đường hầm kết nối trung tâm thương mại ngầm, bãi đậu xe ngầm... dự kiến kết nối vào khu vực tầng hầm này.
Tầng trung chuyển (B2): Phần nhà ga Bến Thành tuyến số 2 giao cắt tuyến số 1 đã được xây dựng trong dự án tuyến 1 là tầng ke ga tuyến số 1 và sảnh trung chuyển chung giữa tuyến số 1 với tuyến số 2 và các dự án khác. Phần còn lại ở hai đầu nhà ga Bến Thành tuyến số 2 để bố trí các phòng cơ điện, thông gió nhà ga tuyến số 2...
Tầng sảnh chờ (B3): Phần nhà ga Bến Thành tuyến số 2 giao cắt tuyến số 1 đã được xây dựng trong dự án tuyến số 1 là một phần tầng sảnh chờ tuyến số 2. Phần còn lại ở hai đầu nhà ga Bến Thành tuyến số 2 dùng để bố trí phần còn lại sảnh chờ tuyến số 2 và bố trí các phòng cơ điện, thông gió nhà ga tuyến số 2.
Tầng ke ga (B4): Phần nhà ga Bến Thành tuyến số 2 giao cắt tuyến số 1 đã được xây dựng trong dự án tuyến số 1 là một phần tầng ke ga tuyến số 2. Phần còn lại ở hai đầu nhà ga Bến Thành tuyến số 2 để bố trí phần còn lại ke ga tuyến số 2 và bố trí các phòng cơ điện, thông gió nhà ga tuyến số 2.

Kết nối với tuyến số 1: Nhà ga tuyến 1 và tuyến 2 là một thành phần của ga trung tâm Bến Thành. Hành khách sử dụng metro của tuyến 1 và tuyến 2 đều dùng chung 6 lối lên xuống để tiếp cận tầng B1 nhà ga tuyến 1. Sau đó, những hành khách có nhu cầu sử dụng tuyến metro số 2 tiếp tục đi xuống tầng khu vực phòng chờ của tuyến 2 thông qua hệ thống cầu thang (thang bộ, thang cuốn và thang máy) liên thông. Đồng thời, hành khách từ tuyến số 2 có thể trực tiếp tiếp cận phòng chờ của tuyến số 1 bằng hệ thống cầu thang này.
Theo nghiên cứu này, sẽ có rất nhiều lối lên xuống để hành khách có thể tiếp cận trung tâm thương mại ngầm cũng như nhà ga trung tâm Bến Thành. Nhà ga Trung tâm Bến Thành được kết nối liên thông (từ trung tâm thương mại ngầm có lối đi thông sang tầng 1 của nhà ga trung tâm) với trung tâm thương mại ngầm. Do vậy, hành khách từ tuyến 1 có thể dễ dàng để tiếp cận trung tâm thương mại ngầm và ngược lại.
Khi xây dựng công trình kết nối đồng bộ tuyến đường sắt đô thị số 1 và số 2 tại khu vực nhà ga Bến Thành tiến hành làm sẵn hầm kết nối nhà ga với bãi đỗ xe buýt ngầm dưới đường Hàm Nghi. Riêng vị trí bãi đỗ xe ngầm ở khu B công viên 23/9, đơn vị tiến hành nghiên cứu bãi đỗ xe ngầm này cần đề xuất giải pháp để hành khách khách có thể tiếp cận nhà ga trung tâm Bến Thành thuận tiện và đảm bảo phù họp với quy hoạch 930 ha của Thành phố.
Mặt bằng tổng thể nhà ga Bến Thành và bãi đậu xe ngầm: Theo quy hoạch trung tâm thành phố, quy hoạch không gian ngầm bao gồm các lối đi, khu thương mại và bãi đỗ xe sẽ được phát triển. Theo đó, dường Lê Lợi cũng như công viên 23/9 sẽ có trung tâm thương mại bên dưới, cũng như các bãi dỗ xe ngầm.
Khu vực đường thẳng từ nhà ga Bến Thành đến đường Lê Lợi được quy hoạch các chức năng thương mại và kinh doanh mật độ cao. Hơn nữa, vòng xoay phía trước Chợ Bến Thành sẽ trở thành khu phố đi bộ và phía
trước Nhà hát Lớn cũng quy hoạch một quảng trường và đường Đồng Khởi sẽ trở thành đường đi bộ. Các quảng trường này sẽ trở thành điểm nhấn bộ hành và cảnh quan cho khu vực trung tâm thành phố.

Phần công trình trên mặt đất: Tháp thông gió, tháp làm mát được bố trí 2 đầu nhà ga gồm: Tháp thông gió - làm mát trên khu vực công viên 23/9 (diện tích khoảng 12m X 19m), cao khoảng 6 m; tháp thông gió khu vực đầu đường Phó Đức Chính (diện tích 4m X 10,3m), cao khoảng 6 m.

Tổng thể vị trí các tuyến metro quanh khu vực trung tâm nhà ga Bến Thành.