Light House có diện tích 110 m² tại chung cư ở TP Hà Nội là tổ ấm của gia đình nhỏ có hai cô con gái. Công trình được thiết kế theo phong cách hiện đại với yêu cầu đặt ra là kết nối chặt chẽ tất cả các thành viên trong gia đình.
Clip căn hộ Light House |
![]() |
Căn hộ là tổ ấm của gia đình có hai cô con gái đang tuổi ăn, tuổi học. |
![]() |
Mẹ của hai cô bé muốn có không gian thoáng mát, đơn giản nhưng vẫn kết nối được thành viên trong gia đình. |
![]() |
Sofa phòng khách êm ấm giúp cả gia đình quây quần bên nhau. |
![]() |
Thay vì những bức tường trong chung cư đơn thuần, kiến trúc sư Combo Home thiết kế và đập bỏ những bức tường bếp mở không gian. |
![]() |
Kiến trúc sư tạo đường cong bằng granito ở sàn bếp, đập bỏ những bức tường lớn tại các phòng ngủ thay vào đó là mảng kính cong lớn. |
![]() |
Từ đó giúp kết nối không gian phòng ngủ và phòng khách. |
![]() |
Phòng hai em bé được đập bỏ bức tường thay vào đó bằng hệ cánh cửa lùa khi vui chơi có thể kéo và mở rộng không gian. |
![]() |
Trên tường sơn một bức bảng màu đen để các em thỏa chí vẽ vời trong khu vực quy định giúp các em ngăn nắp hơn. |
![]() |
Vật liệu trong nhà sử dụng gỗ và màu trắng làm không gian giản dị, mộc mạc hơn. |
![]() |
Điểm nhấn là những cánh tủ trong phòng ngủ tông màu pastel nhẹ nhàng. |
![]() |
Phòng ngủ sáng, thoáng. |
![]() |
Phòng vệ sinh sử dụng gạch mosaic màu trắng và gạch vuông giúp không gian ngăn nắp hơn, đồng điệu với gạch ốp bếp. |
![]() |
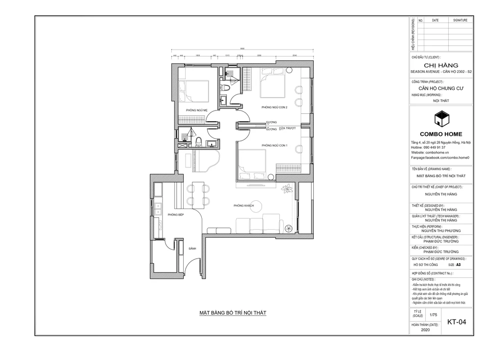
Mặt bằng bố trí nội thất |
![]() |
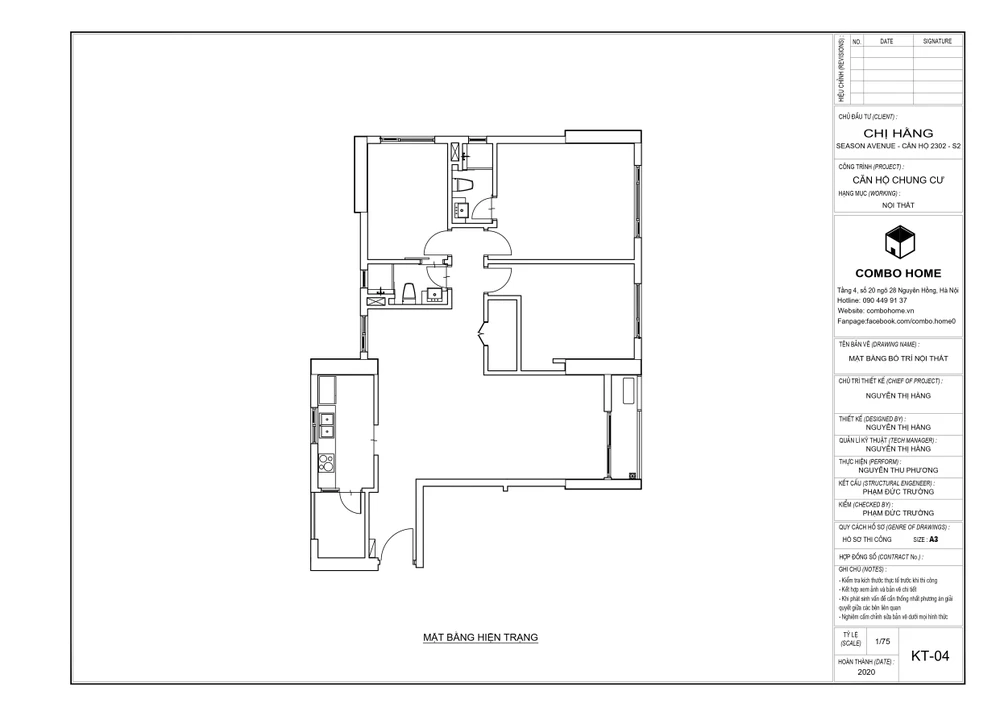
Mặt bằng hiện trạng |













