![]() |
Dự án có diện tích 260 m² nằm trong khu đô thị ngày càng chật hẹp ở TP Hà Nội. Chủ nhà muốn có một không gian gắn kết các thành viên lại gần nhau. |
![]() |
Kiến trúc sư X11 Studio đã xây dựng Folding House được lấy cảm hứng từ những nếp gấp của giấy. |
![]() |
Các mảng tường kiên cố kết hợp với khoảng lùi xanh giúp giảm tác động của bức xạ mặt trời từ hướng Tây Nam. |
![]() |
Ba khoảng sân được bố trí xen kẽ ở tầng một nhằm tạo điểm nhìn và điều hòa vi khí hậu cho toàn bộ tòa nhà. |
![]() |
Phòng khách và bếp liên thông với nhau bằng giếng trời và khu vườn nhỏ ở giữa. |
![]() |
Ngôi nhà sử dụng hai nguồn sáng từ phía trước và giếng trời chính giữa nhà. |
![]() |
Không gian lệch tầng kết hợp với cầu thang ngược tạo nên những giếng trời lớn nhỏ. |
![]() |
Hành lang, cầu thang, khu vệ sinh đều nhận được ánh sáng và thông gió tự nhiên. |
![]() |
| Các khoảng trống và sân vườn làm tăng sự kết nối giữa các thành viên trong gia đình, con người với thiên nhiên. |
![]() |
| Bê tông, gạch mộc kết hợp với một số vật liệu tự nhiên như đá, gỗ, cây xanh mang đến hơi thở nhiệt đới cho công trình. |
![]() |
Khu vườn nhỏ nơi cả gia đình và bạn bè có thể quây quần, thư giãn, tổ chức những bữa tiệc. |
![]() |
| Mặt bằng tầng một |
![]() |
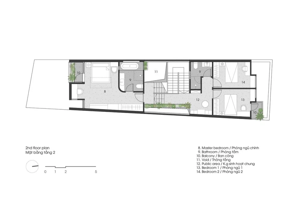
| Mặt bằng tầng hai |
![]() |
| Mặt bằng tầng ba |













