Ngôi nhà mặt tiền 3m vẫn sang trọng và rộng rãi

Ngôi nhà mặt tiền 3m vẫn sang trọng và rộng rãi

(PLO)- Tini House có mặt tiền chỉ 3m nhưng thiết kế vừa hiện đại, sang trọng lại rất rộng rãi, thông thoáng.

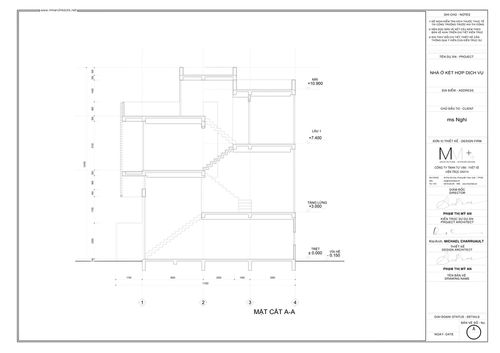
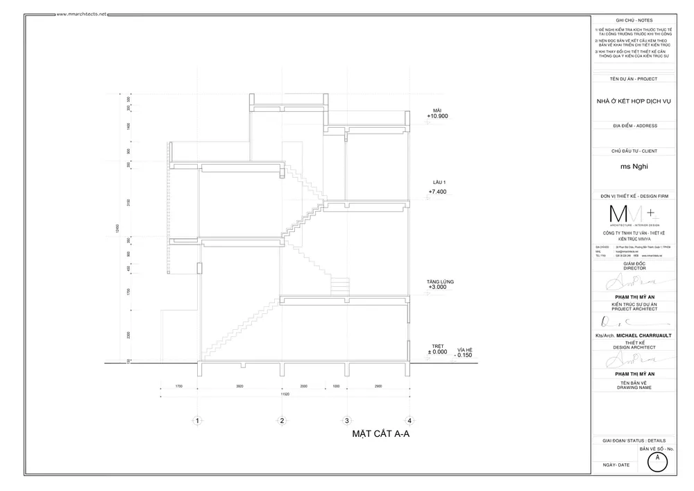
Tini House là mẫu nhà ống hai tầng với diện tích nhỏ 3x12m. Kiến trúc sư Phạm Thị Mỹ An (MM Home) thiết kế ngôi nhà hai tầng với ba phòng ngủ.

Công trình xây dựng theo lối lệch tầng để tiết kiệm diện tích, các phòng sẽ nằm so le nhau theo hình ziczac.

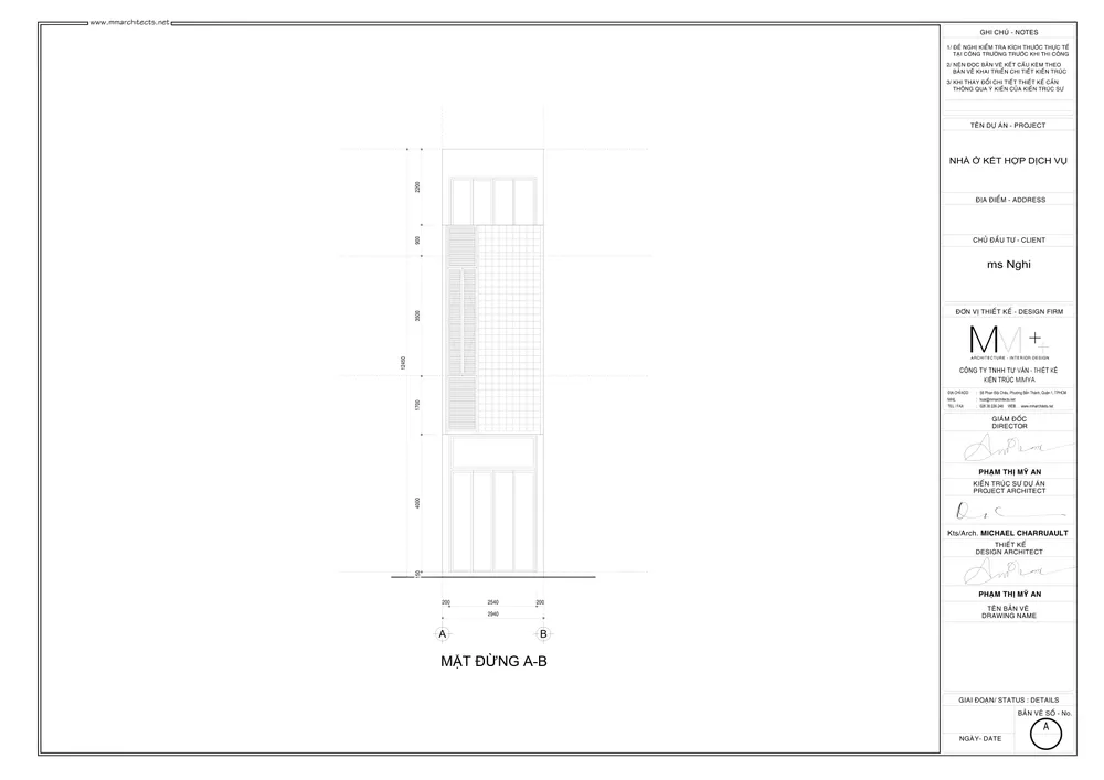
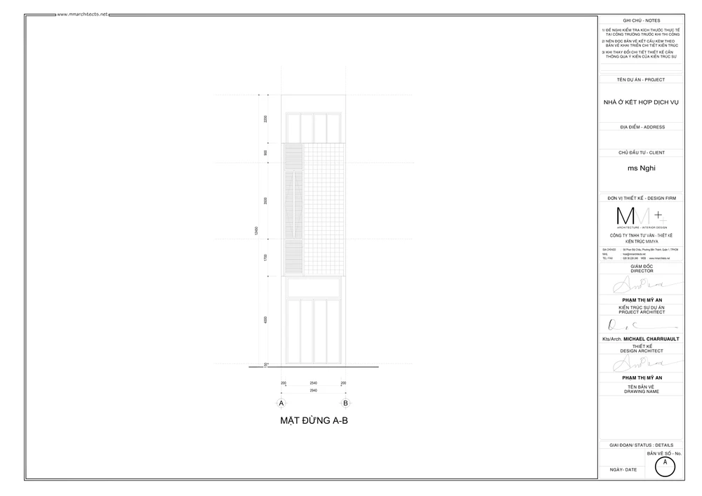
Mặt tiền công trình Tini House mang đến cảm giác hiện đại và phá cách. Cổng vào nhà được làm bằng gỗ với những thanh ngang đặt song song nhau.

Phần bên ngoài nhà được thiết kế với những ô gỗ nhỏ cùng một cửa sổ để tăng khả năng lấy sáng.

Kiến trúc sư thiết kế tầng một gồm phòng khách, nhà bếp và phòng ăn. Phòng khách được bố trí với tông màu chủ đạo là là màu trắng, kết hợp với đồ nội thất bằng gỗ giúp mang lại cảm giác tinh tế và hiện đại.

Bên cạnh phòng khách sẽ là cầu thang dẫn lên tầng lửng. Các kiến trúc sư đã tinh tế tận dụng khoảng không dưới cầu thang để xây dựng một nhà vệ sinh cho tầng trệt.

Khoảng cách giữa các bậc thang cũng được rút ngắn lại để gia chủ có thể sinh hoạt thoải mái hơn.

Khu vực nhà bếp và phòng ăn được thiết kế thông với phòng khách theo lối không gian mở. Kiến trúc sư loại bỏ vách ngăn để mở rộng không gian.

Ngôi nhà có tông màu chủ đạo là màu trắng kết hợp với đồ nội thất bằng gỗ màu nâu.

Tầng lửng chỉ có một phòng ngủ được được thiết kế với không gian mở. Kiến trúc sư đã sử dụng hệ cửa bằng gỗ có thể xếp lại để tạo thêm sự thông thoáng cho căn phòng.

Dưới gầm cầu thang dẫn lên tầng một, kiến trúc sư đã bố trí tủ quần áo nhỏ, giấu một cách tinh tế và giúp không gian được gọn gàng hơn.

Tầng một sẽ gồm hai phòng ngủ được thiết kế lệch tầng. Phòng dưới nằm phía trước nhà, với cửa sổ rộng kết hợp ban công được bao quanh bởi những ô gỗ và một cửa nhỏ có thể đóng mở.

Phòng phía trên được bố trí phía sau nhà với phong cách thiết kế có phần giống so với phòng ở tầng lửng.

Giường ngủ sẽ được đặt ở góc phòng thay vì giữa phòng, bên cạnh sẽ là cửa dẫn vào nhà vệ sinh. Nhà vệ sinh được đặt sát bên cạnh các phòng và khu vực thông tầng.

Đọc thêm