VUx House có diện tích điển hình của nhà phố là 5 m x 20 m, tọa lạc tại huyện Ngũ Hành Sơn, TP Đà Nẵng. Hai vấn đề lớn nhất là thiếu ánh sáng và thông gió của nhà phố được kiến trúc sư Tô Hữu Dũng (85 Design) xử lý.
![]() |
Kiến trúc sư chia ngôi nhà thành ba phần: trước, sau và một khoảng không gian lớn ở giữa để có thể lấy sáng và gió vào trong nhà.
![]() |
Kiến trúc sư Tô Hữu Dũng sử dụng nhiều vật liệu địa phương như gạch nung và đá ong cho mặt tiền nhà.
Cách kết hợp giữa vật liệu địa phương kết hợp với cây xanh tạo nên nét độc đáo riêng nhưng vẫn rất gần gũi với lối xây dựng truyền thống.
![]() |
![]() |
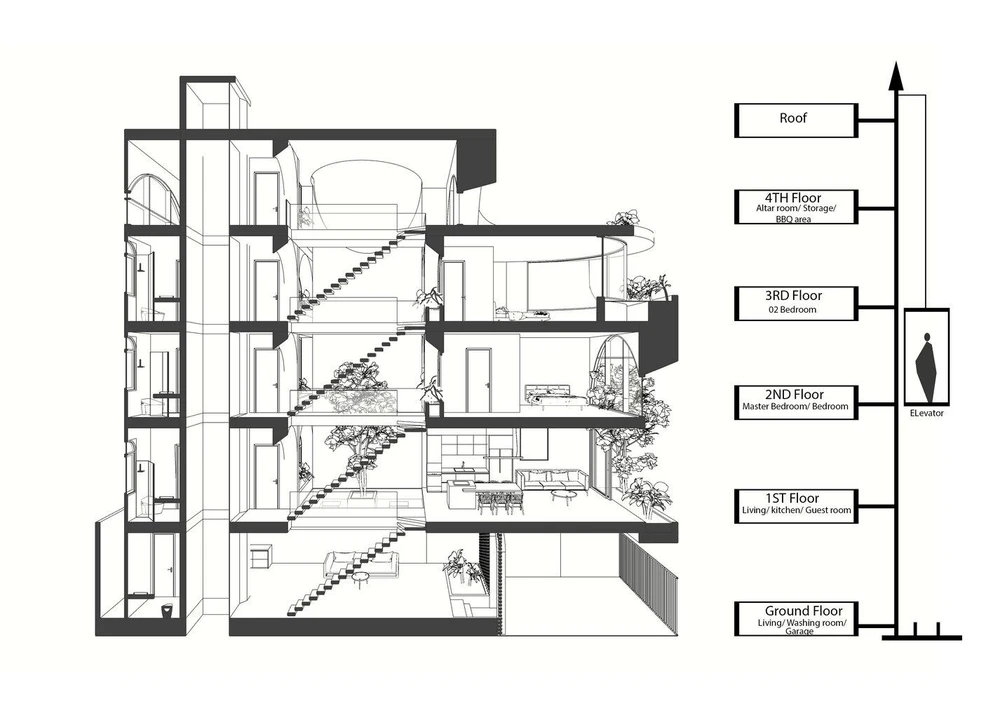
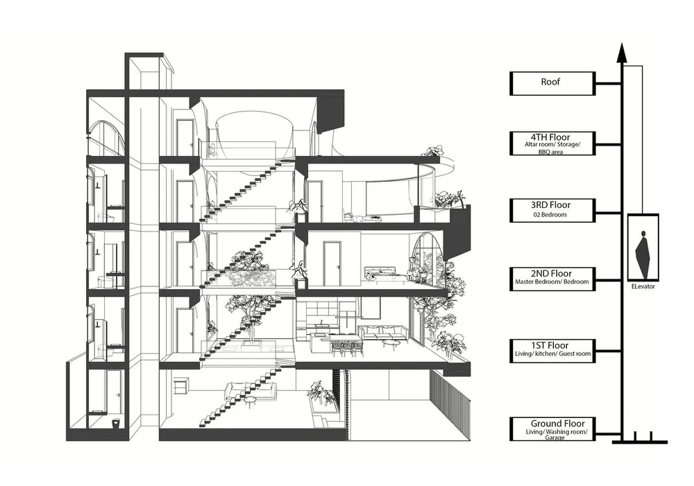
| Sơ đồ công trình VUx House |
![]() |
Ở tầng trệt, ngoài cùng là khu vực để xe. Không gian này được ngăn cách với không gian sống bằng một bức tường gạch.
Bên trong là cửa kính để dễ dàng điều khiển gió và tầm nhìn. Ở giữa là khu vực tiếp khách tạm thời và khu giặt phơi. Cuối cùng là một giếng trời nhỏ để đối lưu không khí và phơi quần áo.
![]() |
Tầng một bố trí phòng sinh hoạt chung và bếp ăn phía trước, một phòng ngủ nhỏ phía sau. Giữa hai khu vực này là hồ cá và không gian cây xanh mang đến không gian sinh hoạt chung gần gũi với thiên nhiên hơn.
![]() |
![]() |
Ở giữa bể cá, thay vì hoàn toàn bằng bê tông, kiến trúc sư thiết kế đáy kính để đưa nhiều ánh sáng tự nhiên xuống khu vực tiếp khách tạm thời ở tầng trệt.
Bằng phương pháp này, chủ nhà có thể nhìn thấy nhiều ánh sáng và cá bơi, tạo không gian thư giãn nhẹ nhàng.
![]() |
![]() |
Ở tầng hai và tầng ba bố trí phòng ngủ lớn phía trước, phòng ngủ nhỏ hơn bố trí phía sau. Hai không gian này được nối với nhau bằng hành lang cầu.
Ở giữa là giếng trời lớn xuyên suốt từ tầng bốn xuống đến tầng trệt. Xung quanh giếng trời này được bố trí rất nhiều cây xanh.
Điểm đặc biệt là phòng ngủ và phòng tắm đều được chiếu ánh sáng trực tiếp, đây là cách sử dụng thiết thực cũng như rất tốt cho sức khỏe.
![]() |
![]() |
![]() |
Đối với phần mái kính che giếng trời, kiến trúc sư sử dụng kính cách nhiệt hạn chế tia UV có hại chiếu vào nhà nhưng vẫn tận dụng được tối đa nguồn sáng.
Mái nhà này có thể tự động đóng mở do điều kiện thời tiết. Toàn bộ hệ thống tưới cây là tự động giúp giảm thời gian và công sức.
![]() |
![]() |
Tầng bốn là một vườn cây ăn trái nhỏ để thư giãn và dùng bữa riêng tư của gia đình.
Ở không gian này, kiến trúc sư sử dụng cây xanh và sàn gỗ như một cách để chống nóng cho các tầng dưới. Trên Mái nhà, kiến trúc sư sử dụng tấm chống nóng XPS trên nền bê tông để bảo vệ và chống nóng hiệu quả.
![]() |
Mặt bằng tầng trệt |
![]() |
Mặt bằng tầng một |
![]() |
Mặt bằng tầng hai |
![]() |
Mặt bằng tầng ba |
![]() |
Mặt bằng tầng bốn |
![]() |
Mặt bằng mái |




















