Nhà phố tràn ngập ánh sáng với tổng chi phí 4 tỉ đồng

Nhà phố tràn ngập ánh sáng với tổng chi phí 4 tỉ đồng

(PLO)- Ngôi nhà ở quận 2, TP.HCM được thiết kế tràn ngập ánh sáng tự nhiên với tổng chi phí đầu tư 4 tỉ đồng.

Dự án nhà phố Tổ Hợp Không Gian nằm ở TP Thủ Đức (quận 2 cũ) TP.HCM. Ngôi nhà nằm ở mặt tiền đường Trần Lựu với mục đích vừa ở vừa kinh doanh. Tổng chi phí đầu tư khoảng 4 tỉ đồng.

Ở mặt tiền nhà, kiến trúc sư sử dụng lam che để giảm bớt nắng, bụi và tiếng ồn cho các phòng ngủ tiếp giáp mặt đường.

Nhu cầu gia chủ là ngôi nhà để được hai chiếc xe ô tô, nhiều xe máy, có không gian làm văn phòng cho thuê và không gian cho gia đình lớn ba thế hệ gồm ông bà, ba mẹ và ba con nhỏ.

Với diện tích đất 108 m2 phải đáp ứng nhiều chức năng như vậy là một đề tài khó cho kiến trúc sư Story Architecture.

Nhiệm vụ kiến trúc sư là tìm ra giải pháp vừa đáp ứng được nhu cầu công năng sử dụng cho chủ nhà nhưng cũng phải có một không gian sống thoáng đãng rộng rãi với nhiều ánh sáng, đón gió tự nhiên.

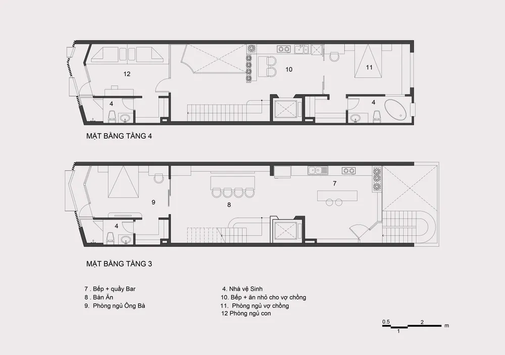
Kiến trúc sư chia cầu thang bộ ra hai phần để đảm bảo sinh hoạt riêng tư cho chủ nhà. Phần một của thang bộ phục vụ cho tầng một và tầng hai, nơi để xe và văn phòng cho thuê.

Kiến trúc sư bố trí cầu thang ra phía sau cùng của ngôi nhà giúp tận dụng diện tích sàn tối đa làm nhà xe ở tầng một và diện tích lớn làm văn phòng cho thuê ở tầng hai.

Cầu thang này kết hợp với khoảng thông tầng sau nhà tạo ra giếng trời lớn giúp ngôi nhà lấy sáng từ phía sau.

Phần hai của cầu thang từ tầng ba lên tới sân thượng được đưa vào giữa nhà chỉ để sinh hoạt nội bộ của gia đình.

Tầng ba lên sân thượng là không gian sống cho gia đình ba thế hệ. Ở tầng ba được bố trí như một căn hộ nhỏ gồm một phòng ngủ dành cho ba mẹ, một bếp và phòng ăn lớn.

Tầng bốn và sân thượng cũng được bố trí như một căn hộ duplex cho một gia đình trẻ gồm vợ chồng và ba đứa con nhỏ gồm ba phòng ngủ và một bếp ăn nhỏ.

Nội thất thiết kế đơn giản nhưng được phối màu xi măng, đá mài và gỗ tạo ra sự mộc mạc thân thiện, giúp cho ông bà cảm thấy ấm cúng và không bị lạc lõng trong một ngôi nhà phố hiện đại.

Các lam che mặt tiền được khoét khung cửa khác nhau như một khung hình để nhìn ra bên ngoài.

Không gian tầng ba, bốn, sân thượng được thiết kế một giếng trời lớn ở giữa nhà giúp lấy ánh sáng tự nhiên vào nhà và kết nối không gian sinh hoạt. Nhờ giếng trời lớn chính giữa giúp tạo ra sự gần gũi thân thiện cho ba thế hệ cùng sống chung.

Đọc thêm