![]() |
Kiến trúc sư Đoàn Mạnh cùng các kiến trúc sư Combo Home thực hiện cải tạo căn hộ 85 m2 tại TP Hà Nội. |
![]() |
Chủ nhân thích không gian sống trong chung cư, thích thiên nhiên, thích cuộc sống hiện đại, nhiều tiện nghi. |
![]() |
Sau một thời gian ở căn hộ, khi con nhỏ tròn 6 tuổi thì chủ nhân của ngôi nhà quyết định cải tạo không gian sống. |
![]() |
Phòng khách sử dụng sofa cao cấp, bàn trà nhỏ. |
![]() |
Kệ âm tường tiết kiệm diện tích, đồng thời tối đa hóa khu vực trưng bày đồ. |
![]() |
Kệ sách gọn gàng, ngăn nắp. |
![]() |
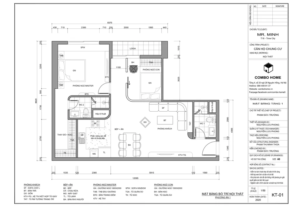
Căn hộ 85 m² được cải tạo lại toàn bộ, thay đổi vị trí sử dụng bếp, thêm phòng ngủ cho em bé cạnh cửa sổ. |
![]() |
Căn hộ sử dụng tông màu trắng kết hợp vàng gỗ để tạo nên vẻ đẹp sang trọng, thanh lịch và ấm áp. |
![]() |
Căn hộ sử dụng các thiết bị bếp tiện nghi, ốp tường bếp hình vảy cá màu xanh mềm mại. |
![]() |
Phương án sử dụng kính cong trong không gian kết nối các khu vực và lấy được ánh sáng từ ban công vào phòng khách, đồng thời tạo nên góc mềm mại hơn cho căn hộ. |
![]() |
Chủ nhà mong muốn không gian cho em bé nhiều ánh sáng tiện nghi nên đổi vị trí căn phòng. |
![]() |
Góc ban công xanh mát, vừa có tác dụng thanh lọc không khí vừa là nơi thư giãn nghỉ ngơi cuối tuần. |
![]() |
Toàn bộ không gian được sử dụng vật liệu cao cấp, thiết kế tỉ mỉ. |
![]() |
Phòng vệ sinh sử dụng granito mài thủ công, lát gạch thẻ trắng giúp không gian rộng và thoáng hơn, tinh tế hơn. |
![]() |
Mặt bằng bố trí nội thất. |














