![]() |
Ngôi nhà nằm trong một con hẻm nhỏ ở phường Vỹ Dạ, TP Huế. |
![]() |
Công trình là tổ ấm của một gia đình trẻ với phong cách sống phóng khoáng. |
![]() |
Ngôi nhà có diện tích 8x20m và diện tích sàn là 230 m2 được thiết kế bởi kiến trúc sư BHA studio. |
![]() |
Kết cấu chính vừa là kết cấu chịu lực, vừa là lớp vỏ bảo vệ ngôi nhà trước tác động của thời tiết khắc nghiệt ở Huế. |
![]() |
Không gian sinh hoạt như phòng khách, bếp và bàn ăn ở bên trong lớp vỏ bảo vệ. |
![]() |
Các giải pháp thiết kế của kiến trúc sư làm tăng tính liên tục của không gian, sự thông thoáng và kết nối giữa các thành viên trong gia đình. |
![]() |
Kiến trúc sư đã chọn hộp kiên cố bằng bê tông cốt thép, với kích thước 8x20x9m bao quanh ngôi nhà. |
![]() |
Đi cùng với khoảng trống trên mái, gạch thông gió phía sau và lưới sắt phía trước mang ánh sáng tự nhiên vào nhà. |
![]() |
Gạch thông gió và lưới sắt còn giúp trong việc đối lưu không khí trong nhà. |
![]() |
Những khối ngủ đó được treo lơ lửng bằng hệ khung kết cấu mỏng. |
![]() |
Không gian ngủ có thể đóng lại bằng rèm cửa, mang ánh sáng cũng như tầm nhìn xuyên suốt vào không gian này. |
![]() |
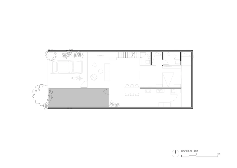
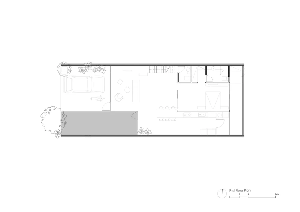
Mặt bằng tầng một |
![]() |
Mặt bằng tầng hai |
![]() |
Mặt bằng mái |












