Ngôi nhà như khối bê tông xanh mướt ở TP.HCM

Ngôi nhà như khối bê tông xanh mướt ở TP.HCM

(PLO)- Tropical Suburb Town House có lối thiết kế đơn giản, không gian xanh, đẹp như mơ.

Tropical Suburb Town House là mẫu nhà ống có diện tích 7m x 25m. Với lô đất hình thang có hai mặt giáp đường và hai mặt tiền nhìn ra sông Sài Gòn, ngôi nhà được thiết kế có tầm nhìn quan sát từ mọi phía.

Mặt tiền nhà được phủ bởi nhiều lớp thảm thực vật với cây xanh trải dài từ tầng một lên đến sân thượng. Cây xanh trở thành yếu tố thiết kế đầu tiên cho một không gian xanh sống chất lượng, chiếm khoảng 15% diện tích mỗi tầng.

Kiến trúc sư Phạm Thị Mỹ An (MM++ Architects) thiết kế công trình như được chạm khắc từ một khối bê tông nguyên khối.

Kiến trúc sư không dùng sơn nước như những ngôi nhà phổ biến hiện nay, ngôi nhà này để lộ ra vật liệu là bê tông sơn thô.

Không gian phòng khách lấy sáng từ nguồn ánh sáng tự nhiên của khu vườn.

Tầng trệt là không gian của phòng khách. Từ cánh cửa kiên cố kiểu Ấn Độ lõm vào trong, gia chủ sẽ đi qua một khu vườn xanh mát.

Không gian bên trong nhà sẽ tách biệt khỏi mặt phố náo nhiệt bên ngoài để đến phòng khách thoáng đãng trong một không gian xanh mở rộng.

Khu vực tiếp khách có một băng ghế dọc theo chiều dài của căn phòng. Chủ nhà có thể ngồi dựa lưng, duỗi thẳng chân một cách thoải mái để thư giãn, trò chuyện cùng nhau.

Kiến trúc sư cho biết, sự cộng hưởng giữa phong cách De Stijl với kiến ​​trúc Edo của Nhật Bản là chiều cao các tầng so le nhau, kết cấu phụ lộ ra ngoài...

Mọi thành phần thiết kế được sắp xếp để giảm thiểu ánh sáng mặt trời gay gắt và tạo ra không gian xanh, những khung cảnh mát mẻ.

Những chiếc kính đầy màu sắc đặc trưng của những năm 1880 và 1890 được thể hiện ở đây trong các tác phẩm tối giản lấy cảm hứng từ các bức tranh của De Stijl, đặc biệt là của Piet Mondrian.

Các khe hở trên tường theo phong cách Embrasure được sử dụng thay cho cửa sổ, giúp lưu thông không khí và đón ánh sáng mặt trời vào nhà.

Khu vườn nhỏ xuất hiện khắp ngôi nhà, tô điểm cho từng không gian sinh hoạt trong nhà.

Một bức tường màu đỏ gỉ sét gợi lên hình ảnh của những chiếc gạch nung. Ngoài việc loại bỏ ánh sáng chói chang, điểm nhấn nữa là kết cấu giữa các vật liệu trong toàn bộ ngôi nhà.

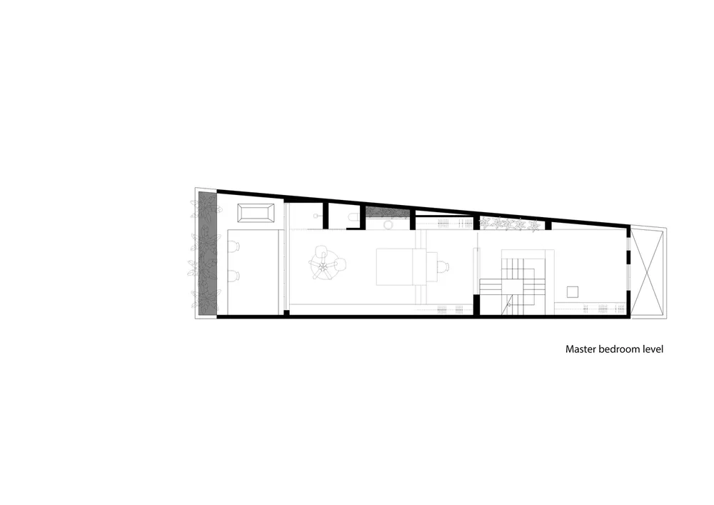
Nội thất trong phòng ngủ được làm chủ yếu bằng gỗ và theo kiểu cổ. Chiếc nệm được đặt ngay ngắn vào vị trí âm xuống mặt sàn, mang lại cảm giác thoải mái, gọn gàng cho chủ nhân.

Hai chiếc tủ quần áo đặt hai bên đối diện nhau ở chính giữa là một chiếc bàn. Thiết kế tối giản nhất có thể nhưng vẫn mang lại sự tiện lợi.

Đặc biệt, trong phòng ngủ còn có cả chiếc bồn rửa tay và bồn tắm thú vị. Những mảng xanh được thêm thắt một cách tinh tế trong căn phòng này.

Trên cùng là các thanh gỗ mô phỏng như các thanh tà vẹt kê dưới đường sắt được sắp xếp một cách tỉ mỉ để phác họa khung ngoài trên mái nhà.

Đây là mẫu nhà có bể bơi trên sân thượng để bạn có thể bơi lội bất cứ khi nào mình muốn.

Đọc thêm