Ngôi nhà sáng sủa lấy bếp làm trung tâm ở Sài Gòn

(PLO)- Không gian trong ngôi nhà ở khu Thảo Điền, TP.HCM được thiết kế xoay quanh nhà bếp nhằm gắn kết các thành viên lại với nhau.
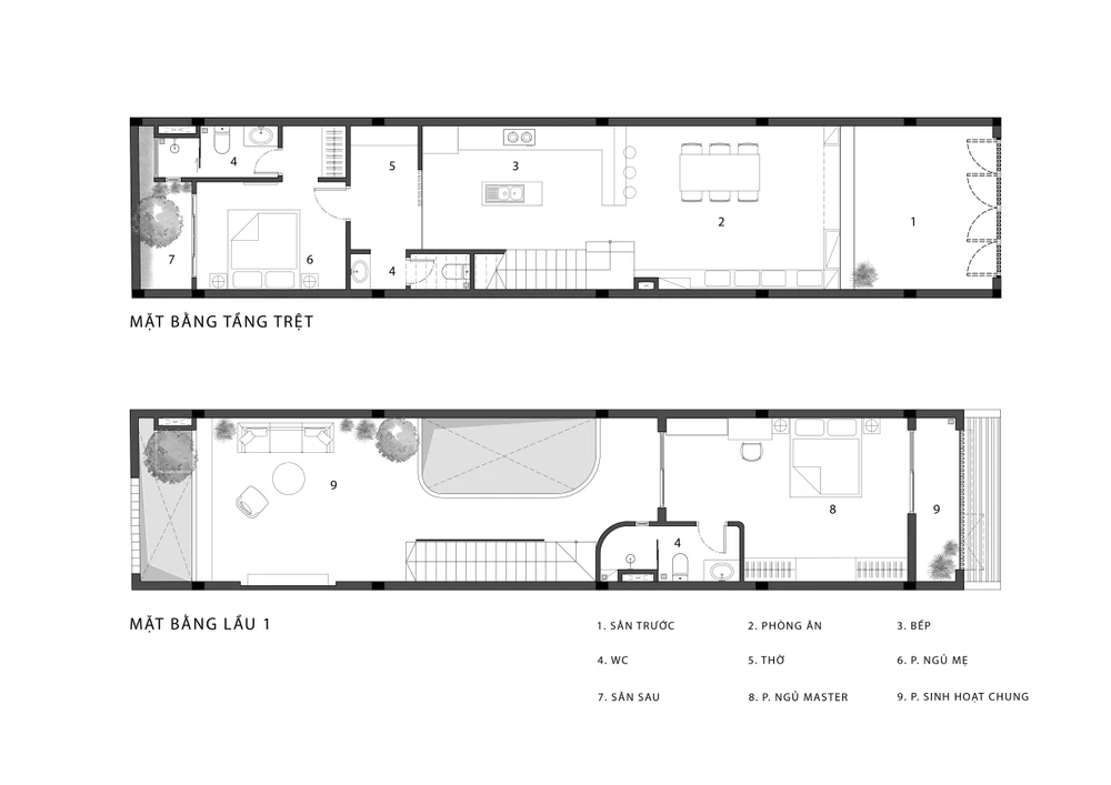
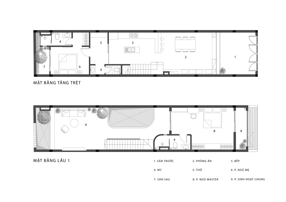
Công trình có diện tích 90 m² tọa lạc tại TP Thủ Đức, TP.HCM.

Công trình có diện tích 90 m² tọa lạc tại TP Thủ Đức, TP.HCM.

Ở mặt tiền nhà, kiến trúc sư đưa khối nhà lùi lại từ từ theo từng tầng thay vì tận dụng diện tích tối đa.

Ở mặt tiền nhà, kiến trúc sư đưa khối nhà lùi lại từ từ theo từng tầng thay vì tận dụng diện tích tối đa.

Ngôi nhà trở nên thoáng đãng và tăng diện tích lấy sáng cho phòng ngủ, kết hợp với hệ lam nhựa giả gỗ tạo sự sang trọng.

Ngôi nhà trở nên thoáng đãng và tăng diện tích lấy sáng cho phòng ngủ, kết hợp với hệ lam nhựa giả gỗ tạo sự sang trọng.

Công trình được thiết kế bởi kiến trúc sư Story Architecture.

Công trình được thiết kế bởi kiến trúc sư Story Architecture.

Ngôi nhà là tổ ấm cho hai vợ chồng, một cậu con trai bốn tuổi và một người bà lớn tuổi.

Ngôi nhà là tổ ấm cho hai vợ chồng, một cậu con trai bốn tuổi và một người bà lớn tuổi.

Người bà thường thư giãn và sinh hoạt ở không gian bếp nên kiến trúc sư tập trung tạo ra một không gian bếp đẹp và là trung tâm của ngôi nhà.

Người bà thường thư giãn và sinh hoạt ở không gian bếp nên kiến trúc sư tập trung tạo ra một không gian bếp đẹp và là trung tâm của ngôi nhà.

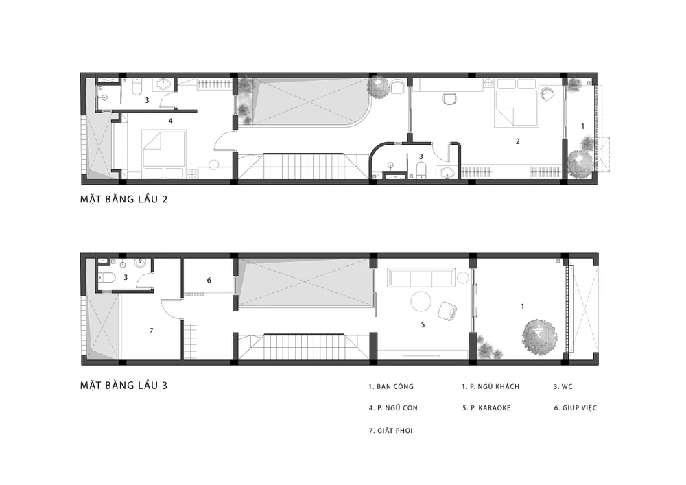
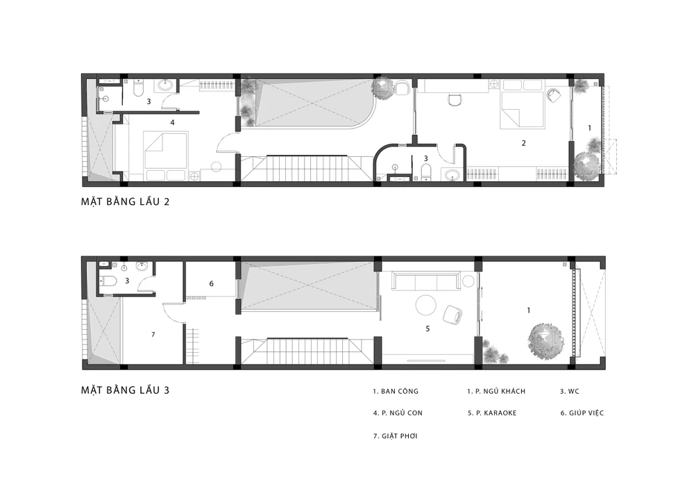
Kiến trúc sư bố trí phòng ngủ của người bà nằm ngay tầng trệt. Việc thờ tự thông thường đưa lên cao nhất là sân thượng nhưng để thuận tiện cho người bà thì không gian này được bố trí ngay sát phòng ngủ.

Kiến trúc sư bố trí phòng ngủ của người bà nằm ngay tầng trệt. Việc thờ tự thông thường đưa lên cao nhất là sân thượng nhưng để thuận tiện cho người bà thì không gian này được bố trí ngay sát phòng ngủ.

Cầu thang thiết kế một vế và hành lang dài được mở ra ô giếng trời.

Cầu thang thiết kế một vế và hành lang dài được mở ra ô giếng trời.

Kiến trúc sư dành nhiều diện tích tạo ra các khoảng sân để bạn nhỏ có thể chơi bất cứ nơi đâu trong nhà.

Kiến trúc sư dành nhiều diện tích tạo ra các khoảng sân để bạn nhỏ có thể chơi bất cứ nơi đâu trong nhà.

Phía trên bếp là khoảng giếng trời lớn tạo sự thông thoáng, đưa ánh nắng xuống tận mặt bếp để bếp lúc nào cũng khô ráo.

Phía trên bếp là khoảng giếng trời lớn tạo sự thông thoáng, đưa ánh nắng xuống tận mặt bếp để bếp lúc nào cũng khô ráo.

Khoảng thông tầng từ vị trí bếp có thể kết nối với các tầng phía trên .
Khoảng thông tầng từ vị trí bếp có thể kết nối với các tầng phía trên .
Phòng ngủ thiết kế đơn giản với sàn bằng gỗ màu trung tính.

Phòng ngủ thiết kế đơn giản với sàn bằng gỗ màu trung tính.

Kiến trúc sư còn thiết kế nhiều khoảng "chill" tại không gian riêng tư.

Kiến trúc sư còn thiết kế nhiều khoảng "chill" tại không gian riêng tư.

Các phòng ngủ vách tiếp xúc bên ngoài và vách tiếp xúc bên trong giếng trời được làm bằng kính.

Các phòng ngủ vách tiếp xúc bên ngoài và vách tiếp xúc bên trong giếng trời được làm bằng kính.

Cách thiết kế này giúp lấy sáng và gió tối đa.

Cách thiết kế này giúp lấy sáng và gió tối đa.

Khoảng trống ban công thụt vào là nơi trồng cây cảnh và thư giãn của các thành viên.

Khoảng trống ban công thụt vào là nơi trồng cây cảnh và thư giãn của các thành viên.

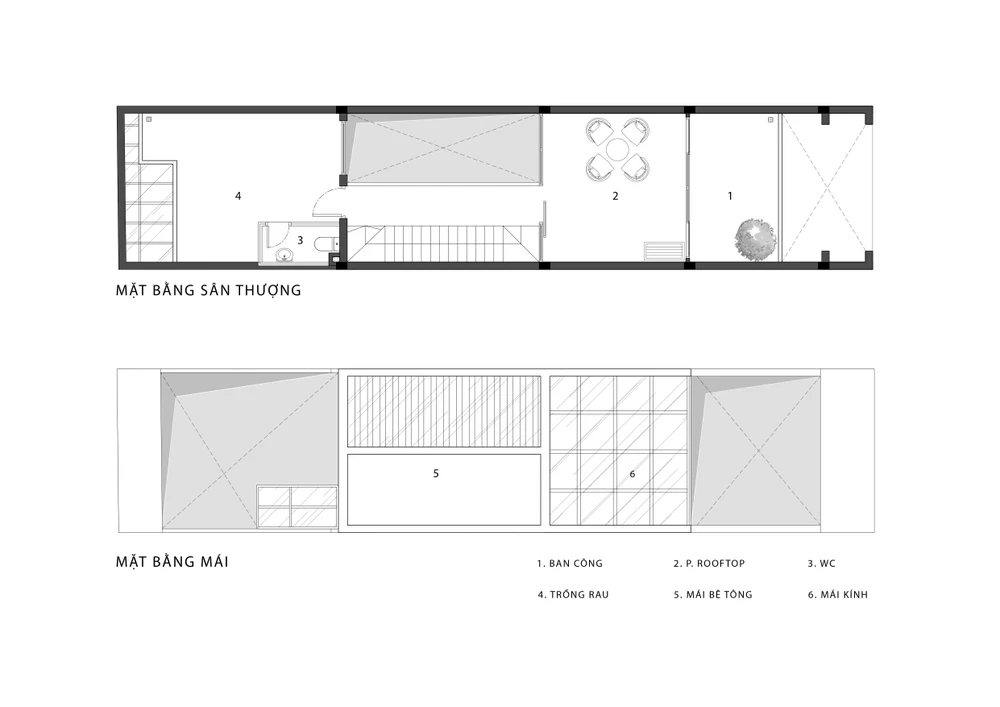
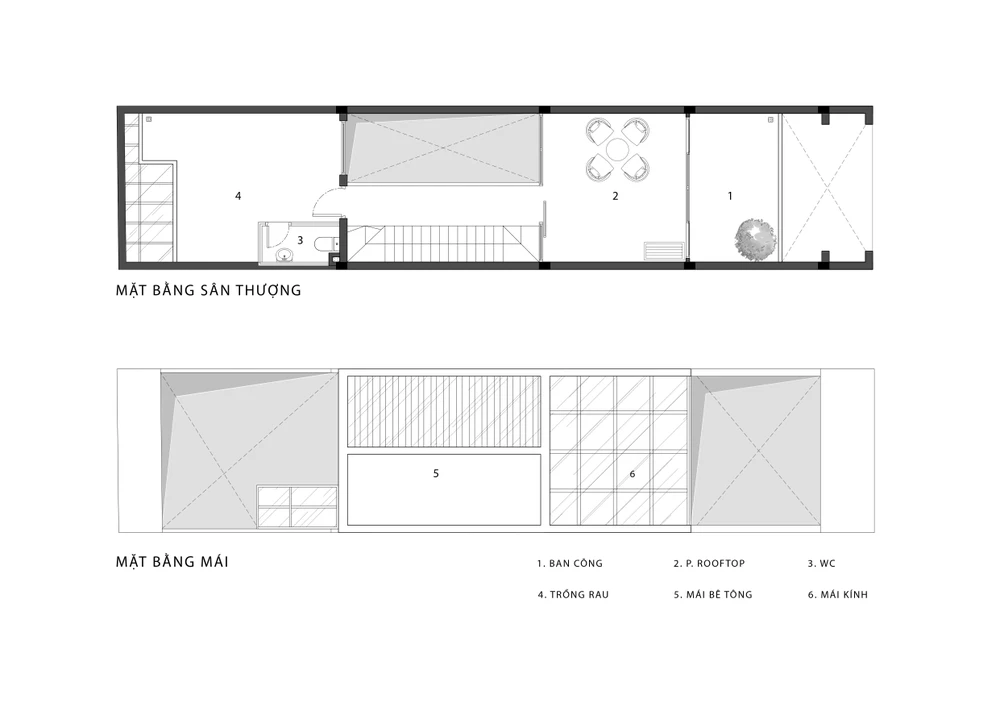
Sân thượng của ngôi nhà.

Sân thượng của ngôi nhà.

Đừng bỏ lỡ

Video đang xem nhiều

Đọc thêm