Ngôi nhà thiết kế hình chữ U độc đáo ở Khánh Hòa

Ngôi nhà thiết kế hình chữ U độc đáo ở Khánh Hòa

(PLO)- Ngôi nhà ở Khánh Hòa được thiết kế theo bố cục hình chữ U với những khoảng trống dành cho sân vườn.

FLOW HOUSE có sáu tầng toạ lạc trên một khu đất 165 m<sup>2</sup>, tọa lạc tại tỉnh <i>Khánh Hòa.</i>
FLOW HOUSE có sáu tầng toạ lạc trên một khu đất 165 m2 tại tỉnh Khánh Hòa.
Gia chủ mong muốn sống trong một<i> ngôi nhà </i>thật rộng rãi, tiện nghi với rất nhiều phòng ốc chức năng và các sân vườn thoáng đãng
Gia chủ mong muốn sống trong mộtngôi nhàthật rộng rãi, tiện nghi với rất nhiều phòng ốc chức năng và các sân vườn thoáng đãng.
ngoi-nha-3.jpg

Ngôi nhà ở Khánh Hòa được thiết kế phù hợp cho một gia đình ba thế hệ với thời gian thi công khoảng 18 tháng.

ngoi-nha-4.jpg
Kiến trúc sư thiết toàn bộ mặt đứng tầng ba được bao bọc bởi hệ vách và cửa kính phản quang.
ngoi-nha-5.jpg
Giải pháp thiết kế được kiến trúc sư ROOM+ Design & Build được đưa ra với mục tiêu tạo sự cân bằng cần thiết giữa nhu cầu diện tích sử dụng rất lớn đó cùng với một thủ pháp tạo hình kiến trúc hài hòa phù hợp.
ngoi-nha-6.jpg
Mặt bằng của ngôi nhà được thiết kế theo bố cục hình chữ U với những khoảng trống.
ngoi-nha-7.jpg
Các khoảng trống được thiết kế ở phía trước, phía sau và bên hông nhà hình thành những khoảng sân vườn đa dạng ở tầng trệt.
ngoi-nha-8.jpg
Các không gian sử dụng chính được bố trí từ tầng hai với điểm nhấn là khu vực phòng khách lớn có trần cao gần 6 m ở phía trước kết nối với phòng ăn và bếp rộng rãi ở phía sau.
ngoi-nha-9.jpg
Nhằm làm giảm bớt cảm giác đồ sộ của một ngôi nhà phố cao sáu tầng, các kiến trúc sư đã vận dụng thủ pháp hình khối và vật liệu một cách sáng tạo.
ngoi-nha-10.jpg
Đồng thời, kiến trúc sư chia tách bố trí chức năng ở mỗi tầng thành hai phần chính được kết nối với nhau qua một lõi giao thông gồm thang bộ, thang máy và sảnh chung ở giữa nhà.
ngoi-nha-11.jpg
Cách bố trí này tăng thêm diện tích các mặt thoáng, mở rộng tầm nhìn ra xung quanh và giúp tất cả không gian nội thất luôn được thông thoáng và chan hòa ánh sáng tự nhiên.
ngoi-nha-12.jpg
Tầng trệt và tầng ba được đẩy lùi vào trong gần 1,5m để chừa chỗ cho các dải sân vườn và ban công trồng nhiều cây xanh dọc theo cả ba mặt nhà.
ngoi-nha-13.jpg
Các phòng ngủ chính được sắp xếp ở tầng 3 và 4
ngoi-nha-15.jpg
Các mặt phẳng tường và trần được uốn cong cùng các ô cửa kính dạng vòm to giúp làm mềm đi các góc cạnh và khối tích to lớn của các phòng ốc bên trong.
ngoi-nha-16.jpg
Kiến trúc sư bố trí nội thất ở không gian vệ sinh gọn gàng và tiện nghi nhất có thể.
ngoi-nha-17.jpg
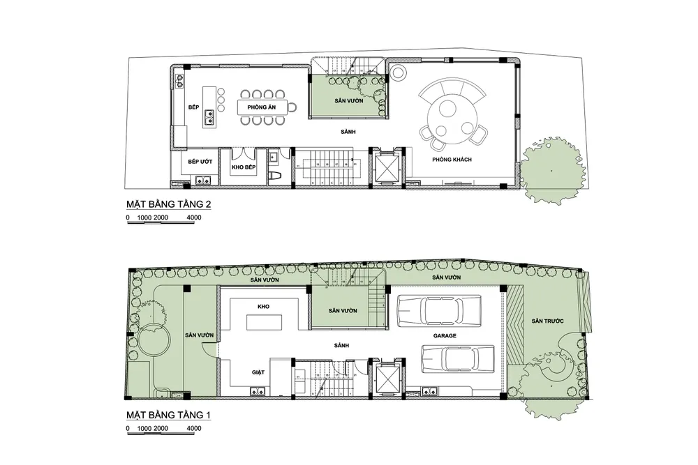
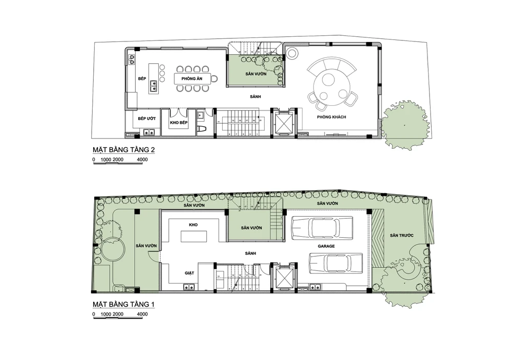
Mặt bằng tầng một và hai.
ngoi-nha-18.jpg
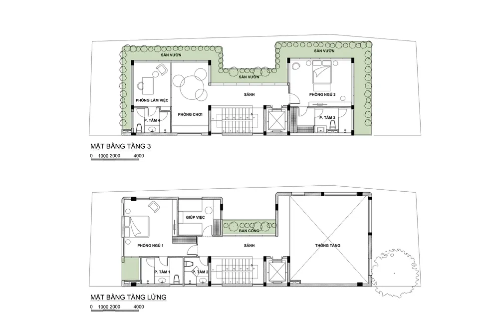
Mặt bằng tầng lửng và tầng ba.
ngoi-nha-19.jpg
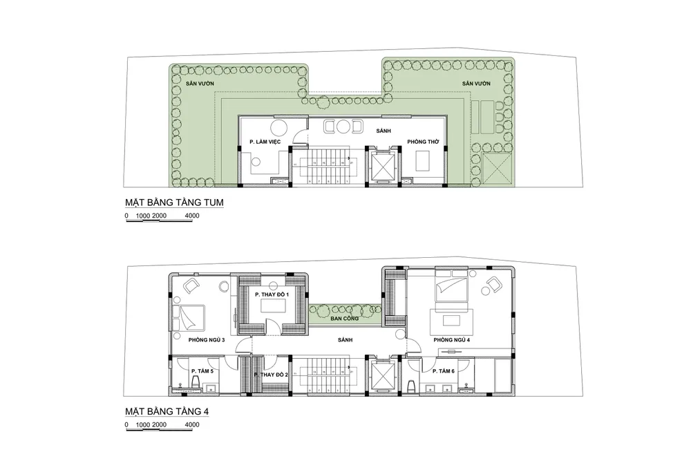
Mặt bằng tầng bốn và tầng tum.

Đọc thêm