Cải tạo nhà theo lối kiến trúc nhà người Mông ở Hà Giang

(PLO)- Công trình được cải tạo lại nhưng vẫn giữ được kiến trúc đặc trưng của lối nhà người Mông ở huyện Mèo Vạc, tỉnh Hà Giang.

nha-dep-1.jpg
Pavi homestay là ngôi nhà nằm trong một ngôi làng được bao quanh là dãy núi của cao nguyên đá Đồng Văn, huyện Mèo Vạc, tỉnh Hà Giang.
nha-dep-3.jpg
Toàn bộ ngôi làng được quy hoạch theo lối kiến trúc của đồng bào dân tộc Mông để phát triển du lịch.
nha-dep-4.jpg
Chủ nhà mong muốn ngôi nhà được cải tạo lại vẫn giữ được kiến trúc đặc trưng của lối nhà Mông, nhưng vẫn đem lại những trải nghiệm bất ngờ cho du khách khi đến đây.
nha-dep-5.jpg
Trong quá trình cải tạo ngôi nhà, kiến trúc sư Trung Trần Studio giữ lại toàn bộ khung nhà gỗ truyền thống hiện có.
nha-dep-6.jpg
Thêm vào đó, những bức tường được ốp gỗ và những bức tường tạo hiệu ứng như nhà trình tường đất của người dân địa phương.
nha-dep-7.jpg
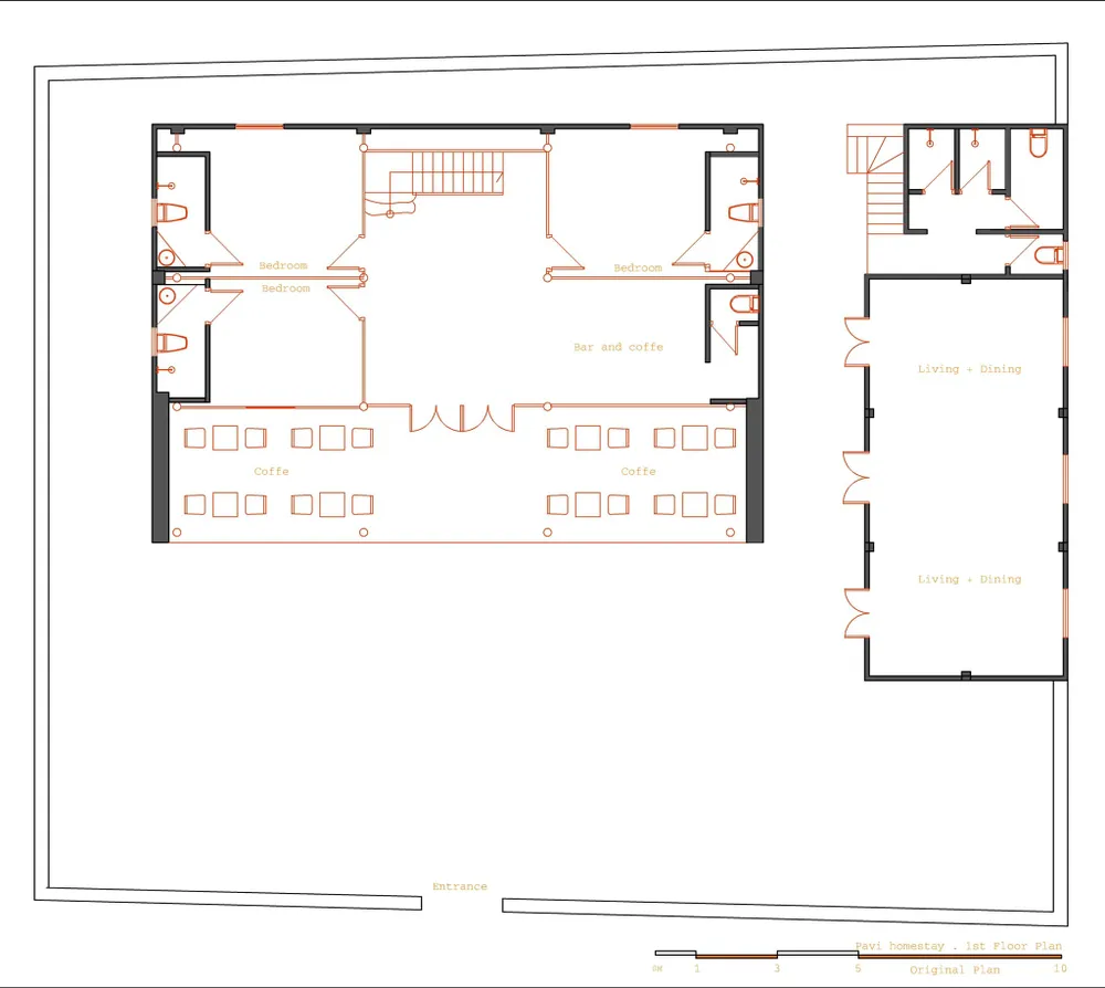
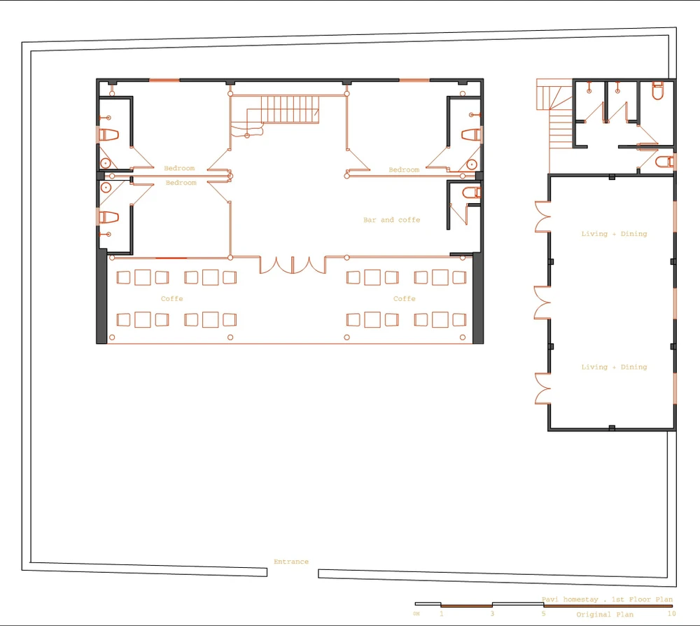
Ngôi nhà được thiết kế với ba khối: Nhà chính, nhà ngang và dãy hành lang dài.
nha-dep-8.jpg
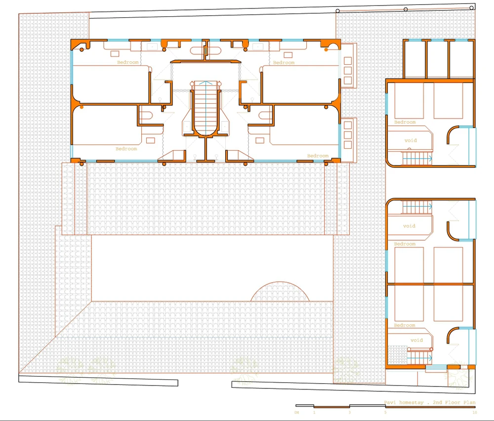
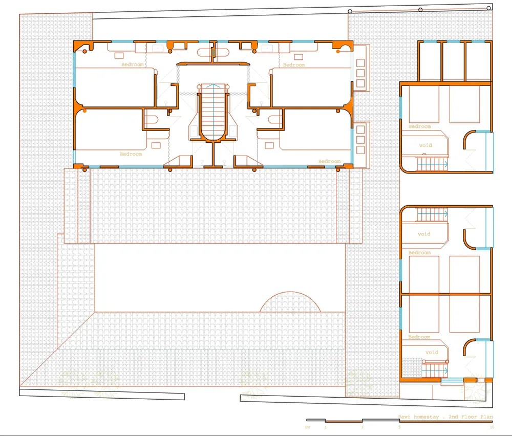
Khối nhà chính theo quy hoạch xây dựng hai tầng với 8 phòng ngủ, đều có cấu trúc khác nhau, mỗi phòng như là một ngôi nhà nhỏ trong một tổng thể lớn.
nha-dep-9.jpg
Khối hành lang xung quanh được làm hoàn toàn bằng gỗ và lợp ngói âm dương như nhà chính. Hành lang kết nối các khối nhà với nhau và là nơi phục vụ các bữa ăn cho du khách.
nha-dep-10.jpg
Nhiều họa tiết nhỏ trên bức tường làm điểm nhấn cho công trình.
nha-dep-11.jpg
Khối nhà ngang là dãy nhà có ba phòng ngủ dành cho gia đình.
nha-dep-12.jpg
Vì vậy phòng được thiết kế với cấu trúc hoàn toàn tách riêng, có giường và khu vệ sinh tách biệt bên dưới dành cho người già.
nha-dep-13.jpg
Trong khi đó gia đình trẻ ở phía trên được dẫn dắt bởi một cầu thang gỗ nhỏ.
nha-dep-14.jpg
Các chi tiết của phòng được thiết kế nhiều đường cong giúp căn phòng trông rộng và mềm mại hơn.
nha-dep-15.jpg
Toàn bộ ngôi nhà thiết kế lấy cảm hứng từ những viên ngói âm dương của đồng bào vùng cao Hà Giang.
nha-dep-16.jpg
Ngói âm dương được điểm xuyên suốt từ ngoài đến các phòng ngủ, các chi tiết trang trí, tạo cho ngôi nhà một sự liền mạch, dung hòa với cảnh quan chung của toàn bộ ngôi làng.
nha-dep-17.jpg
nha-dep-18.jpg

Đừng bỏ lỡ

Video đang xem nhiều

Đọc thêm