Ngôi nhà tuy 1 mà 2 của đôi bạn thân

Ngôi nhà tuy 1 mà 2 của đôi bạn thân

(PLO)- Hai cặp vợ chồng là bạn thân với nhau quyết định xây một ngôi nhà trên bán đảo Sơn Trà, TP Đà Nẵng để tận hưởng cuộc sống an yên.

Two Hói’s House là tổ ấm của hai cặp vợ chồng tuổi trung niên. Họ là bạn thân của nhau và muốn phần đời còn lại được ở gần nhau.

Vì là những người yêu thiên nhiên, muốn sống cuộc sống bình yên trên triền đồi nên họ quyết định mua một mảnh đất, xây một ngôi nhà trên cao của bán đảo Sơn Trà, TP Đà Nẵng.

Do đó, kiến trúc sư Tô Hữu Dũng (85 Design) thiết kế công trình bên ngoài trông giống như một ngôi nhà nhưng bên trong hai gia đình có thể ở riêng với diện tích riêng và có thể chia sẻ không gian chung ở phía trong.

Khu đất có tổng diện tích là 380 m², mật độ xây dựng cho phép là 40%. Chủ nhà yêu cầu một ngôi nhà khá đơn giản, với cấu trúc tối giản hòa hợp hài hòa với thiên nhiên.

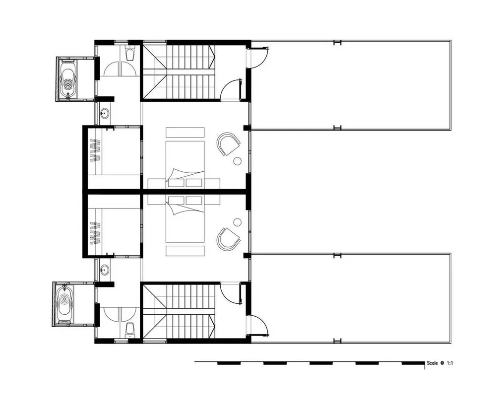
Tầng trệt bao gồm phòng khách, bếp và một phòng ngủ. Tất cả đều được kết nối với khu sân vườn rộng rãi, có thể tiếp cận thông qua cửa kính trượt.

Khi cửa kính được mở hết, khu vực trong nhà và khu sân vườn hòa quyện vào nhau.

Công trình chủ yếu sử dụng thép và gạch thô. Điều đặc biệt trong thiết kế này là bên ngoài trông giống như một ngôi nhà duy nhất, nhưng thực tế hai gia đình đều có không gian riêng và không gian chung ở bên trong.

Đồ nội thất chủ yếu sử dụng bằng chất liệu gỗ tự nhiên, gần gũi hài hòa với thiên nhiên. Kiến trúc sư lựa chọn nội thất một cách linh hoạt.

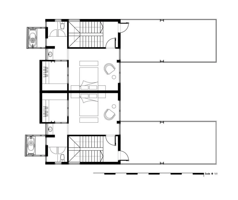
Ngôi nhà được chia thành hai khu vực khác nhau, có chức năng và tiện nghi tương tự nhau, hoàn toàn tách biệt, đối xứng qua một khu vườn ở giữa.

Sân vườn đóng vai trò là không gian trung gian giữa hai nhà, đồng thời là cửa chính ra vào.

Tại không gian chung, họ có thể ngồi trò chuyện, uống trà hoặc tổ chức bữa tiệc cùng nhau. Khoảng sân của không gian chung được trồng cỏ và bố trí cả hồ cá.

Tầng một bao gồm một phòng ngủ lớn và một sân thượng rộng rãi được trang bị mái kính. Từ phòng ngủ, cũng như sân thương gia chủ có thể nhìn thấy núi Sơn Trà.

Sơ đồ công trình

Sơ đồ công trình

Mặt bằng tầng trệt

Mặt bằng tầng trệt

Mặt bằng tầng một

Mặt bằng tầng một

Đọc thêm