![]() |
Sau bao năm sống ở trung tâm thành phố, họa sĩ Đỗ Hoàng Tường muốn chuyển ra ngoại ô TP.HCM để có không khí trong lành và không gian sáng tạo nghệ thuật. |
![]() |
Khu đất này được ngăn cách với con đường rợp bóng mát bởi một con kênh nối với sông Sài Gòn. |
![]() |
Kiến trúc sư Truong An Architecture thiết kế ngôi nhà sàn 300 m² hiện đại, bao gồm hai khối nhà hình chữ nhật với hai ao tự nhiên nối trực tiếp với kênh. |
![]() |
Tầng trệt của khối nhà chính đã được nâng lên 1,8 m so với mặt đất tự nhiên. |
![]() |
Cầu thang ngoài trời được thiết kế như một tác phẩm điêu khắc nối với sân trong. |
![]() |
Tất cả các đồ nội thất được thiết kế cẩn thận để phù hợp với ý tưởng của ngôi nhà. |
![]() |
Trong khối studio, các cửa sổ ruy băng được thiết kế ở trên cùng và dưới cùng của bức tường để tạo sự thông thoáng. |
![]() |
Khoảng thông tầng lớn trong không gian bên trong kết nối với các không gian khác trong nhà và hướng ra thiên nhiên ngoài trời. |
![]() |
Kiến trúc sư sử dụng vật liệu có kết cấu nhẹ giúp giảm tải trọng cho nền đất yếu, giảm chi phí. |
![]() |
Hệ thống cửa sổ kính suốt từ trần đến sàn với thiết kế linh hoạt đón nắng và gió đến tất cả các phòng. |
![]() |
Mái tôn hai lớp giúp tăng cường độ thông thoáng và giảm tiếng ồn cho các phòng ngủ. |
![]() |
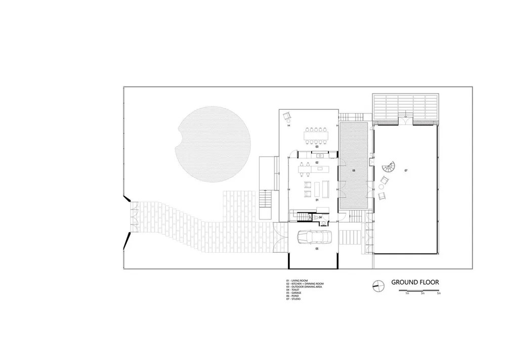
Mặt bằng tầng trệt |
![]() |
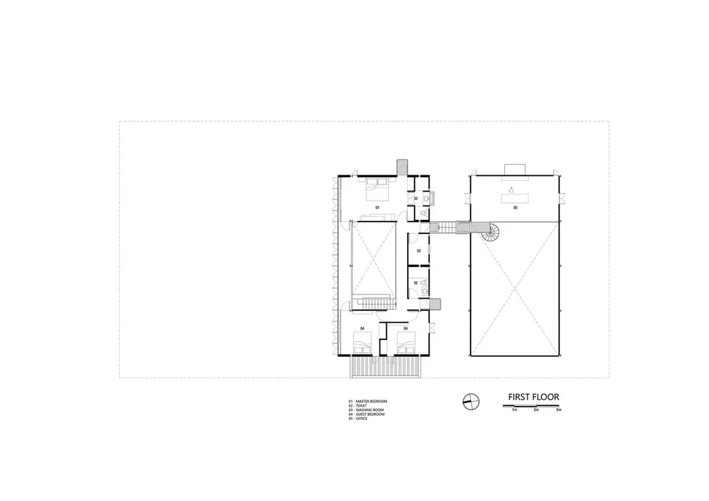
Mặt bằng tầng một |












