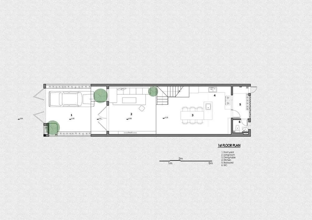
(PLO)- Kiến trúc sư đã lựa chọn giải pháp lùi khu nhà ở về phía sau, tận dụng các nhà phố kế bên làm vách che nắng hướng tây.
Rosehouse được xây dựng trên khu đất 5x14 m, nằm trong khu đô thị đông dân cư ở quận Hải Châu, thành phố Đà Nẵng. Công trình được lấy tên từ loài hoa mà chị chủ nhà rất yêu thích.
Ngôi nhà có mặt tiền hứng trọn nắng gay gắt từ hướng tây nên kiến trúc sư Nguyễn Hoàng Việt (Green Concept) đã ưu tiên giải quyết tránh nắng nóng cho công trình.
 |
Khác với những căn nhà phố kế cận được xây dựng đẩy ra trọn khu đất để tận dụng diện tích đất nhỏ trong đô thị. |
 |
Sàn ban công tầng ba được thiết kế giật thấp trên đầu cửa kính nhằm giảm góc chiếu nắng vào phòng ngủ, lượng nắng chiều sẽ không đi sâu vào phòng. |
 |
Chủ nhà vốn yêu hoa hồng, mong muốn có đủ không gian để trồng và chăm sóc hoa hồng, một loài cây cần nhiều ánh nắng trực tiếp. |
Kiến trúc sư đã lựa chọn giải pháp lùi khu nhà ở về phía sau, tận dụng các nhà phố kế bên làm vách che nắng hướng tây, chừa lại một khoảng sân vườn lớn phía trước để thỏa mãn mong muốn của gia chủ.
Khoảng sân vườn lúc này cũng chính là vùng không gian đệm có chức năng phân cách không gian sống bên trong với môi trường bên ngoài.
 |
Rosehouse được thiết kế lùi sâu, chừa lại khoảng sân trước rộng rãi để đón nắng, gió được nhiều nhất và tạo được không gian thỏa đam mê của gia chủ. |
 |
Nhà hướng tây lại nằm trong khu đô thị đông đúc dân cư nên nếu không xử lý khéo sẽ vừa bí bách, thiếu khoảng thở và hứng trọn ánh nắng gay gắt vào buổi chiều. |
 |
Bức tường hoa gió nửa kín nửa hở làm dịu ánh nắng chói mà vẫn đưa được ánh sáng, gió trời vào trong nhà. |
 |
Bức tường hoa gió góp phần làm giảm đi sự bí bách thường thấy của nhà phố. |
 |
Không gian ở được sử dụng giải pháp thiết kế là tạo một không gian mở liền mạch thông thoáng cho tất cả các không gian trong nhà. |
 |
Ngôi nhà sử dụng ba loại vật liệu chính: sơn bê tông, gỗ màu tối, màu tường trắng làm nền chủ đạo. |
 |
Khu vực bếp và phòng khách nối kết với nhau nhưng vẫn được phân tách không gian bởi khoảng vòm cong. |
 |
Chiều dài ngắn nên các kiến trúc sư đã tận dụng triệt để không gian dưới cầu thang để tăng chiều dài bếp và phòng kho. |
 |
Cầu thang được bố trí giữa nhà, kết nối không gian các tầng; không gian riêng tư với không gian chung. |
 |
Khoảng thông tầng giúp lấy sáng và gió cho ngôi nhà, gắn kết các không gian chặt chẽ với nhau. |
 |
Giữa khoảng thông tầng, kiến trúc sư bố trí thêm cây xanh để tạo nên sự xanh mát cho ngôi nhà. |
 |
Những đường cong mềm mại của các ô cửa làm mềm hóa không gian. |
 |
Nơi thờ cúng được thiết kế riêng, trang nghiêm. |
 |
| Phòng ngủ master được thiết kế với tông trầm tối, đồng thời có hệ lam vừa che nắng vừa có thể bố trí trí thêm cây xanh. |
 |
Phòng ngủ của con xử dụng hệ giường sạp nhằm tăng không gian ngủ cho căn phòng. |
 |
Khu vệ sinh thiết kế gọn gàng, sạch thoáng. |
Kiến trúc sư Nguyễn Hoàng Việt cho biết công trình sử dụng giải pháp kiến trúc đơn giản nhưng được tính toán và nghiên cứu rất khoa học.
Khu ở với diện tích vửa đủ kết hợp các khoảng đóng mở thiết kế khéo léo đã tạo nên công trình thoáng mát và gần gũi với thiên nhiên.
Theo kiến trúc sư, việc bố trí không gian dựa trên sự phân tích kỹ lưỡng rcác điều kiện vi khí hậu, đảm bảo thông gió và ánh sáng thích hợp cho các hoạt động diễn ra bên trong.
Trong một diện tích nhỏ, việc tạo ra một công trình đáp ứng mọi công năng nhưng vẫn mang nét cá tính và khác biệt nhất định là một yêu cầu khó của dự án.