Ngỡ ngàng với ngôi nhà biết 'thở' mọi lúc mọi nơi

(PLO)- Ngôi nhà có diện tích 300 m² nổi bật ở TP.HCM nhờ thiết kế độc đáo nhiều cây xanh cùng khả năng thông gió.
TQ House tọa lạc tại khu đất có diện tích 5 x16 m nằm xen giữa hai ngôi nhà hiện hữu tại TP.HCM.

TQ House tọa lạc tại khu đất có diện tích 5 x16 m nằm xen giữa hai ngôi nhà hiện hữu tại TP.HCM.

Mặt tiền hướng ra con phố nhỏ và mặt sau là một ngôi nhà khác, đây là một kiểu nhà phố điển hình ở đô thị Việt Nam.

Mặt tiền hướng ra con phố nhỏ và mặt sau là một ngôi nhà khác, đây là một kiểu nhà phố điển hình ở đô thị Việt Nam.

Đây là tổ ấm của gia đình ba thế hệ được thiết kế bởi kiến trúc sư MDarchitects.

Đây là tổ ấm của gia đình ba thế hệ được thiết kế bởi kiến trúc sư MDarchitects.

Yêu cầu của gia chủ tập trung vào những không gian riêng tư cho từng thành viên và những không gian chung để gắn kết mọi người trong thời gian sinh hoạt gia đình.

Yêu cầu của gia chủ tập trung vào những không gian riêng tư cho từng thành viên và những không gian chung để gắn kết mọi người trong thời gian sinh hoạt gia đình.

Bên cạnh đó, hệ thống thông gió cũng được kiến trúc sư MDarchitects quan tâm.

Bên cạnh đó, hệ thống thông gió cũng được kiến trúc sư MDarchitects quan tâm.

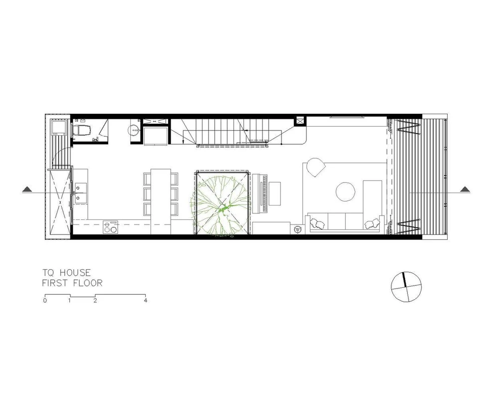
Mọi không gian hạng mục đều có hai mặt thông gió ra khoảng trống hoặc sân vườn bằng cửa trượt để tạo sự thông gió xuyên suốt.

Mọi không gian hạng mục đều có hai mặt thông gió ra khoảng trống hoặc sân vườn bằng cửa trượt để tạo sự thông gió xuyên suốt.

Một khoảng trống lớn được đưa ra giữa nhà làm ống thông gió cho mọi không gian.

Một khoảng trống lớn được đưa ra giữa nhà làm ống thông gió cho mọi không gian.

Phòng ngủ của người lớn được bố trí thêm giữa hai sân vườn ở tầng trệt, hai phòng ngủ cho con 5 tuổi và bố mẹ ở tầng hai.

Phòng ngủ của người lớn được bố trí thêm giữa hai sân vườn ở tầng trệt, hai phòng ngủ cho con 5 tuổi và bố mẹ ở tầng hai.

Trên tầng thượng có một phòng tập thể dục nhỏ mở ra sân vườn.

Trên tầng thượng có một phòng tập thể dục nhỏ mở ra sân vườn.

Sân thượng nhà tràn ngập cây xanh đem lại sự tươi mát cho công trình.

Sân thượng nhà tràn ngập cây xanh đem lại sự tươi mát cho công trình.

Đừng bỏ lỡ

Video đang xem nhiều

Đọc thêm