Ngôi nhà có nhiều khoảng đệm để 'giải nhiệt'
(PLO)- Kiến trúc sư đã xây dựng những khoảng đệm đan xen với các không gian chức năng để làm mát cho ngôi nhà.
 |
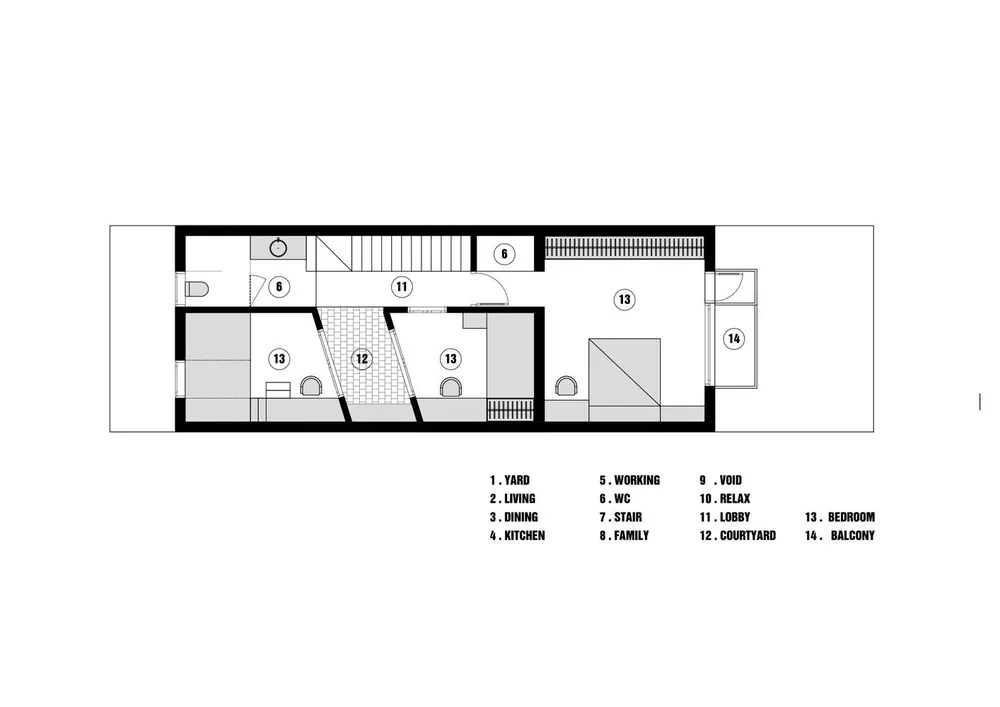
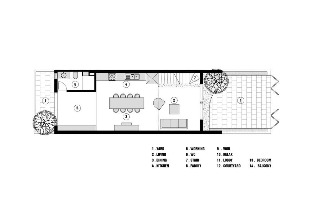
Công trình được xây dựng trên khu đất có kích thước 5 m x 20 m với một mặt thoáng ở TP Hà Nội. |
 |
Kiến trúc sư TOOB Studio chừa lại một phần diện tích cho sân trước và sau vừa đảm bảo quy hoạch đô thị vừa giúp cho nhà có khoảng cây xanh mát. |
 |
Những khoảng đệm giữa mái nhà và không gian chức năng đã giải quyết được vấn đề ánh sáng và thông gió. |
 |
Tầng một là không gian phòng khách, bếp và bàn ăn. |
 |
Góc đọc sách thư giãn của gia đình liên thông từ tầng một lên tầng hai. |
 |
Nơi thờ cúng thiêng liêng được thiết kế riêng một góc ở tầng hai nhà. |
 |
Lưới nghỉ thư giãn là không gian vui chơi của cả gia đình những lúc rảnh rỗi. |
 |
Cầu thang với lan can bằng sắt màu trắng nổi bật giữa nền cầu thang bằng gỗ. |
 |
Một khoảng không gian trống ở tầng hai, nơi các con vui chơi cùng nhau. |
 |
Khoảng đệm ở tầng ba tràn ngập ánh sáng tự nhiên. |
 |
Phòng ngủ của bé thiết kế đơn giản, thông thoáng và tràn ngập ánh sáng. |
 |
Nội thất phòng ngủ bố mẹ được thiết kế đơn giản, làm không gian này thêm rộng hơn dù diện tích xây dựng nhà khá nhỏ. |