Ngôi nhà gần biển có thiết kế mở kết nối mọi thành viên
(PLO)- Hạ Long house có thiết kế mở nhằm kết nối các không gian và đón được lượng không khí trong lành từ biển.
 |
Hạ Long house có diện tích 300 m², tọa lạc tại TP Hạ Long, tỉnh Quảng Ninh. |
 |
Ngôi nhà cách bờ biển TP Hạ Long hơn 1 km do kiến trúc sư TOOB STUDIO thiết kế. |
 |
Tận dụng vị trí khu đất gần biển, kiến trúc sư đã thiết kế không gian mở để có thể đón được luồng không khí của biển. |
 |
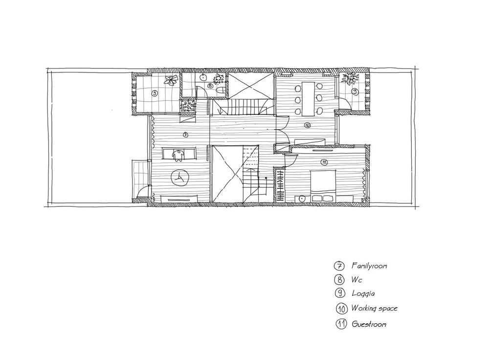
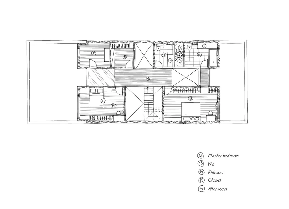
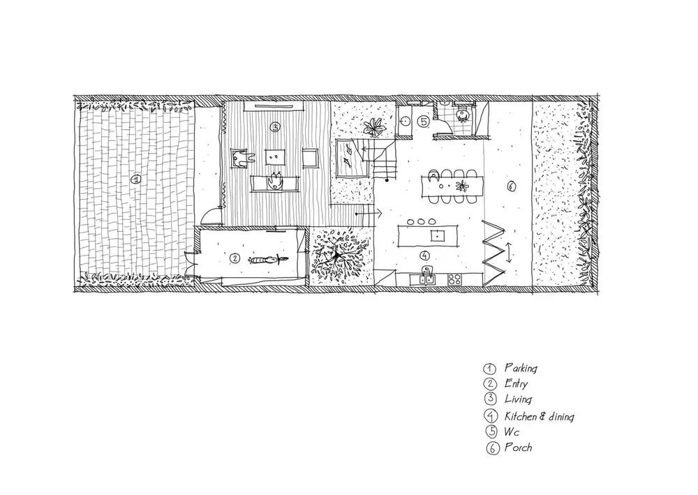
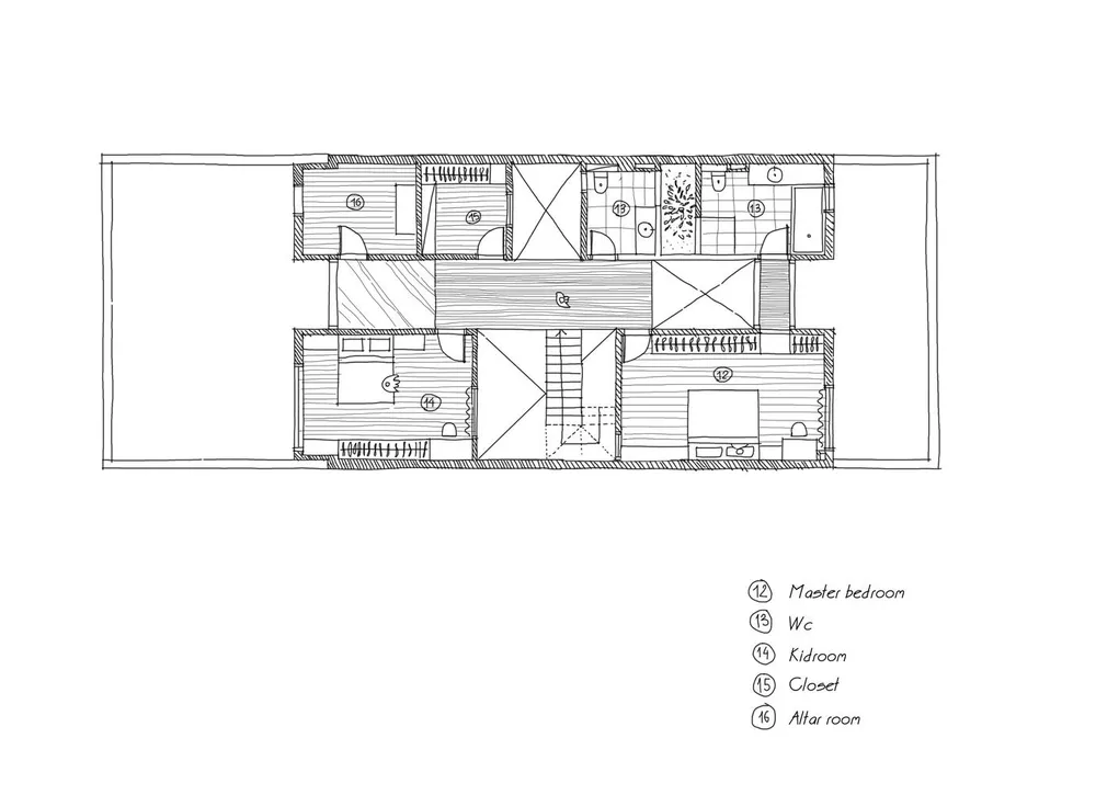
Ngoài những không gian thực sự cần riêng tư, mọi phần khác đều được kết nối với nhau như không gian phòng khách, bếp, bàn ăn... |
 |
Mặt sàn gian bếp được xây cao hơn các không gian còn lại. |
 |
Bếp và bàn ăn nằm giữa hai khoảng sân trước và sân sau. |
 |
Với thiết kế mở này, những người con dù ở bất cứ tầng nào cũng có thể nhìn thấy bố mẹ. |
 |
Cầu thang và giếng trời được thiết kế giữa nhà, kết nối các tầng trên và không gian riêng tư. |
 |
Cây xanh giúp ngôi nhà trở nên xanh mát hơn. |
 |
Thiết kế kính đối xứng trên mái nhà giúp ngôi nhà luôn tràn ngập ánh sáng. |