Ngôi nhà mái dốc nổi bật giữa góc phố Hà Nội

(PLO)- Corner House tạo sự khác biệt với công trình lân cận bởi phần mái ngói khoét ô cách điệu.
Corner House được cải tạo từ ngôi nhà đã cũ nằm tại góc ngã tư của một khu phố ở Hà Nội.

Corner House được cải tạo từ ngôi nhà đã cũ nằm tại góc ngã tư của một khu phố ở Hà Nội.

Tận dụng lợi thế của khu đất, kiến trúc sư TOOB Studio chọn phương án kiến trúc cải tạo với hình khối đơn giản nhưng linh hoạt.

Tận dụng lợi thế của khu đất, kiến trúc sư TOOB Studio chọn phương án kiến trúc cải tạo với hình khối đơn giản nhưng linh hoạt.

Kiến trúc sư thiết kế mặt tiền độc đáo và khoảng sân gợi đến hình ảnh kiến trúc nhà ở truyền thống Việt Nam.

Kiến trúc sư thiết kế mặt tiền độc đáo và khoảng sân gợi đến hình ảnh kiến trúc nhà ở truyền thống Việt Nam.

Nét truyền thống còn được thể hiện bởi hình ảnh của cửa nan chớp, cửa bức bàn và các hệ xà gồ lợp ngói.

Nét truyền thống còn được thể hiện bởi hình ảnh của cửa nan chớp, cửa bức bàn và các hệ xà gồ lợp ngói.

Nhìn từ trên cao, công trình nổi bật với phần mái ngói khoét ô cách điệu màu xanh navy.

Nhìn từ trên cao, công trình nổi bật với phần mái ngói khoét ô cách điệu màu xanh navy.

Không gian phòng khách hiện đại với tông màu trung tính.

Không gian phòng khách hiện đại với tông màu trung tính.

Tông màu trầm của gỗ mang lại cảm giác sang trọng mà ấm cúng.

Tông màu trầm của gỗ mang lại cảm giác sang trọng mà ấm cúng.

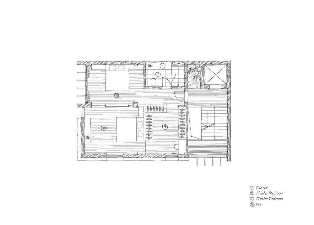
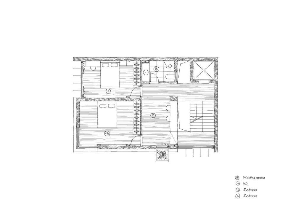
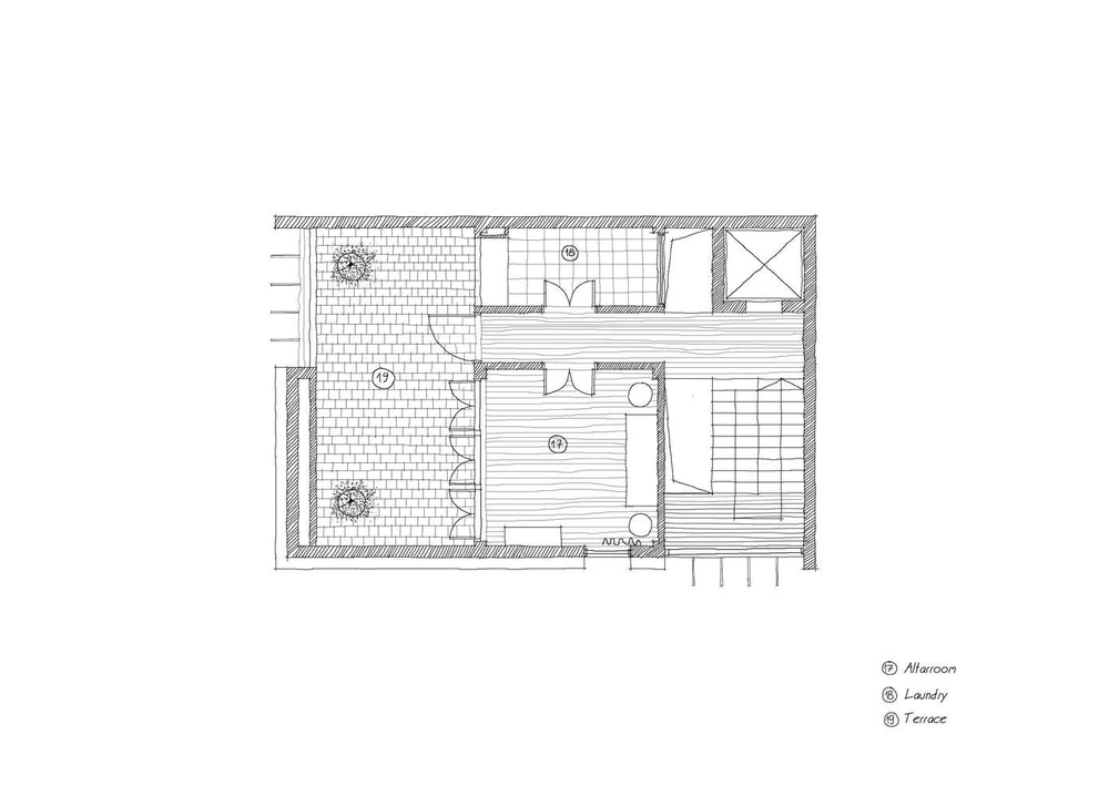
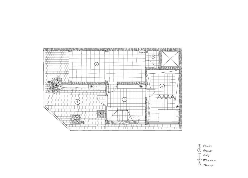
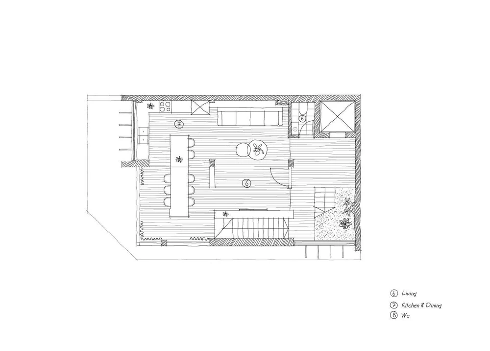
Chỉ với diện tích 90 m², ngôi nhà đã đáp ứng đủ công năng sử dụng của gia chủ, đầy đủ không gian chung và riêng, đặc biệt các không gian đều kết nối với thiên nhiên.

Chỉ với diện tích 90 m², ngôi nhà đã đáp ứng đủ công năng sử dụng của gia chủ, đầy đủ không gian chung và riêng, đặc biệt các không gian đều kết nối với thiên nhiên.

Cầu thang, lan can nhà đều được kiến trúc sư tính toán kĩ lưỡng để tận dụng tối đa ánh sáng.

Cầu thang, lan can nhà đều được kiến trúc sư tính toán kĩ lưỡng để tận dụng tối đa ánh sáng.

Lan can, vách bằng kính nhằm tạo không gian rộng rãi, thoáng đãng.

Lan can, vách bằng kính nhằm tạo không gian rộng rãi, thoáng đãng.

Thiết kế cửa chớp là giải pháp giúp căn nhà đón nắng và đón gió vào nhà.

Thiết kế cửa chớp là giải pháp giúp căn nhà đón nắng và đón gió vào nhà.

Một góc đọc sách, đánh đàn cho cả gia đình.

Một góc đọc sách, đánh đàn cho cả gia đình.

Phòng ngủ đón lượng ánh sáng từ ô cửa sổ ở góc vuông.

Phòng ngủ đón lượng ánh sáng từ ô cửa sổ ở góc vuông.

Đừng bỏ lỡ

Video đang xem nhiều

Đọc thêm