Ngôi nhà gió của cặp đôi 10 năm yêu xa

(PLO)-  Wind’s house được thiết kế lấy cảm hứng từ gió để kể về câu chuyện tình yêu đẹp 10 năm.
Công trình có diện tích 125 m², tổng chi phí đầu tư khoảng 2 tỉ đồng.

Công trình có diện tích 125 m², tổng chi phí đầu tư khoảng 2 tỉ đồng.

Wind’s house tọa lạc ở Đà Nẵng, mặt tiền nhà khác biệt với công trình lân cận. Mái nhà được thiết kế vuốt cong.

Wind’s house tọa lạc ở Đà Nẵng, mặt tiền nhà khác biệt với công trình lân cận. Mái nhà được thiết kế vuốt cong.

Cái tên "Wind’s house" được bắt nguồn từ chính mối tình hết sức lãng mạn của chủ nhà. Họ yêu nhau từ thời cấp ba, anh rời vùng quê về Sài Gòn sinh sống, từ đó họ yêu xa và gửi gắm lời nhung nhớ qua những dòng tin nhắn. Sau 10 năm, họ quyết định về quê sinh sống và xây dựng tổ ấm với nhau.

Cái tên "Wind’s house" được bắt nguồn từ chính mối tình hết sức lãng mạn của chủ nhà. Họ yêu nhau từ thời cấp ba, anh rời vùng quê về Sài Gòn sinh sống, từ đó họ yêu xa và gửi gắm lời nhung nhớ qua những dòng tin nhắn. Sau 10 năm, họ quyết định về quê sinh sống và xây dựng tổ ấm với nhau.

Từ bên ngoài nhìn vào công trình là màu xanh ngát của dàn cây leo.

Từ bên ngoài nhìn vào công trình là màu xanh ngát của dàn cây leo.

Bài toán đầu tiên đặt ra cho các kiến trúc sư Green Concept và Nhà Của Gió là phải làm sao đảm bảo được gió lưu thông xuyên suốt khắp nhà.

Bài toán đầu tiên đặt ra cho các kiến trúc sư Green Concept và Nhà Của Gió là phải làm sao đảm bảo được gió lưu thông xuyên suốt khắp nhà.

Khu vực sân vườn, kiến trúc sư thiết kế hồ cá Koi đặt trước hướng gió Phơn có hơi nước để giảm bớt sức nóng của nguồn gió đặc trưng ở Đà Nẵng vào mùa hè.

Khu vực sân vườn, kiến trúc sư thiết kế hồ cá Koi đặt trước hướng gió Phơn có hơi nước để giảm bớt sức nóng của nguồn gió đặc trưng ở Đà Nẵng vào mùa hè.

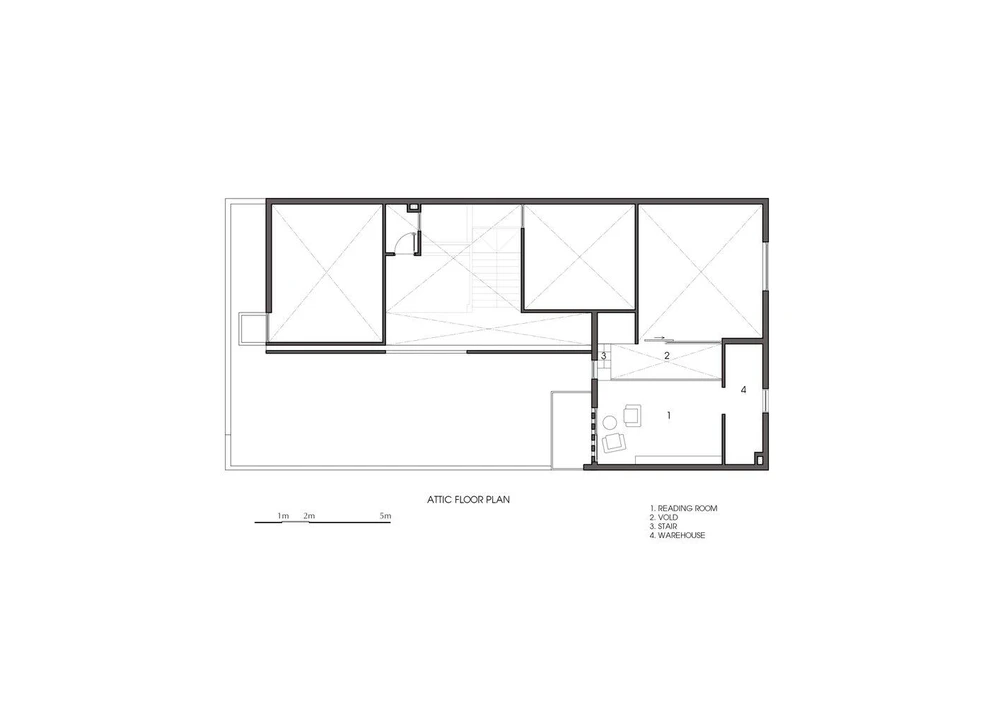
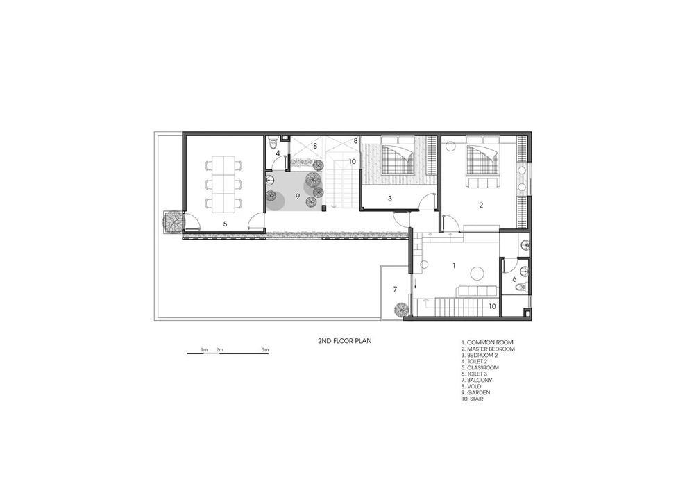
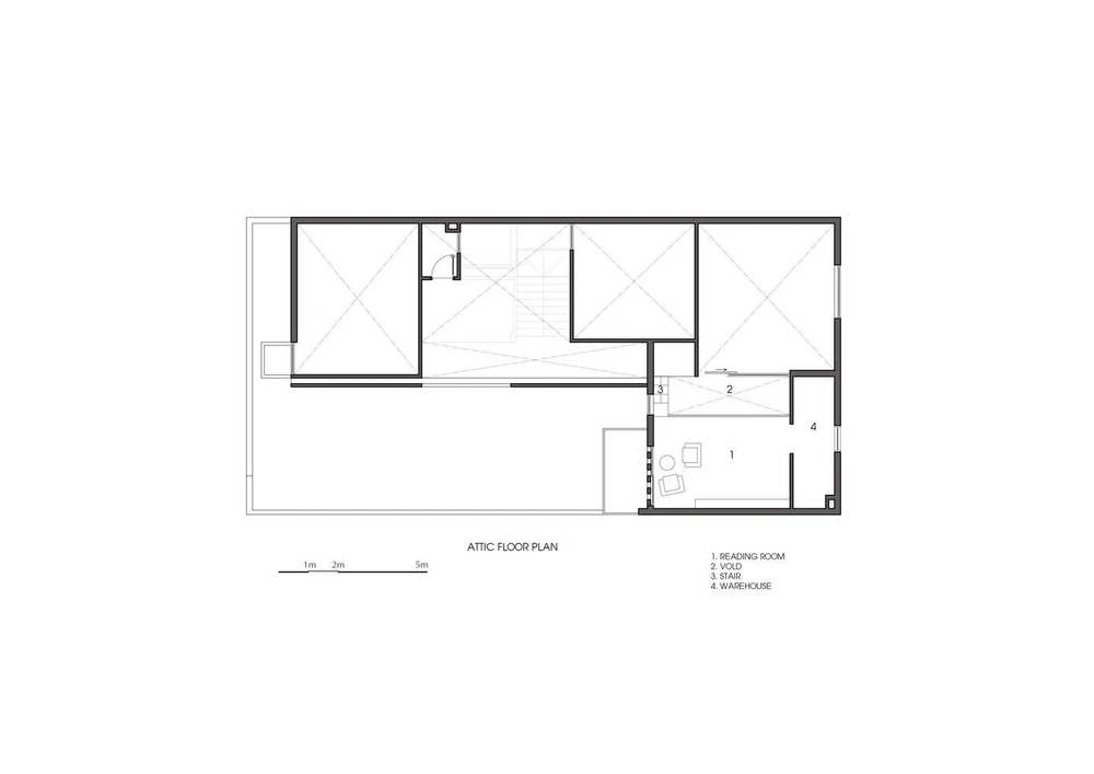
Các kiến trúc sư đã chia ngôi nhà thành ba khối chức năng chính ngăn cách với nhau.

Các kiến ​​trúc sư đã chia ngôi nhà thành ba khối chức năng chính ngăn cách với nhau.

Cách bài trí nội thất của phòng khách mộc mạc, gần gũi.

Cách bài trí nội thất của phòng khách mộc mạc, gần gũi.

Thiết kế cửa kính lớn giúp phòng khách, bếp nhận được nguồn sáng tự nhiên nhiều nhất.

Thiết kế cửa kính lớn giúp phòng khách, bếp nhận được nguồn sáng tự nhiên nhiều nhất.

Ba khối nhà được ngăn cách bởi cầu thang và không gian sân vườn tạo ra những khoảng trống đối lưu đến mọi ngóc ngách trong nhà.

Ba khối nhà được ngăn cách bởi cầu thang và không gian sân vườn tạo ra những khoảng trống đối lưu đến mọi ngóc ngách trong nhà.

Những khoảng trống được kết hợp với hệ thống cửa tạo thành luồng thông gió, đối lưu không khí rất quan trọng cho ngôi nhà.

Những khoảng trống được kết hợp với hệ thống cửa tạo thành luồng thông gió, đối lưu không khí rất quan trọng cho ngôi nhà.

Giếng trời, thông tầng là cách kiến trúc sư lấy sáng cho ngôi nhà.

Giếng trời, thông tầng là cách kiến trúc sư lấy sáng cho ngôi nhà.

Phòng ngủ vừa sang trọng vừa ấm cúng.

Phòng ngủ vừa sang trọng vừa ấm cúng.

Ngoài ra còn có một khu vườn lớn nằm song song với khu vực làm việc và vuông góc với không gian sống.

Ngoài ra còn có một khu vườn lớn nằm song song với khu vực làm việc và vuông góc với không gian sống.

Hiệu ứng bóng đổ tại không gian vệ sinh.

Hiệu ứng bóng đổ tại không gian vệ sinh.

Đừng bỏ lỡ

Video đang xem nhiều

Đọc thêm