Biệt thự nhiệt đới cho gia đình 3 thế hệ ở Bình Định

(PLO)- Công trình thiết kế hiện đại, thích nghi với khí hậu nhiệt đới ở TP Quy Nhơn, tỉnh Bình Định.
QH Villa có diện tích 620 m2 tọa lạc tại vị trí tại giao lộ lớn vào thành phố Quy Nhơn, Bình Định.
QH Villa có diện tích 620 m2 tọa lạc tại vị trí tại giao lộ lớn vào thành phố Quy Nhơn, Bình Định.
Khu đất có diện tích khá lớn nhưng lại có mặt tiền hẹp.
Khu đất có diện tích khá lớn nhưng lại có mặt tiền hẹp.
Công trình trải dài theo hướng bắc-nam với mặt đón nắng chính đông - tây, kiến trúc sư Trương Minh Tùng (Chi.Arch) đã tổ chức không gian mặt ngoài nhà thành hai lớp với những khoảng ban công và hiên rộng.

Công trình trải dài theo hướng bắc-nam với mặt đón nắng chính đông - tây, kiến trúc sư Trương Minh Tùng (Chi.Arch) đã tổ chức không gian mặt ngoài nhà thành hai lớp với những khoảng ban công và hiên rộng.

Lối mặt tiền hẹp, kiến trúc sư trồng cây xanh dọc hai lối đi.
Lối mặt tiền hẹp, kiến trúc sư trồng cây xanh dọc hai lối đi.
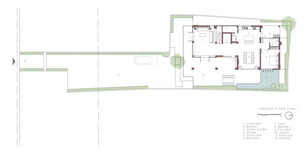
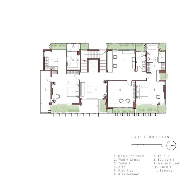
Ngôi nhà với đa chức năng cho ba thế hệ cùng chung sống.
Ngôi nhà với đa chức năng cho ba thế hệ cùng chung sống.
Kiến trúc công trình theo xu hướng nhiệt đới hiện đại.
Kiến trúc công trình theo xu hướng nhiệt đới hiện đại.
Những khoảng hiên và ban công rộng trải theo mặt tiền hướng Đông, kết hợp với lam chắn nắng và cửa chớp.

Những khoảng hiên và ban công rộng trải theo mặt tiền hướng Đông, kết hợp với lam chắn nắng và cửa chớp.

Mặt hướng tây được bố trí các chức năng phụ như vệ sinh, cầu thang, các gian sinh hoạt như phòng gym, phòng học trẻ em được tách biệt bởi ban công cây xanh và hệ tường gạch hoa gió.

Mặt hướng tây được bố trí các chức năng phụ như vệ sinh, cầu thang, các gian sinh hoạt như phòng gym, phòng học trẻ em được tách biệt bởi ban công cây xanh và hệ tường gạch hoa gió.

Cầu thang dẫn lên các tầng trên.
Cầu thang dẫn lên các tầng trên.
Bằng cách thiết kế của kiến trúc sư ngôi nhà đảm bảo thông gió và ánh sáng.
Bằng cách thiết kế của kiến trúc sư ngôi nhà đảm bảo thông gió và ánh sáng.
Khu vực ban công và hiên hướng đông, vừa tạo khoảng đệm chắn nắng cho công trình, vừa tạo không gian cây xanh xanh mát cho tất cả các gian sinh hoạt trong nhà.
Khu vực ban công và hiên hướng đông, vừa tạo khoảng đệm chắn nắng cho công trình, vừa tạo không gian cây xanh xanh mát cho tất cả các gian sinh hoạt trong nhà.
Góc làm việc, thư giãn ngập nắng. Khi nắng chiều chiếu vào lam chắn tạo nên hiệu ứng bóng đổ bắt mắt.
Góc làm việc, thư giãn ngập nắng. Khi nắng chiều chiếu vào lam chắn tạo nên hiệu ứng bóng đổ bắt mắt.
Hệ lam chắn nắng.
Hệ lam chắn nắng.
Khoảng ban công rộng để kiến trúc sư bố trí cây xanh tạo nên sự thoáng mát.
Khoảng ban công rộng để kiến trúc sư bố trí cây xanh tạo nên sự thoáng mát.
Phòng tắm và khu vệ sinh thoáng sáng nhờ tấm lấy sáng Polycarbonate.
Phòng tắm và khu vệ sinh thoáng sáng nhờ tấm lấy sáng Polycarbonate.

Đừng bỏ lỡ

Video đang xem nhiều

Đọc thêm