Ngôi nhà Bắc Bộ tiện nghi như resort

(PLO)- Thai Binh house được thiết kế mang hơi hướng của nhà truyền thống Bắc Bộ nhưng vẫn hiện đại.
Công trình được xây dựng trên khu đất 600 m² nằm tại vùng nông thôn trồng lúa tiếp giáp TP Thái Bình.

Công trình được xây dựng trên khu đất 600 m² nằm tại vùng nông thôn trồng lúa tiếp giáp TP Thái Bình.

Kiến trúc sư Chử Ngọc Anh cho biết, ngôi nhà là nơi sinh sống của ông bà và các con cháu sẽ về chơi mỗi dịp cuối tuần nên phương án thiết kế với tiêu chí quan trọng nhất là phải phù hợp với lối sống và thói quen sinh hoạt hàng ngày của họ.

Kiến trúc sư Chử Ngọc Anh cho biết, ngôi nhà là nơi sinh sống của ông bà và các con cháu sẽ về chơi mỗi dịp cuối tuần nên phương án thiết kế với tiêu chí quan trọng nhất là phải phù hợp với lối sống và thói quen sinh hoạt hàng ngày của họ.

Ưu điểm về vị trí ngôi nhà khi có ba mặt thoáng với góc nhìn rộng ra vườn và ao, cũng như đón gió Nam tốt; nhược điểm duy nhất là mặt chính nhà hướng Tây.

Ưu điểm về vị trí ngôi nhà khi có ba mặt thoáng với góc nhìn rộng ra vườn và ao, cũng như đón gió Nam tốt; nhược điểm duy nhất là mặt chính nhà hướng Tây.

Kiến trúc sư thiết kế “rèm cây” giúp chắn nắng bức xạ giúp điều hòa nhiệt độ tốt hơn, đồng thời vẫn đảm bảo thoáng gió, tầm nhìn.

Kiến trúc sư thiết kế “rèm cây” giúp chắn nắng bức xạ giúp điều hòa nhiệt độ tốt hơn, đồng thời vẫn đảm bảo thoáng gió, tầm nhìn.

"Rèm cây" này còn giúp làm mềm không gian kiến trúc, giúp con người với thiên nhiên kết nối chặt chẽ.

"Rèm cây" này còn giúp làm mềm không gian kiến trúc, giúp con người với thiên nhiên kết nối chặt chẽ.

Cánh cửa với lam gỗ dọc giúp cho việc điều tiết ánh sáng và giảm ánh nắng cho phòng khách tốt hơn.

Cánh cửa với lam gỗ dọc giúp cho việc điều tiết ánh sáng và giảm ánh nắng cho phòng khách tốt hơn.

Hệ cửa đóng mở dễ dàng để thay đổi trạng thái, thuận tiện trong việc kết nối với hiên, ngoài ra còn tạo mảng vật liệu mạnh mẽ cho mặt chính.

Hệ cửa đóng mở dễ dàng để thay đổi trạng thái, thuận tiện trong việc kết nối với hiên, ngoài ra còn tạo mảng vật liệu mạnh mẽ cho mặt chính.

Để tăng tính kết nối và tương tác giữa các thành viên trong gia đình, khu bếp và đảo cây được đưa vào trung tâm của trục công năng phụ.

Để tăng tính kết nối và tương tác giữa các thành viên trong gia đình, khu bếp và đảo cây được đưa vào trung tâm của trục công năng phụ.

Kiến trúc sư kết hợp bếp vào vị trí thông tầng còn tạo nên kết nối theo phương đứng với hai phòng ngủ trên tầng.

Kiến trúc sư kết hợp bếp vào vị trí thông tầng còn tạo nên kết nối theo phương đứng với hai phòng ngủ trên tầng.

Kiến trúc sư đã bố trí hàng hiên đóng vai trò một không gian đệm chuyển tiếp giữa trong nhà và ngoài nhà, đồng thời là không gian giảm nhiệt cho phòng khách với việc kết hợp trồng cây xanh che nắng.

Kiến trúc sư đã bố trí hàng hiên đóng vai trò một không gian đệm chuyển tiếp giữa trong nhà và ngoài nhà, đồng thời là không gian giảm nhiệt cho phòng khách với việc kết hợp trồng cây xanh che nắng.

Cũng như các công trình nhà truyền thống ở Bắc Bộ, kiến trúc sư đã thiết lập một trục chính từ sân qua hiên, vào phòng khách rồi đến khu vực thờ cúng.

Cũng như các công trình nhà truyền thống ở Bắc Bộ, kiến trúc sư đã thiết lập một trục chính từ sân qua hiên, vào phòng khách rồi đến khu vực thờ cúng.

Không gian bếp được bố trí dưới khoảng thông tầng.

Không gian bếp được bố trí dưới khoảng thông tầng.

Ngôi nhà luôn tràn ngập ánh sáng tự nhiên.

Ngôi nhà luôn tràn ngập ánh sáng tự nhiên.

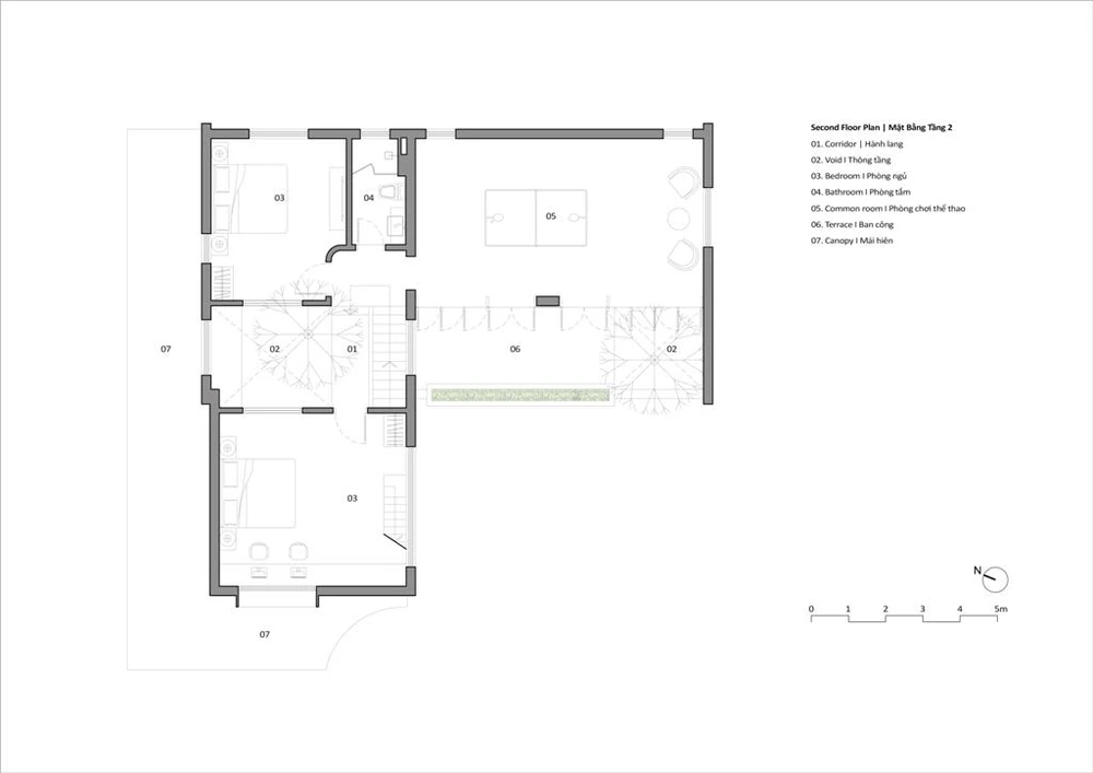
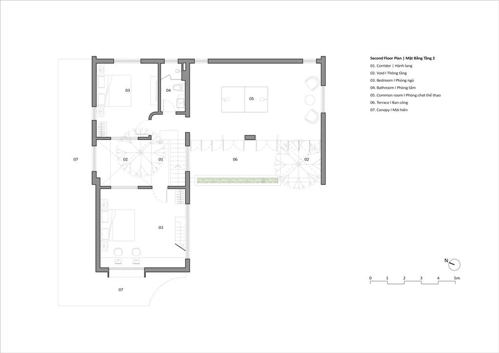
Tầng hai là nơi bố trí phòng ngủ của hai người con trai về chơi mỗi cuối tuần, và một phòng chơi bóng bàn cho cả gia đình.

Tầng hai là nơi bố trí phòng ngủ của hai người con trai về chơi mỗi cuối tuần, và một phòng chơi bóng bàn cho cả gia đình.

Kiến trúc sư Chử Ngọc Anh đã tận dụng không gian mái dốc để làm một phòng áp mái nhỏ, phù hợp làm phòng ngủ và chơi cho trẻ con.

Kiến trúc sư Chử Ngọc Anh đã tận dụng không gian mái dốc để làm một phòng áp mái nhỏ, phù hợp làm phòng ngủ và chơi cho trẻ con.

Phòng ngủ nhỏ nằm trong phòng ngủ của bố mẹ nên rất dễ dàng cho bố mẹ quản lý và tương tác với con cái.

Phòng ngủ nhỏ nằm trong phòng ngủ của bố mẹ nên rất dễ dàng cho bố mẹ quản lý và tương tác với con cái.

Phòng chơi bóng bàn cho cả gia đình vào lúc rảnh rỗi.

Phòng chơi bóng bàn cho cả gia đình vào lúc rảnh rỗi.

Khoảng trống trong nhà đều được lấp đầy bằng cây xanh.

Khoảng trống trong nhà đều được lấp đầy bằng cây xanh.

Một hệ cửa gỗ cánh xoay mô phỏng “cửa bức bàn” truyền thống Bắc Bộ.

Một hệ cửa gỗ cánh xoay mô phỏng “cửa bức bàn” truyền thống Bắc Bộ.

Sau nhà là mô hình “nông nghiệp tự cung tự cấp” như vườn trồng rau và cây ăn quả...

Sau nhà là mô hình “nông nghiệp tự cung tự cấp” như vườn trồng rau và cây ăn quả...

Kiến trúc sư Chử Ngọc Anh cho biết, một số tiêu chí khác của công trình là thông gió tự nhiên, lấy sáng tốt, giảm năng lượng tiêu thụ, tận dụng và tái sử dụng nước mưa cho sinh hoạt.

Kiến trúc sư Chử Ngọc Anh cho biết, một số tiêu chí khác của công trình là thông gió tự nhiên, lấy sáng tốt, giảm năng lượng tiêu thụ, tận dụng và tái sử dụng nước mưa cho sinh hoạt.

Thiết kế mái ngói với độ dốc lớn nên việc thu gom nước mưa để tái sử dụng rất dễ dàng.

Thiết kế mái ngói với độ dốc lớn nên việc thu gom nước mưa để tái sử dụng rất dễ dàng.

Đừng bỏ lỡ

Video đang xem nhiều

Đọc thêm