Biệt thự 'không biên giới' ở phố biển Nha Trang

(PLO)- Biệt thự được thiết kế theo kiểu "không biên giới" với nhiều không gian liên thông và kết nối với khu vườn xanh mát bên ngoài.

Nha Trang house tọa lạc tại một khu vực yên tĩnh, thanh bình của thành phố Nha Trang.

Nhóm thiết kế K.A studio đặt mục tiêu tạo ra một không gian mà gia đình chủ nhân có thể cùng nhau trải qua những giây phút yên bình, tĩnh lặng và thư giãn

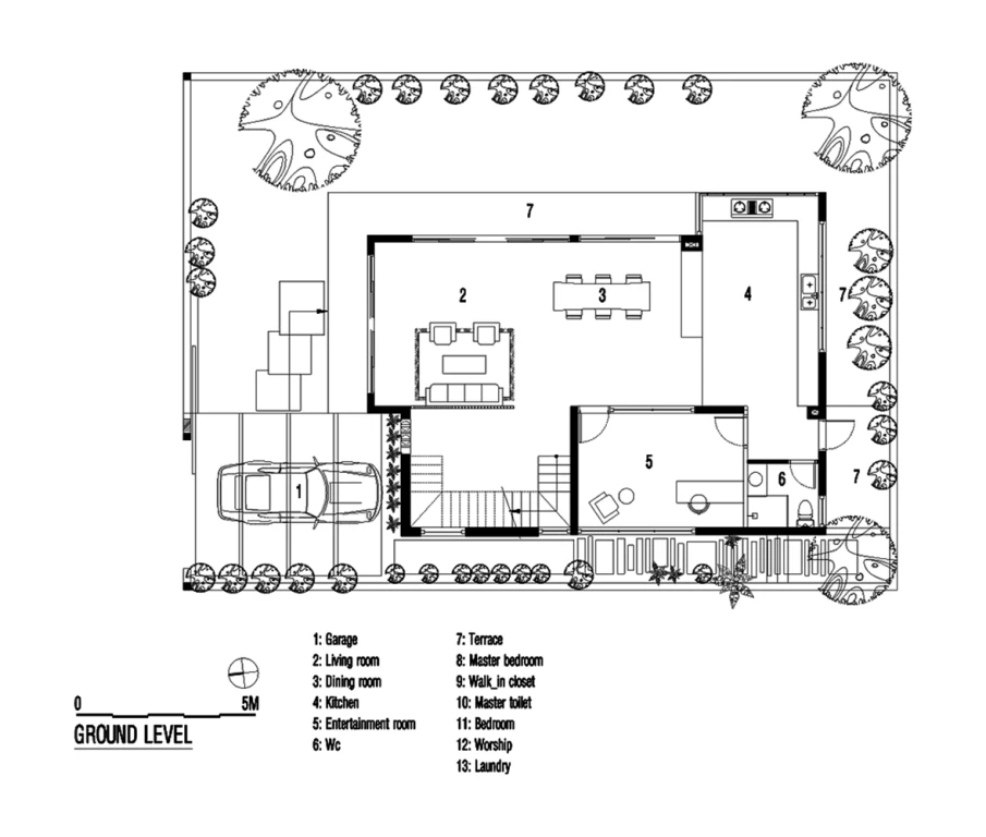
Ngôi nhà gồm một trệt và hai lầu, đảm bảo đủ công năng sử dụng, đồng thời tạo thêm không gian thư giãn xen kẽ khắp nhà.

Khu vườn trong khuôn viên nhà là nơi gia chủ khi đã về hưu sẽ dành nhiều thời gian chăm sóc và tận hưởng. Tại đây được trồng nhiều loài cây mộc mạc, giản dị nhưng phù hợp với nắng, gió biển.

Để tạo ra một cuộc sống "không biên giới", các kiến trúc sư đã cắt bỏ nhiều bức tường bên trong ngôi nhà cũng như mở những bức tường với không gian bên ngoài. 

Thay vào đó là những bộ bàn ghế, thanh ray bằng gỗ hay những tấm kính lớn để kết nối không gian.

Tầng trệt của ngôi nhà chính là điển hình của thiết kế này. Đó là một không gian rộng lớn liên thông phòng khách, bếp, bàn ăn. 

Ngay tại không gian bếp, bàn ăn, hệ thống cửa thông ra sân vườn được thiết kế linh hoạt nhằm tạo sự kết nối tối đa giữa trong nhà và ngoài trời. 

Nội thất sử dụng bên trong đơn giản theo yêu cầu của ngôi nhà. Không quá cầu kỳ, nội thất tầng trệt mang phong cách hiện đại, gọn gàng và được bố trí hợp lý. 

Phòng thư giãn, buồng riêng của gia chủ được thiết kế bằng những khung kính trong suốt.

Lên một tầng khác, qua cầu thang gỗ, không gian tầng mở ra với sự yên tĩnh

Không quá nhiều nắng, gió, tầng một với khung kính và cửa chớp bằng gỗ tạo nơi thư giãn nhẹ nhàng hơn.

Phòng ngủ được bảo vệ với thanh lam chắn nhằm giảm bớt lượng nắng và gió vào nhà.

Một góc thư giãn tại phòng riêng của gia chủ.

Đừng bỏ lỡ

Video đang xem nhiều

Đọc thêm