Cải tạo nhà 15 năm tuổi thành nhà 'lồng' hiện đại

(PLO)-  Ngôi nhà phố 15 năm tuổi nằm trong một con hẻm nhỏ đã được cải tạo để phù hợp với nhu cầu sống hiện đại với chi phí có hạn.
Cage house nằm trong một con hẻm nhỏ, trước khi cải tạo ngôi nhà đã cũ, xuống cấp với cầu thang bê tông cồng kềnh ở trung tâm; một nhà bếp và phòng ngủ tối và thông gió kém ở phía sau.

Cage house nằm trong một con hẻm nhỏ, trước khi cải tạo ngôi nhà đã cũ, xuống cấp với cầu thang bê tông cồng kềnh ở trung tâm; một nhà bếp và phòng ngủ tối và thông gió kém ở phía sau.

Do đó, kiến trúc sư cải tạo ngôi nhà hiện đại đảm bảo sự thoải mái, đủ ánh sáng và thông gió tự nhiên, giảm tác động của tiếng ồn.

Do đó, kiến trúc sư cải tạo ngôi nhà hiện đại đảm bảo sự thoải mái, đủ ánh sáng và thông gió tự nhiên, giảm tác động của tiếng ồn.

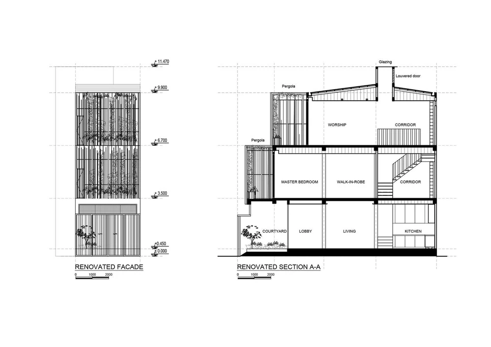
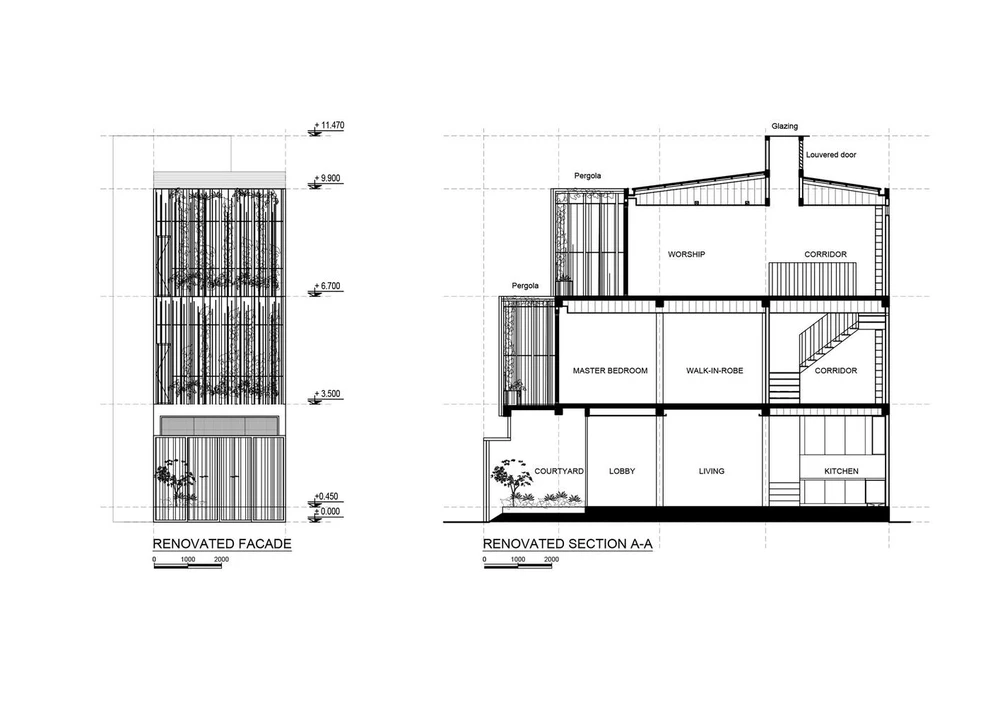
Kiến trúc sư ROOM+ Design & Build đã sắp xếp lại và cải tạo tất cả các không gian bên trong và gắn một cấu trúc mặt tiền giống như cái lồng độc đáo với các khu vườn tích hợp.

Kiến trúc sư ROOM+ Design & Build đã sắp xếp lại và cải tạo tất cả các không gian bên trong và gắn một cấu trúc mặt tiền giống như cái lồng độc đáo với các khu vườn tích hợp.

Nhìn từ bên ngoài, công trình như một chiếc lồng xanh bảo vệ không gian bên trong nhà.

Nhìn từ bên ngoài, công trình như một chiếc lồng xanh bảo vệ không gian bên trong nhà.

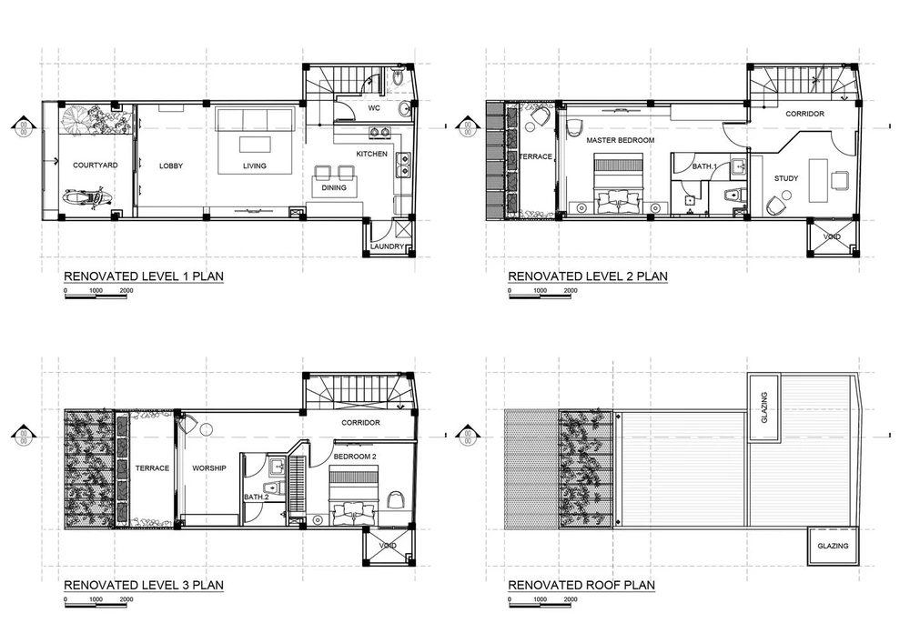
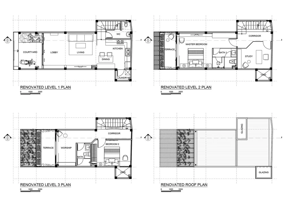
Lối đi vào không gian phòng khách và phòng bếp của ngôi nhà.

Lối đi vào không gian phòng khách và phòng bếp của ngôi nhà.

Hai sân thượng khá lớn với nhiều loại cây lá và hoa được ẩn một phần ngay phía sau mặt tiền kim loại.

Hai sân thượng khá lớn với nhiều loại cây lá và hoa được ẩn một phần ngay phía sau mặt tiền kim loại.

Một khoảng trống nhỏ ở góc phía sau để cung cấp ánh sáng ban ngày cho nhà bếp và khu vực ăn uống ở phía sau.

Một khoảng trống nhỏ ở góc phía sau để cung cấp ánh sáng ban ngày cho nhà bếp và khu vực ăn uống ở phía sau.

Cầu thang bê tông trung tâm được thay thế bằng một cầu thang có trọng lượng nhẹ làm bằng khung sắt tùy chỉnh

Cầu thang bê tông trung tâm được thay thế bằng một cầu thang có trọng lượng nhẹ làm bằng khung sắt tùy chỉnh

Phòng ngủ chính và phòng tắm đã được di dời ở khu vực phía trước của tầng hai và được thiết kế với kính lớn, sàn gỗ nhiều lớp và gạch đen.

Phòng ngủ chính và phòng tắm đã được di dời ở khu vực phía trước của tầng hai và được thiết kế với kính lớn, sàn gỗ nhiều lớp và gạch đen.

Tầng ba có độ lùi 2 m đủ rộng rãi để chứa gọn gàng phòng ngủ thứ hai, phòng tắm chung và khu vực thờ cúng ấm cúng.

Tầng ba có độ lùi 2 m đủ rộng rãi để chứa gọn gàng phòng ngủ thứ hai, phòng tắm chung và khu vực thờ cúng ấm cúng.

Đừng bỏ lỡ

Video đang xem nhiều

Đọc thêm