Ngôi nhà ở TP.HCM độc đáo với mặt tiền khối hoa văn

(PLO)- Bình Thạnh house gây ấn tượng với các khối hoa văn ở mặt tiền giúp chống nắng và thông gió cho công trình.
Công trình được thiết kế bởi kiến trúc sư NISHIZAWAARCHITECTS, Sanuki, VTN Architects.

Công trình được thiết kế bởi kiến trúc sư NISHIZAWAARCHITECTS, Sanuki, VTN Architects.

Tọa lạc tại trung tâm TP.HCM, Bình Thạnh House được thiết kế cho hai gia đình.

Tọa lạc tại trung tâm TP.HCM, Bình Thạnh House được thiết kế cho hai gia đình.

Kiến trúc sư thiết kế mặt tiền nhà là các khối hoa văn.
Kiến trúc sư thiết kế mặt tiền nhà là các khối hoa văn.
Các khối hoa văn được làm bằng bê tông đúc sẵn với chiều rộng 60 cm và chiều cao 40 cm.
Các khối hoa văn được làm bằng bê tông đúc sẵn với chiều rộng 60 cm và chiều cao 40 cm.
Khối hoa văn bê tông này không chỉ chống nắng, thông gió tự nhiên mà còn tăng cường sự riêng tư và an toàn.
Khối hoa văn bê tông này không chỉ chống nắng, thông gió tự nhiên mà còn tăng cường sự riêng tư và an toàn.
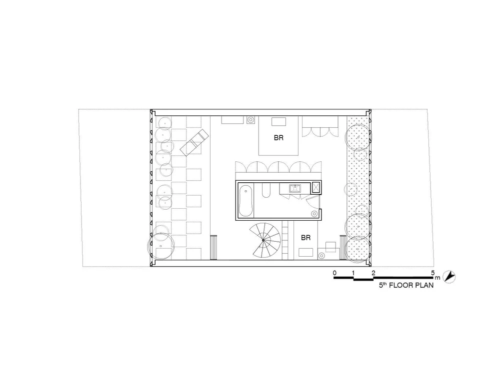
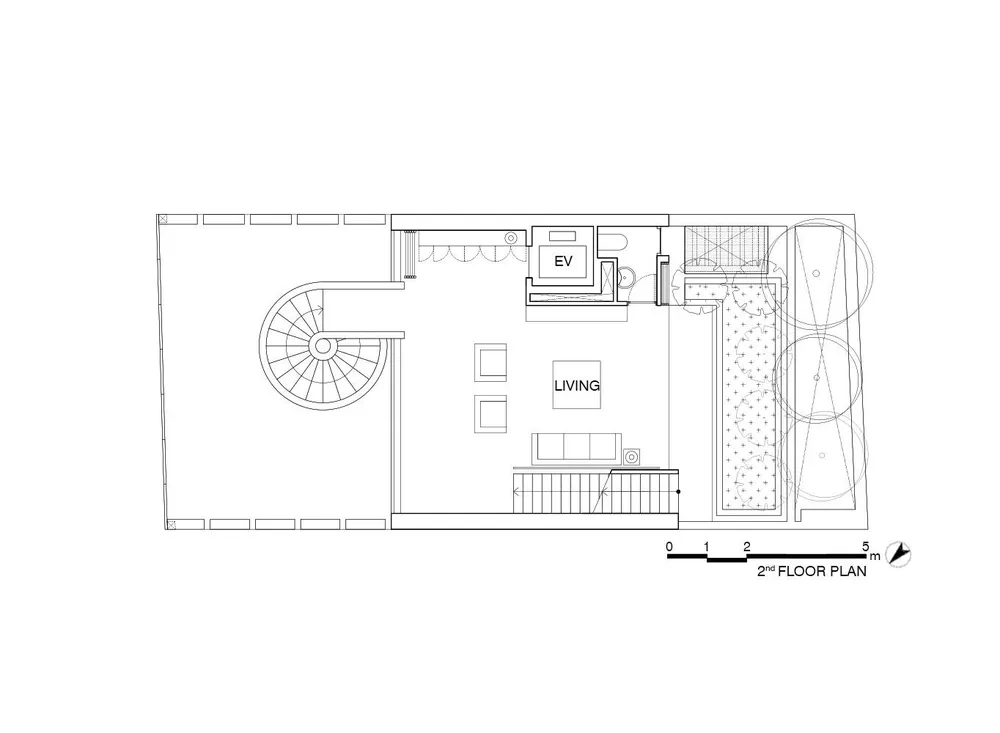
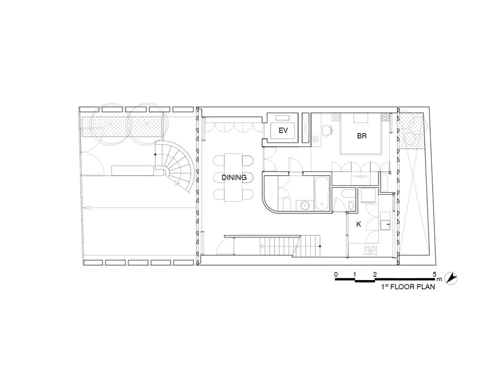
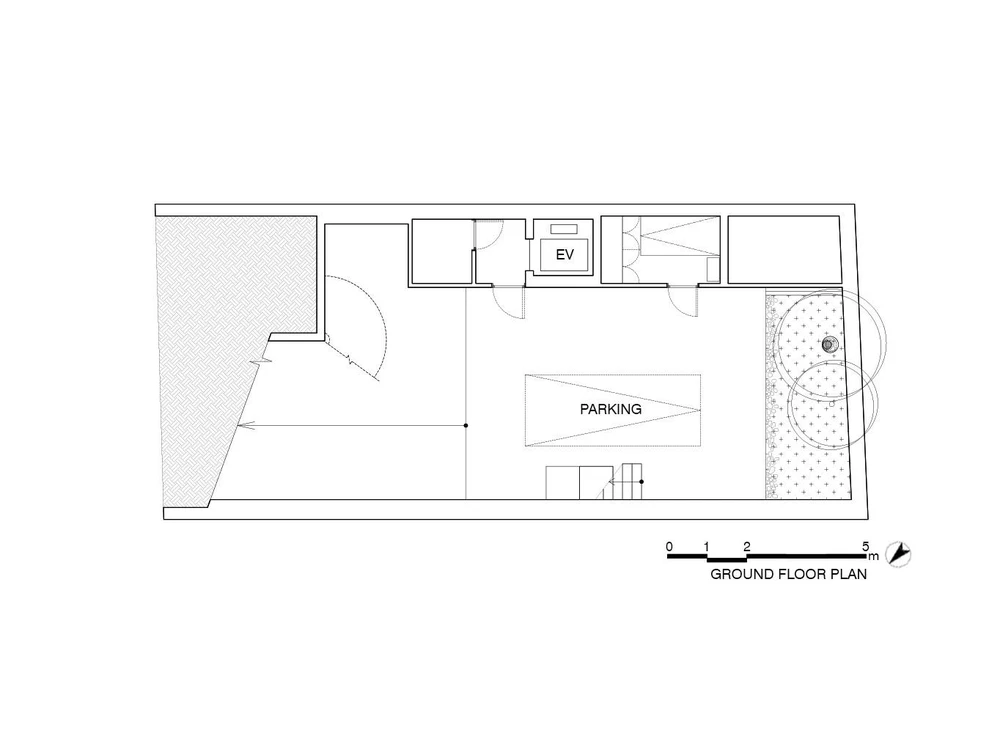
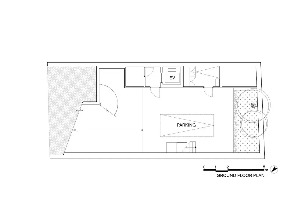
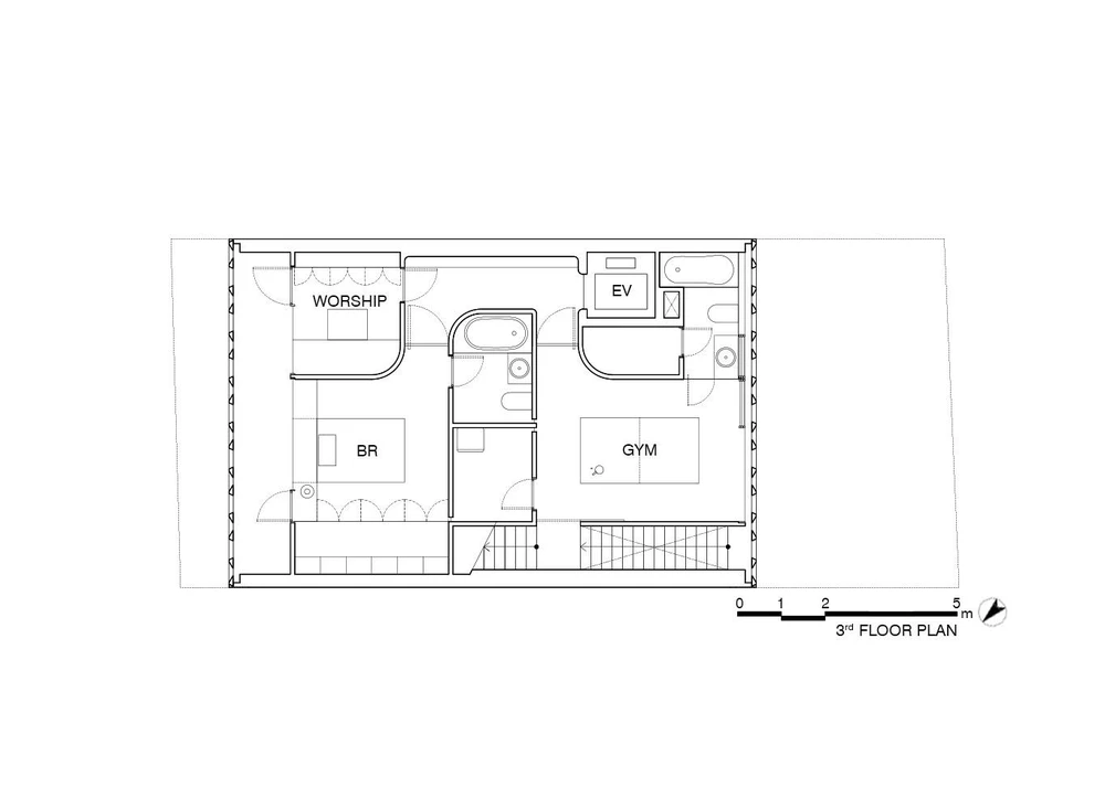
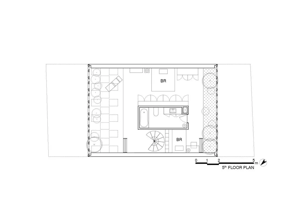
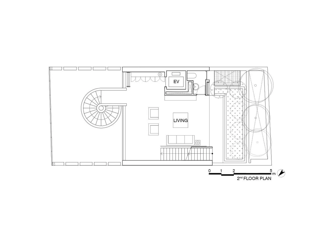
Ngôi nhà bao gồm hai không gian khác nhau được bố trí xen kẽ.
Ngôi nhà bao gồm hai không gian khác nhau được bố trí xen kẽ.
Không gian cho lối sống hiện đại được phân bổ thành ba khối nổi bao bọc bởi các khối hoa văn bê tông.
Không gian cho lối sống hiện đại được phân bổ thành ba khối nổi bao bọc bởi các khối hoa văn bê tông.
Phòng khách với gam màu trầm ấm.
Phòng khách với gam màu trầm ấm.
Các bề mặt trần được thiết kế với nhiều hình dạng cong khác nhau, cung cấp cho mỗi không gian giữa các hiệu ứng ánh sáng khác nhau.
Các bề mặt trần được thiết kế với nhiều hình dạng cong khác nhau, cung cấp cho mỗi không gian giữa các hiệu ứng ánh sáng khác nhau.
Tiếp nối với phòng khách là gian phòng bếp. Phòng bếp bố trí đơn giản, rộng rãi.
Tiếp nối với phòng khách là gian phòng bếp. Phòng bếp bố trí đơn giản, rộng rãi.
Phòng bếp có view hướng ra kênh đào và Thảo Cầm Viên với nhiều cây xanh.
Phòng bếp có view hướng ra kênh đào và Thảo Cầm Viên với nhiều cây xanh.
Không gian giữa ba khối được mở rộng ra bên ngoài và được phân bổ cho phong cách sống tự nhiên, nơi chủ nhà có thể tận hưởng gió, ánh nắng, cây xanh và nước.

Không gian giữa ba khối được mở rộng ra bên ngoài và được phân bổ cho phong cách sống tự nhiên, nơi chủ nhà có thể tận hưởng gió, ánh nắng, cây xanh và nước.

Phòng ngủ và các phòng nhỏ khác được chứa trong các khối nổi nửa kín để tăng cường an ninh và sự riêng tư.
Phòng ngủ và các phòng nhỏ khác được chứa trong các khối nổi nửa kín để tăng cường an ninh và sự riêng tư.
Các không gian mở ở giữa được thiết kế để trở thành không gian sống độc lập cho hai gia đình.

Các không gian mở ở giữa được thiết kế để trở thành không gian sống độc lập cho hai gia đình.

Kiến trúc sư sử dụng các vật liệu gần gũi với tự nhiên như gỗ, trần bê tông... và bố trí cây xanh xung quanh nhà.
Kiến trúc sư sử dụng các vật liệu gần gũi với tự nhiên như gỗ, trần bê tông... và bố trí cây xanh xung quanh nhà.

Đừng bỏ lỡ

Video đang xem nhiều

Đọc thêm