Ngôi nhà ở Ninh Bình mát rượi vì thiết kế lạ

(PLO)- Ninh Bình House nổi bật lên như một khối hộp bê tông nguyên khối, đơn sơ được bao bọc bởi thiên nhiên. 

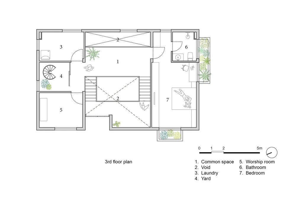
Ninh Bình house có diện tích 110 m², công trình được thiết kế bởi văn phòng HGAA. 

Các khe hở ở cả mặt tiền và tầng thượng được đưa vào theo kiểu ngẫu nhiên, tạo nguồn ánh sáng vào bên trong nhà.

Ngôi nhà bao gồm hai phần, được pha trộn hài hòa với nhau: hộp xây dựng và khu vườn.

Khi bước vào nhà qua khu vườn và ao nước, một không gian rộng lớn sẽ mở ra. Tất cả các không gian chung đều nằm trong giếng trời ba tầng này ở trung tâm của nhà.

Ở tầng một là không gian phòng khách, phòng ăn và bếp. Không gian đọc sách và khu sinh hoạt chung ở tầng hai.

Ngồi trong phòng khách có thể cảm nhận trọn vẹn những khoảnh khắc thay đổi của thiên nhiên và những hoạt động thường ngày của ngôi nhà.

Khu vườn rộng thoáng trước nhà, sau bức tường kín đáo có phần kín đáo. 

Hồ cá, cây cao và cầu thang dẫn lên vườn rau trên nóc gara không chỉ làm cho cảnh quan sân vườn trở nên sống động mà còn giúp lọc ánh nắng và không khí hướng tây vào bên trong nhà.

Vật liệu hoàn thiện nội thất bao gồm trần bê tông chưa hoàn thiện và đồ nội thất bằng gỗ. 

Tất cả được kết nối với nhau bằng cầu thang nổi, đặt ở các hướng khác nhau trong giếng trời.

Ninh Binh house là một công trình đơn giản, sử dụng kết cấu bê tông cốt thép vốn rất phổ biến ở Việt Nam tạo nên một không gian sống mới, khác biệt và gần gũi với thiên nhiên hơn.

Hai khối khác của ngôi nhà bao gồm phòng ngủ và các phòng chức năng khác. Cửa sổ với ban công cây xanh được đặt cẩn thận trong các phòng đó để cung cấp đủ ánh sáng, không khí và tầm nhìn thú vị.

Từ sân ngoài trời ở tầng ba, cầu thang xoắn ốc dẫn lên khu vườn trên sân thượng vừa có thể nhìn ra cảnh quan thành phố, vừa cung cấp rau cho gia đình.

Đừng bỏ lỡ

Video đang xem nhiều

Đọc thêm