Mẫu nhà phố vừa ở vừa kinh doanh ở Đà Lạt

(PLO)- Kiến trúc sư đã tính toán chi tiết làm sao cho không gian nhà phố ở Đà Lạt đảm bảo nhu cầu ở kết hợp kinh doanh.
The Note có diện tích 106 m², toạ lạc tại TP Đà Lạt.

The Note có diện tích 106 m², toạ lạc tại TP Đà Lạt.

Đây là công trình nhà ở kết hợp homestay của kiến trúc sư H.a.

Đây là công trình nhà ở kết hợp homestay của kiến trúc sư H.a.

Ngôi nhà tái hiện và lưu giữ những kỉ niệm tuổi thơ dành tặng cho gia đình và những người yêu mến mảnh đất Đà Lạt.

Ngôi nhà tái hiện và lưu giữ những kỉ niệm tuổi thơ dành tặng cho gia đình và những người yêu mến mảnh đất Đà Lạt.

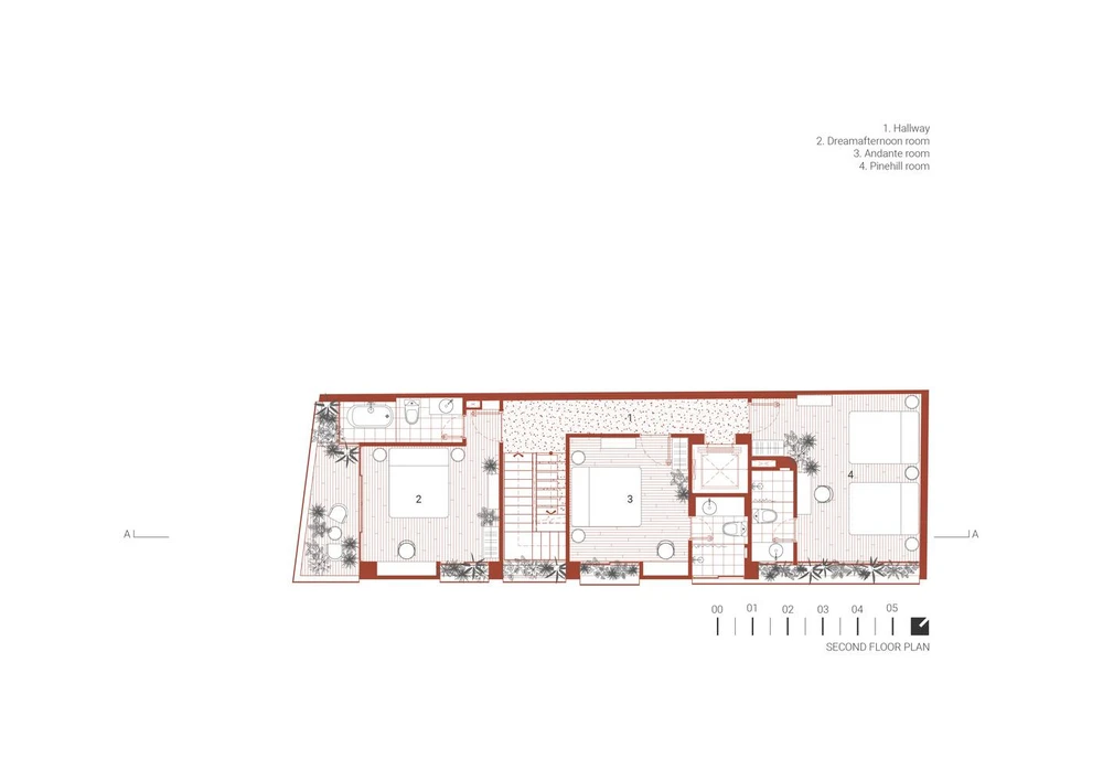
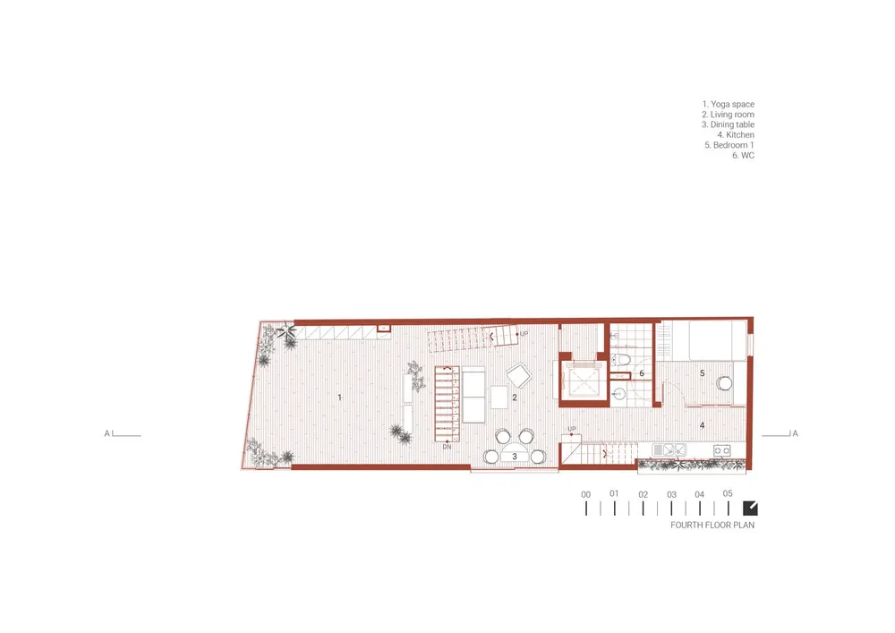
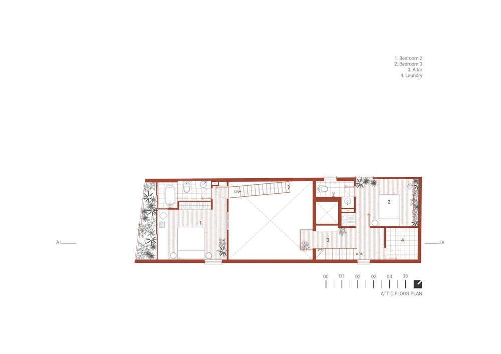
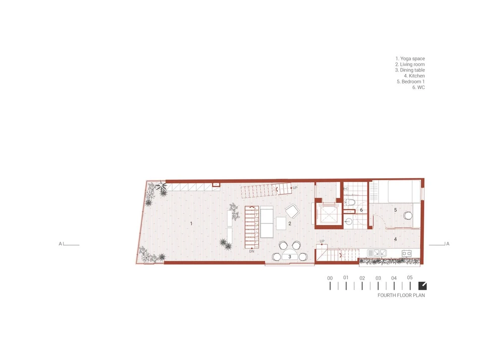
Kiến trúc sư thiết kế các tầng dưới là nơi kinh doanh còn không gian tầng trên là nơi sinh hoạt của gia đình.

Kiến trúc sư thiết kế các tầng dưới là nơi kinh doanh còn không gian tầng trên là nơi sinh hoạt của gia đình.

Cách bố trí không gian hợp lý của kiến trúc sư đảm bảo cho việc kinh doanh và sinh hoạt mà vẫn đảm bảo hai không gian này không bị ảnh hưởng lẫn nhau.

Cách bố trí không gian hợp lý của kiến trúc sư đảm bảo cho việc kinh doanh và sinh hoạt mà vẫn đảm bảo hai không gian này không bị ảnh hưởng lẫn nhau.

Cách thiết kế bằng các nếp gấp cầu thang là sự trải nghiệm mới lạ khi bước vào bên trong công trình.

Cách thiết kế bằng các nếp gấp cầu thang là sự trải nghiệm mới lạ khi bước vào bên trong công trình.

Phòng ngủ với gam màu vàng của sàn gỗ giúp không gian thêm sang trọng và hiện đại, tường trắng kết hợp thêm cửa sổ gam màu xanh mát nhìn ra view khá đẹp.

Phòng ngủ với gam màu vàng của sàn gỗ giúp không gian thêm sang trọng và hiện đại, tường trắng kết hợp thêm cửa sổ gam màu xanh mát nhìn ra view khá đẹp.

Một không gian phòng ngủ khác với chiếc ban công rộng thoáng là nơi thưởng trà, nhìm ngắm mọi không gian bên ngoài đầy thú vị.

Một không gian phòng ngủ khác với chiếc ban công rộng thoáng là nơi thưởng trà, nhìm ngắm mọi không gian bên ngoài đầy thú vị.

Không gian sinh hoạt của gia đình được trang trí đơn giản với nội thất bằng gỗ.

Không gian sinh hoạt của gia đình được trang trí đơn giản với nội thất bằng gỗ.

Thiết kế cửa sổ lớn bằng kính là cách kiến trúc sư lấy sáng.

Thiết kế cửa sổ lớn bằng kính là cách kiến trúc sư lấy sáng.

Khoảng trống rộng rãi, thông thoáng để gia đình vui chơi cùng nhau.

Khoảng trống rộng rãi, thông thoáng để gia đình vui chơi cùng nhau.

Một góc ban công "chill chill".

Một góc ban công "chill chill".

Đừng bỏ lỡ

Video đang xem nhiều

Đọc thêm