![]() |
| Công trình k59 home and atelier đã mọc lên giữa những tòa nhà cao tầng dọc đường Huỳnh Tấn Phát,TP.HCM. |
![]() |
| Công trình được thiết kế bởi nhóm thiết kế k59 atelier có diện tích 220 m². |
![]() |
| Ô nhiễm khói bụi và tiếng ồn cùng với nhu cầu sống và làm việc là những vấn đề chính mà nhóm thiết kế phải quan tâm khi bắt đầu xây dựng công trình. |
![]() |
| Đó là một ngôi nhà gỗ được tạo thành bởi khung của cấu trúc bê tông. |
![]() |
![]() |
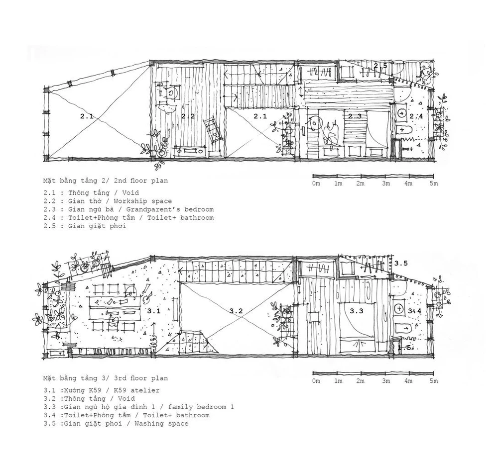
| Nơi sinh hoạt văn hóa của các gia đình sẽ là trung tâm của ngôi nhà. |
![]() |
| Ngôi nhà được chia thành hai phần bởi một giếng trời lớn ở giữa. |
![]() |
| Phần phía trước của ngôi nhà gồm không gian thờ cúng, nơi làm việc và vườn rau. |
![]() |
| Gian bếp nối liền với không gian phòng khách. Gian bếp này được trang trí mang nét truyền thống và sử dụng các vật liệu gần gũi. |
![]() |
| Lối cầu thang là giao thông chính trong ngôi nhà này. Lan can cầu thang được thiết kế chắc chắn. |
![]() |
| Cấu trúc rỗng giúp tòa nhà có thể "tự thở" được, thay vì sử dụng những bức tường dài hay những tấm kính cố định. |
![]() |
| Không gian thờ được bố trí phần sau của ngôi nhà. |
![]() |
Nhóm thiết kế cho biết, khoảng trống và không gian mở là những phương pháp nhóm thiết kế muốn sử dụng để liên kết và phân chia không gian. |
![]() |
| Không gian làm việc hài hòa với thiên nhiên. |
![]() |
| Sự linh hoạt trong việc sử dụng hệ thống cửa sổ xếp, trượt, mở quay giúp mọi người kết nối bên trong tòa nhà và mở rộng tầm nhìn ra cảnh quan xung quanh. |
![]() |
![]() |
| Thiết kế một hồ cá nhỏ là điểm nhấn của ngôi nhà, vừa tạo điểm nhấn về thẩm mỹ vừa giúp điều hòa không khí trong nhà. |
![]() |
| Không gian thờ bố trí trang nghiêm. |
![]() |
![]() |
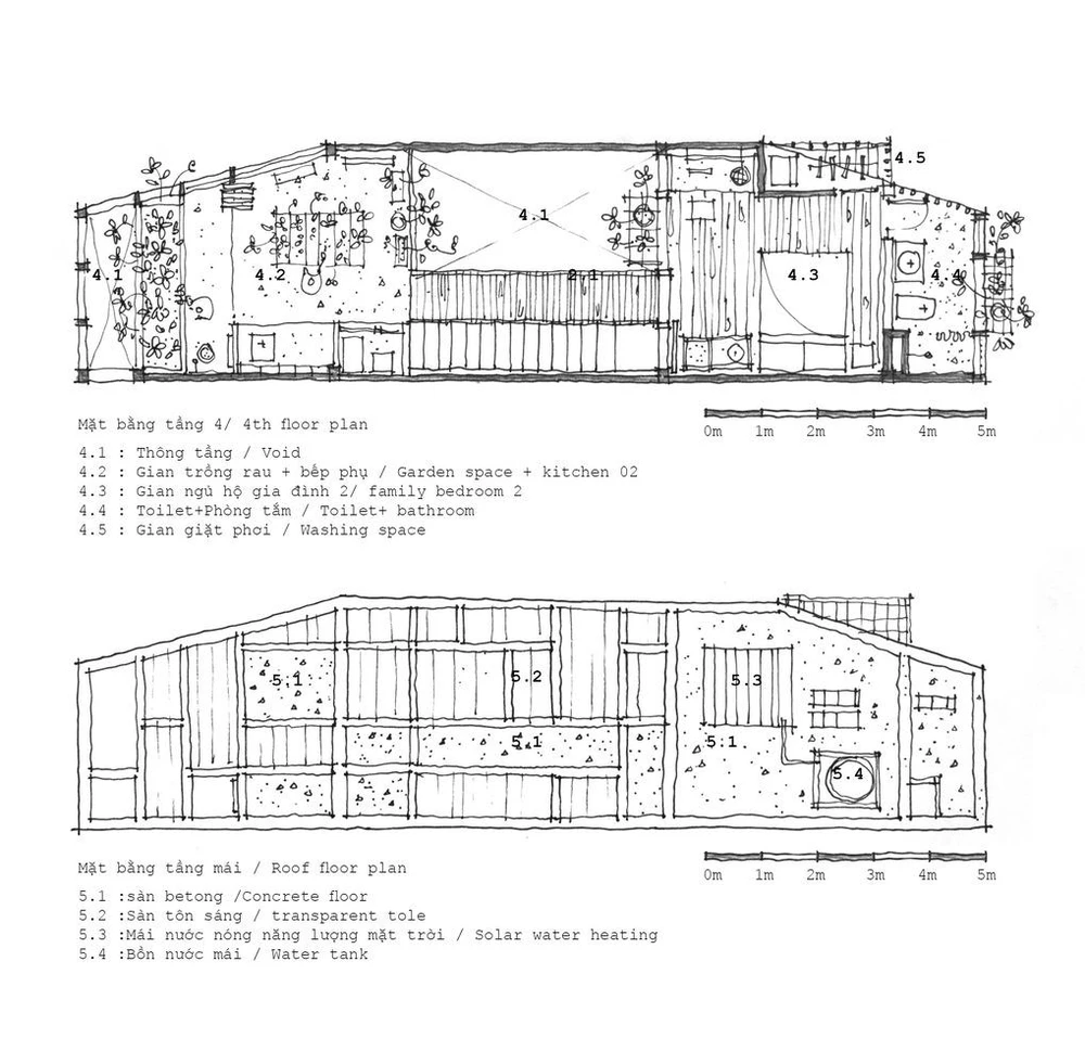
Phần sau là không gian riêng tư gồm phòng ngủ, khu vệ sinh và khu giặt phơi. |
![]() |
| Không gian vệ sinh và giặt giũ được bố trí hướng ra phía ngoài giúp ánh nắng và không khí trong lành tràn vào và lưu lại khu vực phòng ngủ. |
![]() |
| Khu vệ sinh thông thoáng. |
![]() |
| Vườn rau trên tầng mái xanh ngát. |
![]() |
![]() |
![]() |
![]() |


























