
The water house nằm trong một khu tái định cư mới ở Tam Anh, Núi Thành, Quảng Nam.
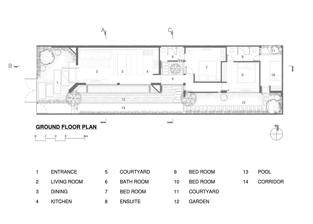
Với diện tích 7 x 25 m, ngôi nhà được thiết kế cho một cặp vợ chồng và hai con trai, với mong muốn ngôi nhà sẽ thích ứng với thời tiết miền Trung khắc nghiệt.
Các chức năng bao gồm ba phòng ngủ với nhà vệ sinh, phòng khách, nhà bếp.
Bắt đầu bởi một khối hình chữ nhật, nhóm thiết kế CIA Design Studio tách thành hai khối được kết nối bên ngoài và bên trong bởi không gian đệm bao gồm một hiên nhà và một giếng trời ở trung tâm của ngôi nhà.
Không gian chính bao gồm khu vực sinh hoạt và ăn uống cũng như một không gian yên tĩnh nằm trong khối lập phương phía sau bao gồm ba phòng ngủ và hai nhà vệ sinh.
Khoảng trống được đặt ở trung tâm của ngôi nhà, đóng vai trò là một điểm để cân bằng thiên nhiên. Tại không gian này, thiên nhiên xuất hiện với các yếu tố như cây cối, ánh sáng tự nhiên.
Nhóm thiết kế khai thác triệt để hồ nước bên hông nhà.
Ngoài ra, các cửa trượt gỗ đã được sử dụng để cho phép phòng khách rộng rãi hơn và thông gió tốt.
Cửa trượt bằng gỗ giúp tạo ra một cái nhìn tuyệt vời để chiêm ngưỡng phong cảnh bên ngoài.
Nhóm thiết kế cho biết họ còn xem xét về khí hậu và quỹ đạo của mặt trời để đề xuất các giải pháp thu thập ánh sáng tự nhiên, che ánh sáng mặt trời ở hướng tây của công trình, lấy gió mát của dòng sông phía sau.
Một giếng trời ở trung tâm của ngôi nhà đem lại nguồn sáng và gió mát cho công trình.
Ngôi nhà được bao phủ bởi tấm polycarbonate và dây leo xuống từ mái nhà.
Về khía cạnh nội thất, ý tưởng từ đồ nội thất cũ tại địa phương sử dụng để tạo ra những cái mới.