Ngôi nhà mái ngói cổ xưa giữa lòng Sài Gòn

(PLO)- Ngôi nhà ba tầng được bao phủ bởi hệ thống mái ngói lớn đem lại cảm giác gần gũi và hoài cổ cho các thành viên trong gia đình.
Dự án Tile Roof House tọa lạc tại ngoại thành TP.HCM, ngôi nhà là nơi gắn bó lâu dài của gia đình ba thế hệ.

Dự án Tile Roof House tọa lạc tại ngoại thành TP.HCM, ngôi nhà là nơi gắn bó lâu dài của gia đình ba thế hệ.

Công trình 250 m² được bao phủ bởi một bề mặt mái lớn.

Công trình 250 m² được bao phủ bởi một bề mặt mái lớn.

Chất liệu mái được làm từ đất nung. Đây là một chất liệu gắn liền với ký ức của nhiều thế hệ gia đình gợi lên hình ảnh thành phố cổ ở Việt Nam.

Chất liệu mái được làm từ đất nung. Đây là một chất liệu gắn liền với ký ức của nhiều thế hệ gia đình gợi lên hình ảnh thành phố cổ ở Việt Nam.

Hệ thống cửa cuốn cải thiện sự chuyển động nhịp nhàng của hệ thống thông gió trong toàn bộ ngôi nhà.

Hệ thống cửa cuốn cải thiện sự chuyển động nhịp nhàng của hệ thống thông gió trong toàn bộ ngôi nhà.

Ngôi nhà được thiết kế bởi nhóm thiết kế k59 atelier.

Ngôi nhà được thiết kế bởi nhóm thiết kế k59 atelier.

Thiết kế các khoảng trống trong nhà là giải pháp này có thể chống nóng trực tiếp cho phòng ngủ (phía đông).

Thiết kế các khoảng trống trong nhà là giải pháp này có thể chống nóng trực tiếp cho phòng ngủ (phía đông).

Sân trước và sân sau tạo sự kết nối tạo bầu không khí trong lành cho cả ngôi nhà.

Sân trước và sân sau tạo sự kết nối tạo bầu không khí trong lành cho cả ngôi nhà.

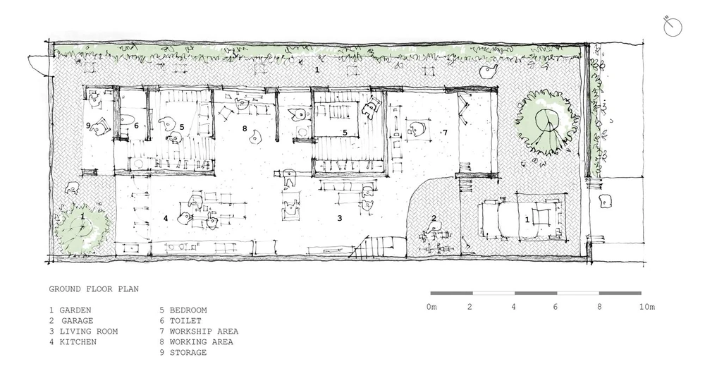
Tầng trệt là không gian của phòng khách và phòng bếp.

Tầng trệt là không gian của phòng khách và phòng bếp.

Không gian bếp nối liền với khoảng sân sau đem lại nguồn sáng, sự kết nối giữa con người với thiên nhiên.

Không gian bếp nối liền với khoảng sân sau đem lại nguồn sáng, sự kết nối giữa con người với thiên nhiên.

Ngôi nhà được thiết kế với hai tông màu chủ đạo là màu trăng và màu của gỗ.

Ngôi nhà được thiết kế với hai tông màu chủ đạo là màu trăng và màu của gỗ.

Nhóm thiết kế cho biết với hình thức mái dốc của ngôi nhà truyền thống làm điểm khởi đầu, ý tưởng là dịch chuyển mái nhà và khoảng thông tầng cho phép ánh sáng và gió tràn vào điểm cao nhất của mái nhà.

Nhóm thiết kế cho biết với hình thức mái dốc của ngôi nhà truyền thống làm điểm khởi đầu, ý tưởng là dịch chuyển mái nhà và khoảng thông tầng cho phép ánh sáng và gió tràn vào điểm cao nhất của mái nhà.

Các khoảng trống trong nhà là nơi thư giãn, vui chơi cho cả gia đình ba thế hệ.

Các khoảng trống trong nhà là nơi thư giãn, vui chơi cho cả gia đình ba thế hệ.

Hệ thống cửa lùa linh hoạt, tiện lợi.

Hệ thống cửa lùa linh hoạt, tiện lợi.

Nhóm thiết kế cho biết thêm, với phong cách sống hiện đại không có nghĩa là chúng ta tách biệt hoàn toàn với thiên nhiên, mà việc sống chan hòa với nắng, gió, mưa, cây xanh là điều cần được ưu tiên.

Nhóm thiết kế cho biết thêm, với phong cách sống hiện đại không có nghĩa là chúng ta tách biệt hoàn toàn với thiên nhiên, mà việc sống chan hòa với nắng, gió, mưa, cây xanh là điều cần được ưu tiên.

Đừng bỏ lỡ

Video đang xem nhiều

Đọc thêm