Ngôi nhà ở Sài Gòn nhiều khối cạnh thu hút ánh nhìn

(PLO)- Công trình 7 tầng nằm ở một vị trí đẹp gần khu trung tâm TP.HCM và được bố trí đa năng theo nhu cầu của gia chủ.
0:00 / 0:00
0:00
  • Nam miền Bắc
  • Nữ miền Bắc
  • Nữ miền Nam
  • Nam miền Nam

The Cities &Gardens được ghép từ hai lô đất giống hệt nhau diện tích 4 x 22 m, mỗi lô với tầm nhìn ra một công viên nhỏ.

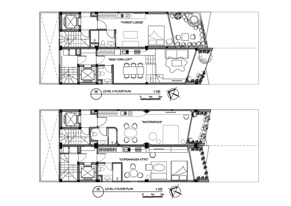
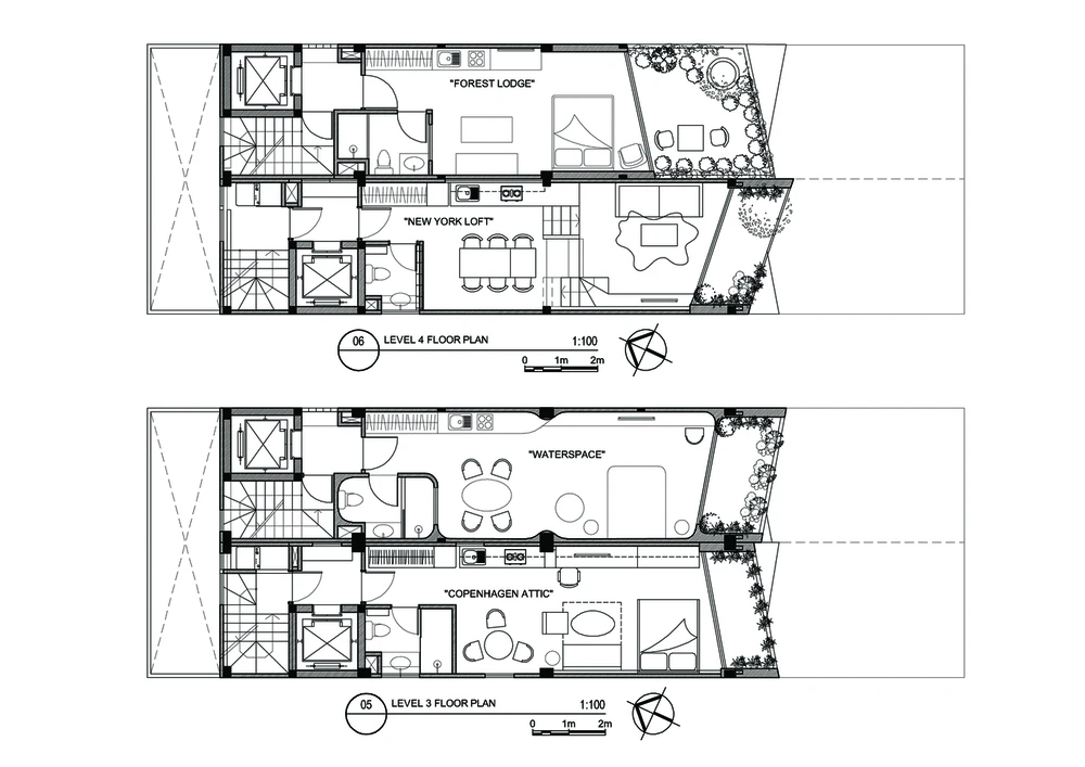
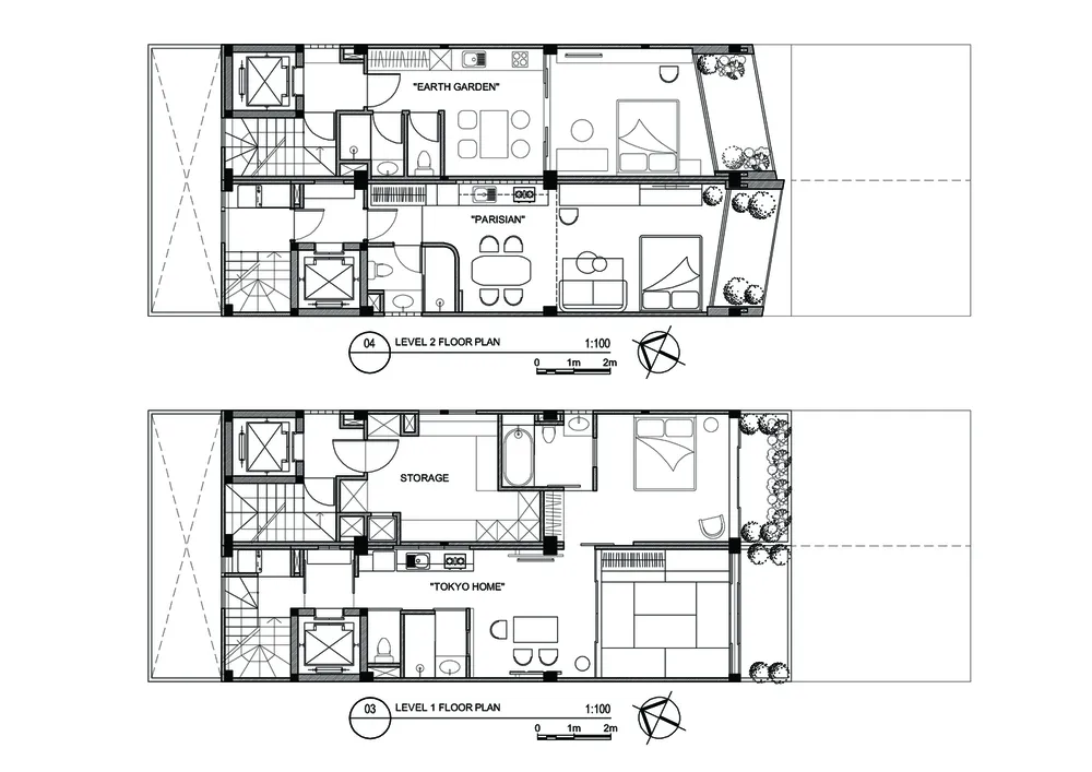
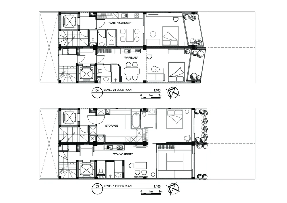
Công trình được thiết kế bởi kiến trúc sư ROOM+ Design & Build. Công trình có một quán cà phê; tám phòng cho thuê theo phong cách boutique và một khu vườn trên sân thượng. 

Mặt tiền bao gồm một loạt các khối góc cạnh, mỗi khối được hoàn thành với một thiết kế đặc biệt để thể hiện sự đa dạng và cá tính.

Không gian nội thất của mỗi phòng cũng có thiết kế độc đáo với việc sử dụng sáng tạo các hình thức, vật liệu, màu sắc và chi tiết. 

Phòng Earth Garden được thiết kế độc đáo theo phong cách bản địa Việt Nam và có nguồn gốc từ các vật liệu địa phương.

Các phòng cho thuê đều thu hút ánh nhìn, không gian bên trong và bên ngoài kết nối với nhau.

Mỗi phòng có cách trang trí nội thất và tông màu khác nhau.

Kiến trúc sư sử dụng vật liệu bê tông trần gần gũi, mang lại sự mộc mạc cho công trình.

Không gian sống nhận đủ lượng ánh sáng vào nhà.

Tokyo Home là một không gian yên tĩnh với kiến trúc Nhật Bản.

Parisian Suite tái hiện sự lãng mạn và sang trọng của kiến trúc Paris một cách hiện đại

Sân thượng Sài Gòn trên tầng cao nhất được hoàn thiện với các vật liệu truyền thống và địa phương như gạch xi măng, màn hình tre, terrazzo trắng.

Sân thượng phong cách Sài Gòn với các loại thảo mộc địa phương, rau và cây ăn quả.  

Đừng bỏ lỡ

Video đang xem nhiều

Đọc thêm