Nhà ở Mường Ca Da được thiết kế cho một gia đình có bốn thành viên, là con cháu người Thái sống lâu đời ở miền tây tỉnh Thanh Hóa.
Kiến trúc sư Hà Đức Cương (Cuong.buildingworkshop) đã dung hòa một ngôi nhà hiện đại nhưng vẫn lưu giữ được chữ viết cổ của người Thái. Từ đó, kiến trúc sư biến nó thành một không gian văn hóa bảo tồn được hệ thống chữ viết cổ của họ.
Công trình kiến trúc này có thể truyền tải được những thông điệp văn hóa mang nhiều ý nghĩa cho thế hệ hiện tại và cả thế hệ tương lai sau này.
Lý giải về tên công trình, kiến trúc sư cho biết, Mường Ca Da là tên gọi cũ của huyện Quan Hóa trong tiếng Thái của người Thái. Ngày xưa, khu vực miền tây Thanh Hóa được chia thành hơn 30 mường lớn nhỏ, trong đó mường Ca Da là một trong những mường thịnh vượng nhất.
![]() |
Nhà sàn lưu giữ được bản sắc văn hoá của người Thái. |
![]() |
Mặt tiền chính của công trình là một ngôi nhà hiện đại. |
![]() |
Một mặt khác là không gian lưu giữ kiến trúc, chữ viết cổ của người Thái. |
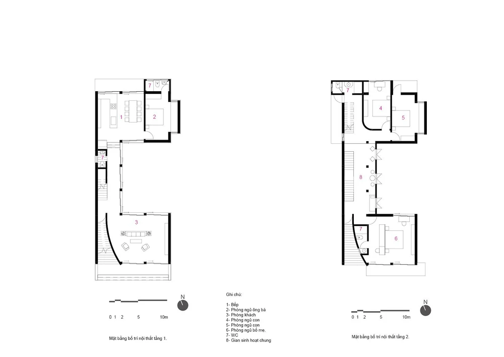
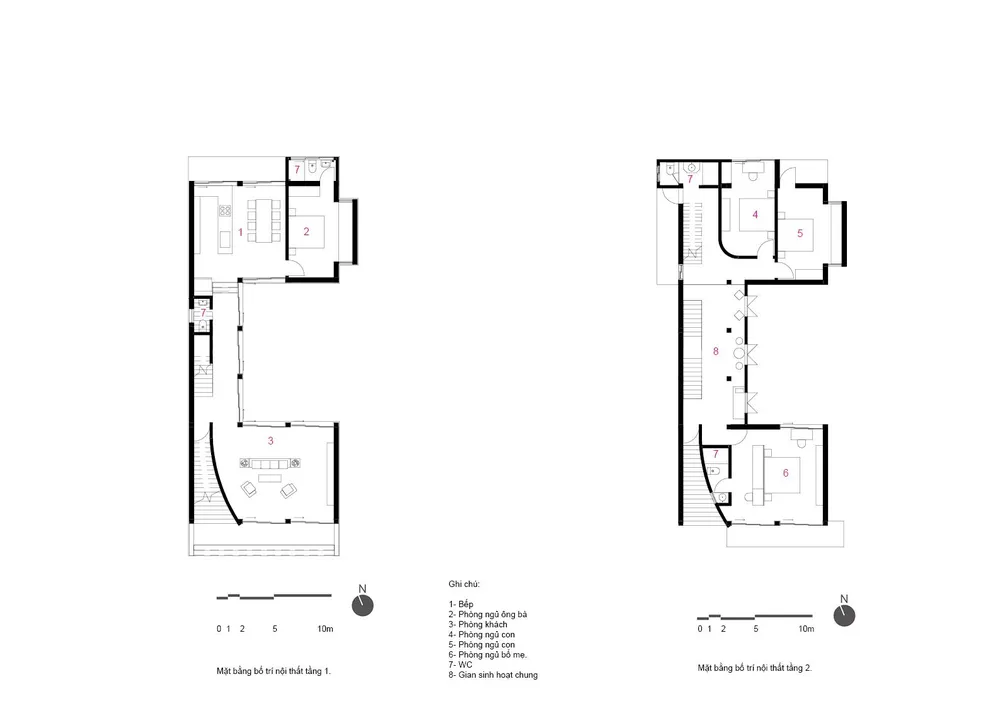
Với những mục tiêu đó, kiến trúc sư tạo ra một bố cục mặt bằng quay quanh một sân trong để kết nối ba thế hệ với nhau, cũng là nơi để diễn ra các hoạt động chung của đại gia đình.
Trong đó, bếp và phòng khách là nơi có sự kết nối trực tiếp với khoảng sân trong. Khoảng sân này là nơi dành riêng cho các thành viên cho gia đình và là nơi trân trọng các giá trị văn hóa của người Thái.
![]() |
![]() |
Hoa Ban, một loài hoa gắn liền với đời sống người Thái cũng được trồng ở trong sân để làm nổi bật. |
![]() |
Chữ viết cổ của người Thái trên các bức tường gỗ là điểm nhấn chính của ngôi nhà. |
![]() |
Một bức tường khắc lại hệ thống chữ viết cổ của người Thái và lặp lại chúng ở các không gian công cộng lẫn riêng tư như bếp và phòng ngủ. |
![]() |
![]() |
![]() |
Không gian bên trong nhà thông thoáng vì lấy được ánh sáng tự nhiên vào nhà. |
Trong số các chức năng của ngôi nhà thì gian bếp có vai trò trung tâm. Các thành viên trong gia đình sẽ tương tác với nhau nhiều hơn nhờ bố cục bếp đảo, người nấu hướng về phía bàn ăn thay vì quay mặt về phía tường.
Điểm nhấn tại không gian này là các kí tự trong chữ viết cổ cũng được nhắc lại trên thành bếp: hai chữ nguyên âm “ie” và “a” đại diện cho tên của người cha và người mẹ được khắc lên bề mặt hoàn thiện của căn bếp.
![]() |
Bếp và đảo bếp là không gian sinh hoạt chính của gia đình. |
![]() |
Đây là nơi cả gia đình quây quần bên nhau cùng thư giãn, trò chuyện và thưởng thức bữa cơm cùng nhau. |
![]() |
Cách bố trí nội thất của kiến trúc sư đơn giản nhưng lại rất hút mắt. |
![]() |
Các thành viên sau khi thức dậy trên tầng hai, sẽ trải niệm một không gian đóng, truyền thống, thân mật. |
![]() |
Các chi tiết trong kiến trúc truyền thống được cài vào nhẹ nhàng: cầu thang gỗ, dãy cửa sổ tầm thấp (thuận theo thói quen sinh hoạt trên nhà sàn của người Thái). |
![]() |
Phòng ngủ kế bên bếp được dành cho ông bà khi họ không tự chăm sóc được bản thân. |
![]() | ||
Ngoài những yếu tố chữ viết ra, căn phòng được bổ sung không gian ngồi nghỉ thư giãn, uống trà để họ có thể dành thời gian cho nhau nhiều hơn trong căn phòng.
|
![]() |
Thông qua công trình này, kiến trúc sư chia sẻ: "Chúng tôi muốn sử dụng kiến trúc để truyền tải những thông điệp văn hóa. Mong muốn chủ nhà trân trọng những giá trị truyền thống của người Thái, đặc biệt là tiếng nói và chữ viết.
Tiếng nói và chữ viết sẽ lưu truyền cho các thế hệ sau này, cho dù có những biến cố của thời cuộc, ngôi nhà sẽ tồn tại lâu hơn cả một đời người."
![]() |
![]() |
![]() |
![]() |






















