Ngắm nhà đẹp thoáng đãng, nhìn đâu cũng thấy cây xanh

(PLO)- Ngồi ở bất cứ vị trí nào trong hay ngoài Hoa’ house gia chủ cũng nhìn thấy quanh mình toàn là màu xanh của cây lá.
ngoi-nha-toan-cay-xanh-2

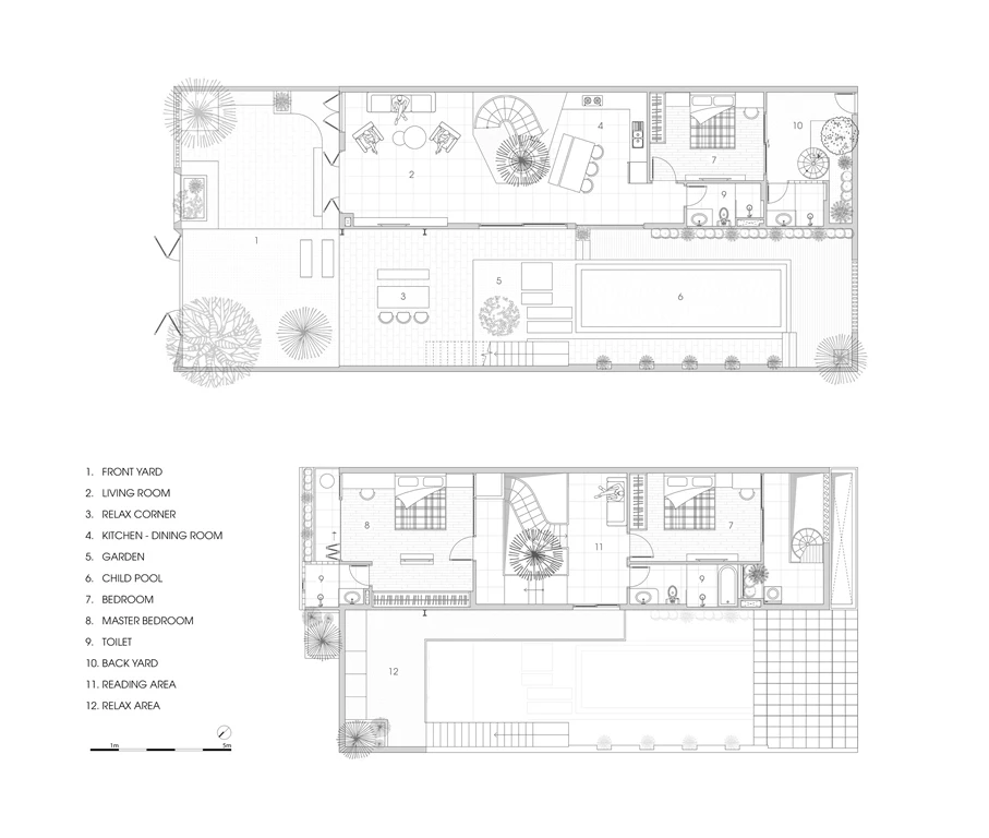
Hoa’house có diện tích 150 m², tọa lạc tại TP Đà Nẵng. Ngôi nhà được thiết kế với triết lý mà các KTS  IZ Architects gọi chung là kiến trúc cảm xúc.

ngoi-nha-toan-cay-xanh-3

Cánh cổng của ngôi nhà nổi bật với tông vàng.

ngoi-nha-toan-cay-xanh-4

Bên cạnh đó, KTS còn thiết kế gạch thô ở phần cổng tạo sự mộc mạc và chắc chắn cho hàng rào nhà.

ngoi-nha-toan-cay-xanh-5

KTS IZ Architects cho biết công trình được sắp xếp để trở thành một không gian mở, kết nối trực tiếp với không gian bên ngoài. 

ngoi-nha-toan-cay-xanh-6

KTS tận dụng toàn bộ không gian đệm trong nhà cùng với khoảng không gian ngoài trời để dành cho cây xanh

ngoi-nha-toan-cay-xanh-7
ngoi-nha-toan-cay-xanh-8

Những khoảng đệm trong và ngoài nhà trở nên sinh động và mát mẻ với chiều lưu thông không khí theo trục bắc nam. 

ngoi-nha-toan-cay-xanh-9

Một góc sân vườn làm nơi thư giãn, trò chuyện của gia đình. Phần trần nhà được làm bằng tre tự nhiên gần gũi với thiên nhiên.

ngoi-nha-toan-cay-xanh-10

Cả khu vực kín và mở đều có gió chuyển động suốt ngày, tận dụng tối đa năng lượng tự nhiên. 

ngoi-nha-toan-cay-xanh-11

Khu vực hồ bơi giúp dòng không khí luân chuyển liên tục, giảm nhiệt của vùng khí hậu miền Trung.

ngoi-nha-toan-cay-xanh-12

Trên hồ bơi là dàn cây leo xõa xuống tạo vẻ đẹp và bóng mát.

ngoi-nha-toan-cay-xanh-13

Phòng khách và bếp kết nối thông qua cầu thang và khoảng giếng trời.

ngoi-nha-toan-cay-xanh-14

Bếp rộng rãi, thông thoáng và đủ sáng nhờ ánh sáng từ giếng trời.

ngoi-nha-toan-cay-xanh-15

KTS bố trí thêm cây xanh lối cầu thang tạo nên lối đi mát mẻ, dễ chịu.

ngoi-nha-toan-cay-xanh-16
ngoi-nha-toan-cay-xanh-17

Một góc thư giãn ở tầng trên của gia đình gắn kết với khoảng giếng trời.

ngoi-nha-toan-cay-xanh-18
ngoi-nha-toan-cay-xanh-19

Phòng ngủ master thoáng, rộng và được bố trí nội thất đơn giản.

ngoi-nha-toan-cay-xanh-20

Khu vực vệ sinh KTS thiết kế hệ kính mờ để lấy sáng và đảm bảo riêng tư cho gia chủ.

ngoi-nha-toan-cay-xanh-21
ngoi-nha-toan-cay-xanh-22
ngoi-nha-toan-cay-xanh-23

Đừng bỏ lỡ

Video đang xem nhiều

Đọc thêm