Ngôi nhà được đặt tên trùng với tên đường Tam Châu. Đây là tổ ấm của gia đình ba thế hệ.
Nhà Tam Châu nằm cuối con dốc mà dân ở đây hay gọi là “dốc Đà Lạt”. Sở dĩ gọi “dốc Đà Lạt” là bởi nơi đây có triền dốc và những ngôi nhà thường xây bó nền bằng đá hộc.
Kiến trúc sư G+architects thiết kế khoảng sân rộng với nhiều cây xanh trước nhà vừa là sân chơi vừa có tác dụng giảm tác động của khói bụi.
Tầng trệt được thiết kế mở, chủ yếu là khoảng trống rộng rãi để các con vui chơi.
Cầu thang được thiết kế an toàn và bắt mắt.
Tầng trệt và các tầng trên liên thông với nhau.

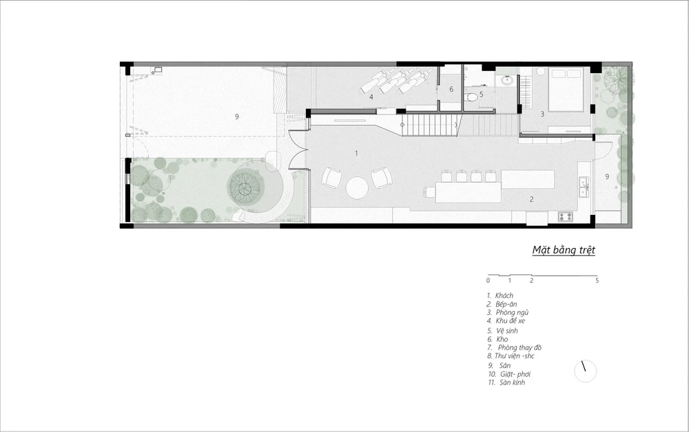
Nhà Tam Châu có diện tích xây dựng 110 m² trên khuôn viên đất 175 m².
Kiến trúc sư G+architects thiết kế không gian sống làm sao gần gũi giữa các thành viên. Đó là không gian mở đan cài nhưng vẫn có được sự tôn trọng riêng tư khi cần thiết.
Khoảng hiên rộng là nơi thư giãn của gia đình.
Phòng ngủ được thiết kế đơn giản, đóng mở linh hoạt khi gia chủ muốn không gian riêng tư.
Kiến trúc sư thiết kế giường tàng tại phòng ngủ của các bé.
Kiến trúc sư cho biết, thông qua công trình kiến trúc sư muốn nhấn mạnh đến mối quan hệ của người ở với không gian thông qua sự thân thuộc của vật liệu, của hàng hiên đón nắng gió, của góc sân - khoảng trời, của vùng ánh sáng dịu nhẹ.