Ngôi nhà bằng gạch đỏ giản dị nhưng nổi bật ở Long An

(PLO)- Long An house mang lại cảm giác thô mộc, bình yên bởi thiết kế cấu trúc ba gian, mái dốc, gạch đỏ.
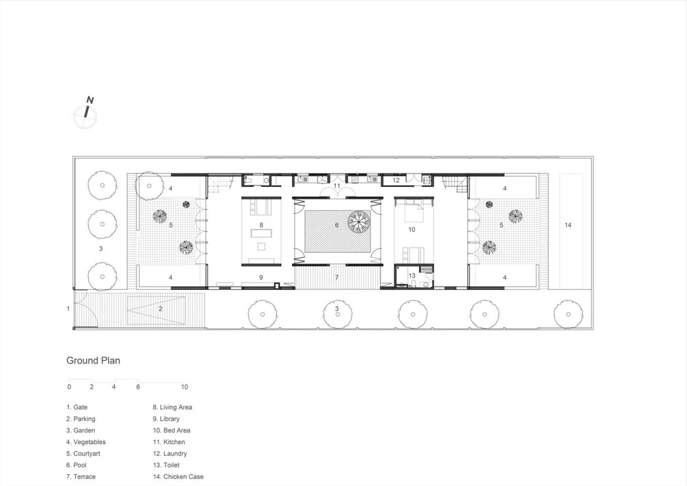
Ngôi nhà bằng gạch đỏ giản dị nhưng nổi bật ở Long An ảnh 1

Long An house có diện tích 300 m² cuốn hút bởi phần mái dài và dốc và mái ngói đỏ truyền thống.

Bức tường vát bao bọc lấy sân trước, sân sau và toàn bộ không gian chính của công trình.

Bức tường vát bao bọc lấy sân trước, sân sau và toàn bộ không gian chính của công trình.

Công trình được thiết kế bởi nhóm thiết kế Tropical Space.

Công trình được thiết kế bởi nhóm thiết kế Tropical Space.

Ngôi nhà với kết cấu truyền thống ba gian riêng biệt, mái dốc nhưng sử dụng ngôn ngữ kiến trúc hiện đại, khỏe khoắn.

Ngôi nhà với kết cấu truyền thống ba gian riêng biệt, mái dốc nhưng sử dụng ngôn ngữ kiến ​​trúc hiện đại, khỏe khoắn.

Nhóm thiết kế chia mái thành hai phần và có sân trong; sau đó phân bổ hai hành lang để kết nối mái nhà.

Nhóm thiết kế chia mái thành hai phần và có sân trong; sau đó phân bổ hai hành lang để kết nối mái nhà.

Cách này đã tạo ra một sân trong và những bức tường lớn.

Cách này đã tạo ra một sân trong và những bức tường lớn.

Ngôi nhà truyền thống được kéo dài từ trước ra sau tạo ra các không gian chức năng liên hoàn.

Ngôi nhà truyền thống được kéo dài từ trước ra sau tạo ra các không gian chức năng liên hoàn.

Không gian đệm tạo sự chuyển tiếp ánh sáng từ sân vào phòng khách, phòng ăn và phòng ngủ.

Không gian đệm tạo sự chuyển tiếp ánh sáng từ sân vào phòng khách, phòng ăn và phòng ngủ.

Một hồ nước chuyển tiếp giữa các không gian, hồ nước này sẽ giảm lượng nhiệt ở trong nhà khi trời nóng.

Một hồ nước chuyển tiếp giữa các không gian, hồ nước này sẽ giảm lượng nhiệt ở trong nhà khi trời nóng.

Nhóm thiết kế đã tạo nên một không gian liên hoàn giữa các chức năng trong và ngoài nhà, để các con có thể thoải mái vui chơi, vận động mà không bị gò bó bởi những bức tường ngăn cách.

Nhóm thiết kế đã tạo nên một không gian liên hoàn giữa các chức năng trong và ngoài nhà, để các con có thể thoải mái vui chơi, vận động mà không bị gò bó bởi những bức tường ngăn cách.

Khu bếp nấu và các không gian chức năng khác được bố trí ở phía Bắc và đi dọc ngôi nhà. Cách bố trí này thuận lợi cho việc nấu nướng theo kiểu truyền thống khi có nhiều thành viên trong gia đình ra vào thăm.

Khu bếp nấu và các không gian chức năng khác được bố trí ở phía Bắc và đi dọc ngôi nhà. Cách bố trí này thuận lợi cho việc nấu nướng theo kiểu truyền thống khi có nhiều thành viên trong gia đình ra vào thăm.

Tầng lửng bố trí hai phòng ngủ, khu thư giãn, đọc sách và hành lang dài nối mọi không gian trong nhà qua hai đầu cầu thang.

Tầng lửng bố trí hai phòng ngủ, khu thư giãn, đọc sách và hành lang dài nối mọi không gian trong nhà qua hai đầu cầu thang.

Hành lang nối dài kết nối không gian sống lại với nhau.

Hành lang nối dài kết nối không gian sống lại với nhau.

Khoảng trống giữa nhà là cách lấy sáng và gió trời vào nhà.

Khoảng trống giữa nhà là cách lấy sáng và gió trời vào nhà.

Công trình nổi bật giữa vùng quê Long An.

Công trình nổi bật giữa vùng quê Long An.

Đừng bỏ lỡ

Video đang xem nhiều

Đọc thêm