Ngôi nhà có 3 mặt thoáng ở tỉnh Vĩnh Phúc
(PLO)- Với lợi thế ba mặt thoáng, ngôi nhà ở tỉnh Vĩnh Phúc có nhiều khoảng thông gió, đón sáng tự nhiên với tầm nhìn rộng.
 |
| TB House được xây dựng tại tỉnh Vĩnh Phúc, là món quà của đôi vợ chồng trẻ dành tặng cho con cái của họ. |
 |
| Khu đất có mặt trước và sau lần lượt là hướng Đông và Tây, mặt thoáng thứ ba chạy dài bên hông là hướng Nam. |
 |
| Kiến trúc sư HA&A Design khéo léo ốp đá ong lớn vào bức tường chính của ngôi nhà, đóng vai trò như một vách ngăn giữa ngôi nhà và công trình bên cạnh. |
 |
| Ngôi nhà có nhiều ánh sáng tự nhiên và tràn ngập cây xanh. |
 |
| Kiến trúc sư đã giải quyết được bài toán không gian mở, hướng nhìn tốt từ bên trong nhưng vẫn đảm bảo tính riêng tư với bên ngoài. |
 |
| Với màu xám đặc trưng của vật liệu đá kết hợp với các mảng xanh, mặt nước được kiến trúc sư bố trí hài hòa. |
 |
| Phòng khách được bố trí cao, diện tích cửa kính lớn. |
 |
| Các mặt trần và hành lang sử dụng vật liệu gỗ tự nhiên. |
 |
| Cây xanh là yếu tố không thể thiếu của công trình nhiều mặt thoáng này. |
 |
| Trục giao thông được bố trí ở vị trí trung tâm và gọn nhất có thể để dành cho khu vực gần hướng gió chính. |
 |
| Phòng làm việc kết nối chặt chẽ với cây cối bên ngoài thông qua cửa kính trong suốt. |
 |
| Nội thất của ngôi nhà sử dụng tông màu trầm. |
 |
| Mặt bằng tầng một. |
 |
| Mặt bằng tầng hai. |
 |
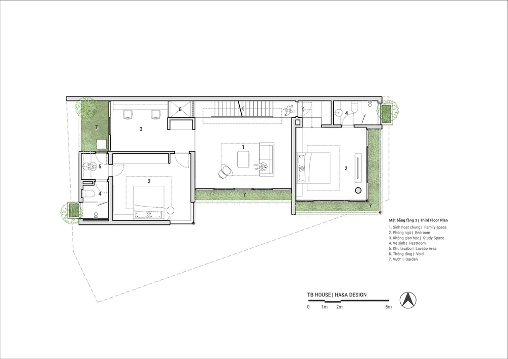
| Mặt bằng tầng ba. |
 |
| Mặt bằng mái. |
 |
| Mặt bằng tum mái. |