Ngôi nhà lạ, muốn đến các phòng phải qua ‘cây cầu xanh’

(PLO)- Ngôi nhà có bề ngang 4,8 m và dài 50 m gây ấn tượng bởi "cây cầu xanh" kết nối không gian bên trong lại với nhau.

Dự án ngôi nhà có cây cầu xanh được xây dựng ở thị xã Trảng Bom, tỉnh Đồng Nai, đây là tổ ấm của gia đình gồm sáu thành viên.

Kiến trúc sư Story Architecture cho biết, đây là khu vực các lô đất được phân chia nhỏ và dài. Dự án ngôi nhà có cầu xanh cũng vậy, với bề ngang chỉ 4,8 m và dài 50 m.

Lô đất hẹp và dài là một bài toán khó để phân chia không gian của kiến trúc sư.  

Ngôi nhà có cây cầu xanh có diện tích bề ngang chỉ 4,8 m nhưng dài đến 50 m.

Công trình xây dựng trên lô đất hẹp, dài là bài toán khó với nhiều kiến trúc sư.

Cách thiết kế của kiến trúc sư đã mang lại tổ ấm hoàn hảo cho gia đình sáu thành viên.

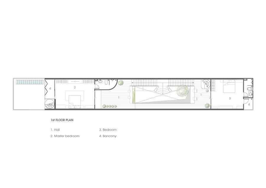
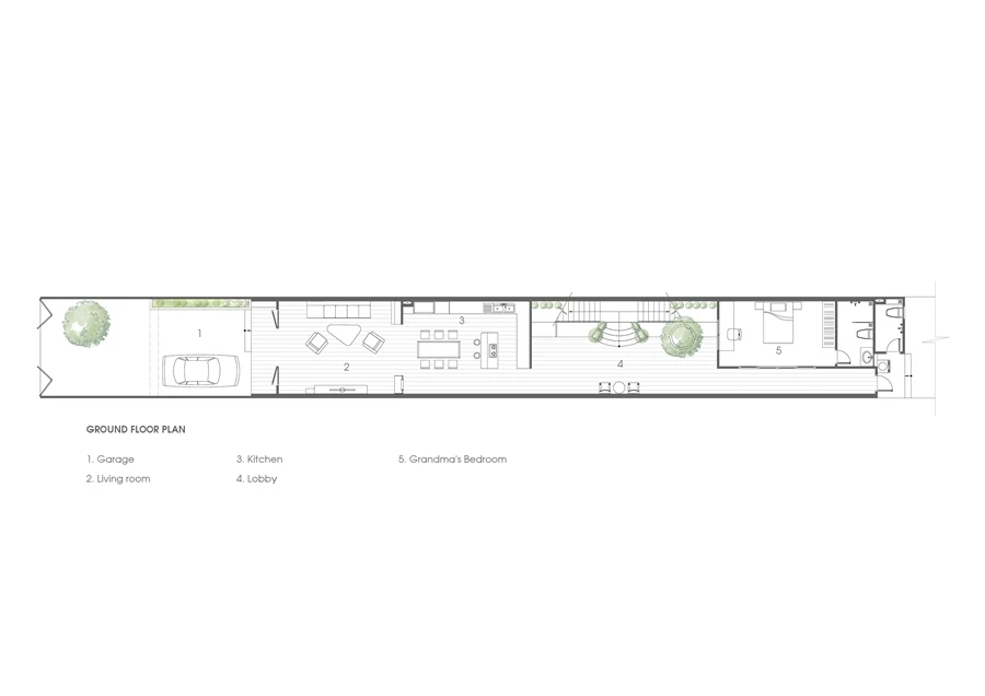
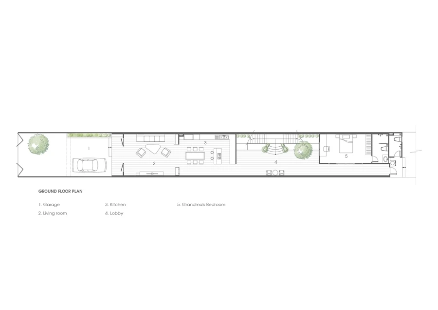
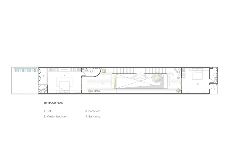
Tầng trệt là không gian của phòng khách và phòng bếp, bàn ăn. Kết nối giữa phòng khách, bếp và phòng ngủ của người bà lớn tuổi là khoảng cầu thang, thông tầng.

Không gian làm bếp của mẹ, khu ngồi chơi của bà thiết kế mở hòa cùng không gian sân trong, kết nối với phòng ngủ các con.

Để đáp ứng đủ số lượng phòng ngủ nhưng vẫn đảm bảo ánh sáng, sự thông thoáng cho các phòng thì kiến trúc sư Story Architecture đưa ra giải pháp tách ngôi nhà thành hai khối và tạo ra một sân trong giữa nhà.

Vì để các thành viên trong gia đình gắn kết và không có cảm giác xa cách khi phải ở hai khối nhà khác nhau thì phần sân trong kiến trúc sư làm một cây cầu màu xanh nối liền hai khối nhà.

Kiến trúc sư tách ngôi nhà thành hai khối, thiết kế khoảng sân trong nhà.

Khoảng sân trong này bao gồm khu vui chơi của các con, cầu thang, cây xanh...

Thiết kế thông tầng kết hợp cây xanh giúp điều hòa không khí của lô đất phân lô hẹp, dài.

Cây cầu xanh là điểm nhấn của ngôi nhà và cũng là thiết kế mà kiến trúc sư tâm đắc nhất.

Sự xuất hiện cây cầu màu xanh tạo một điểm nhấn giữa nhà, làm cho ngôi nhà trở nên đặc biệt.

Hình ảnh chiếc cầu xanh cũng giúp giải tỏa nhiều áp lực khi chúng ta ở nhà và nhiều khoảng không gian đệm hai bên cây cầu trở thành nơi vui chơi học tập của các bạn nhỏ.

Cầu thang từ tầng trệt lên được chia thành hai vế cho hai hướng di chuyển tạo ra sự riêng tư và sinh động cho sinh hoạt của thành viên gia đình.

Cây cầu xanh giúp kết nối thành viên, kết nối không gian sống lại với nhau.

Mái được làm một hệ lam bê tông giảm nắng và kính giúp cho cảm giác như một khối nhà và khối không gian liền mạch.

Khoảng không cây xanh từ tầng trệt kết nối với các tầng trên cũng là một cây cầu xanh vô hình

Cây cầu xanh làm giảm bớt khoảng cách giữa hai khối nhà.

Không gian phòng ngủ đón đủ lượng nắng và gió.

Để đến phòng của các thành viên phải thông qua cây cầu xanh.

Đừng bỏ lỡ

Video đang xem nhiều

Đọc thêm