Ngôi nhà lấy hệ cột làm 'trái tim'

(PLO)- Tổ ấm được xây dựng cho gia đình thích sưu tầm, lấy hệ cột làm trung tâm để kết nối các không gian trong nhà.

3.2 Home có diện tích 6 x 19 nằm trong một con hẻm trên đường 3/2, TP.HCM, là nơi sống và sinh hoạt của một gia đình bốn người. Công trình là dự án cộng tác giữa 6Atelier và Nhabe scholae.

Chủ nhà yêu cầu cải tạo rải rác xuyên suốt giữa trong và ngoài, đồng thời cải tạo giữa các không gian bên trong nhà theo trục dọc.

Khi khảo sát hiện trạng và lên phương án, nhóm thiết kế lấy không gian hiện hữu cũng là nguồn cảm hứng cho nhóm thiết kế quy hoạch không gian, đan cài giữa mới và cũ, tạo nên trải nghiệm sống thú vị.

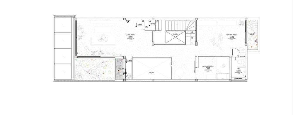
Theo nhóm thiết kế, ngôi nhà có diện tích rộng hơn nhà phố thông thường nên cần có hệ cột giữa nhà giúp ổn định kết cấu.

nha-pho-nhieu-cot-2

Công trình có bề ngang rộng hơn nhà phố thông thường nhưng bị ngăn chia nhiều khiến các không gian thiếu sự kết nối cũng như thông thoáng và ánh sáng tự nhiên.

nha-pho-nhieu-cot-3
nha-pho-nhieu-cot-4

Nhóm thiết kế tháo dỡ các phần ngăn chia hiện trạng giữa các không gian (vách ngăn, cầu thang, mặt dựng…) để hình thành một không gian mở xuyên suốt, liền mạch. 

Để đáp ứng tính khả thi của kinh phí, nhóm thiết kế đã đề xuất hướng tiếp cận cải tạo tập trung cho khu vực tầng trệt và lầu một và chỉ tác động về hoàn thiện như sơn mới cho các không gian ở các lầu trên.

Với trọng tâm là khu vườn trước nhà, dãy không gian chức năng trong nhà được dàn trải xoay quanh. Các bước cột hiện hữu vừa đóng vai trò dẫn tầm mắt ra khu vườn, vừa là một kết nối ẩn dụ đến môi trường tự nhiên.

nha-pho-nhieu-cot-1

Đây là ngôi nhà dành cho một gia đình thích sưu tầm, trưng bày. Ngôi nhà có không gian thoáng đãng tô điểm cho cuộc sống hàng ngày.

nha-pho-nhieu-cot-5
nha-pho-nhieu-cot-6

Các không gian sinh hoạt chung tập trung tại tầng trệt và lầu một và xoay quanh nhiều hệ cột.

nha-pho-nhieu-cot-7

Tầng trệt và lầu một có trọng tâm là khu vườn, các không gian chức năng trong nhà dàn trải xoay quanh bao gồm phòng khách, không gian bếp-ăn, không gian sinh hoạt chung... 

nha-pho-nhieu-cot-8

Các hệ cột màu xanh lá được ví như "trái tim" của ngôi nhà. Hệ cột này giúp kết nối các không gian lại với nhau.

nha-pho-nhieu-cot-9

Đan xen là các khoảng thông tầng giúp kết nối giữa các không gian sinh hoạt chung theo trục dọc căn nhà.

nha-pho-nhieu-cot-10

 Từ đó, giúp tăng sự tương tác giữa các thành viên trong quá trình sinh hoạt hằng ngày.

nha-pho-nhieu-cot-11

Kết nối với phòng bếp và khu vực bàn ăn là khoảng sân vườn nhỏ phía sau.

nha-pho-nhieu-cot-12
nha-pho-nhieu-cot-13

Các phần tường mặt dựng thay bằng hệ khung kính và lan can kim loại làm mờ ranh giới trong ngoài giúp kết nối người dùng với các yếu tố tự nhiên như sân vườn, ánh sáng, thông thoáng tự nhiên...

nha-pho-nhieu-cot-14

Các vật liệu hoàn thiện, các chi tiết, cấu kiện kim loại cho lan can, cửa cổng... tạo nên một tổng thể lạnh, đơn sắc giúp làm nổi bật thêm các món nội thất cũng như nhiều đồ vật mà chủ nhà sẽ sưu tầm.

nha-pho-nhieu-cot-15

Phòng khách được bố trí ở tầng một với một không gian thông thoáng và tràn ngập ánh sáng.

nha-pho-nhieu-cot-16

Yếu tố sân vườn, cây cảnh cũng là điểm nổi bật của căn nhà phố này.

nha-pho-nhieu-cot-17

Những đồ vật của gia chủ đã sưu tầm được trưng bày khắp không gian nhà.

nha-pho-nhieu-cot-18
nha-pho-nhieu-cot-19
nha-pho-nhieu-cot-20

Đừng bỏ lỡ

Video đang xem nhiều

Đọc thêm