Ngôi nhà thiết kế như hình ruộng bậc thang ở Đà Nẵng

(PLO)- Mặt tiền nhà là các hình khối xếp chồng lên nhau như hình ruộng bậc thang, qua đó tạo nên không gian sống kết nối.
Son’s House xây dựng trên khu đất rộng 92,5 m², nằm ở phường Hòa Minh, quận Hải Châu, TP Đà Nẵng.

Son’s House xây dựng trên khu đất rộng 92,5 m², nằm ở phường Hòa Minh, quận Hải Châu, TP Đà Nẵng.

Các hình khối xếp chồng lên nhau ở mặt tiền tạo các ban công lớn. Các ban công lùi dần vào theo chiều cao giúp tạo ra các không gian ban công ấy có thể kết nối với nhau, người ở dưới và ở trên dễ dàng nhìn thấy và trò chuyện với nhau.
Các hình khối xếp chồng lên nhau ở mặt tiền tạo các ban công lớn. Các ban công lùi dần vào theo chiều cao giúp tạo ra các không gian ban công ấy có thể kết nối với nhau, người ở dưới và ở trên dễ dàng nhìn thấy và trò chuyện với nhau.
Ngôi nhà xoay về hướng Đông Bắc nên ít chịu tác động của nắng nóng buổi chiều. Dù với diện tích đất nhỏ hẹp nhưng kiến trúc sư của NỐI studio đã giải quyết nhu cầu công năng đủ cho ba thế hệ sinh sống trong tương lai.

Ngôi nhà xoay về hướng Đông Bắc nên ít chịu tác động của nắng nóng buổi chiều. Dù với diện tích đất nhỏ hẹp nhưng kiến trúc sư của NỐI studio đã giải quyết nhu cầu công năng đủ cho ba thế hệ sinh sống trong tương lai.

Với chi phí xây dựng khoảng 1,7 tỉ đồng, kiến trúc sư đã xây dựng nên một không gian sống thú vị, ấm cúng, giúp mọi thành viên trong gia đình kết nối với nhau nhiều hơn.

Với chi phí xây dựng khoảng 1,7 tỉ đồng, kiến trúc sư đã xây dựng nên một không gian sống thú vị, ấm cúng, giúp mọi thành viên trong gia đình kết nối với nhau nhiều hơn.

Tầng một là không gian của phòng khách, bếp và bàn ăn...

Tầng một là không gian của phòng khách, bếp và bàn ăn...

Đối với không gian bên trong, các khối chứa mỗi chức năng khác nhau sẽ được sắp xếp đan xen .

Đối với không gian bên trong, các khối chứa mỗi chức năng khác nhau sẽ được sắp xếp đan xen .

Các khoảng trống giữa các khối sẽ là không gian chung cho gia đình và cho giao thông.

Các khoảng trống giữa các khối sẽ là không gian chung cho gia đình và cho giao thông.

Ánh sáng tự nhiên luôn là điều rất cần trong ngôi nhà. Ngoài việc giúp tiết kiệm điện năng, nó còn mang lại sinh khí cho ngôi nhà.

Ánh sáng tự nhiên luôn là điều rất cần trong ngôi nhà. Ngoài việc giúp tiết kiệm điện năng, nó còn mang lại sinh khí cho ngôi nhà.

Bếp và bàn ăn có tông màu gỗ hiện đại.

Bếp và bàn ăn có tông màu gỗ hiện đại.

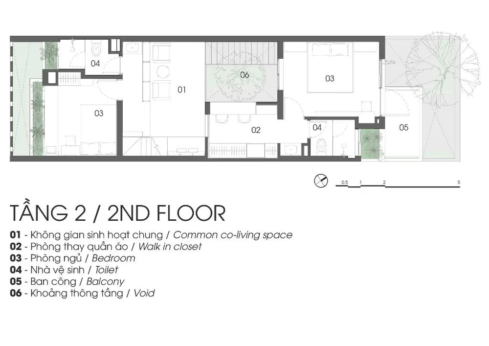
Tầng hai là không gian sinh hoạt chung, ô giếng trời và sân chung, phòng ngủ chính...

Tầng hai là không gian sinh hoạt chung, ô giếng trời và sân chung, phòng ngủ chính...

Các khối đan xen với nhau còn giúp tạo ra các con đường cho gió có thể luồn lách khắp nhà.

Các khối đan xen với nhau còn giúp tạo ra các con đường cho gió có thể luồn lách khắp nhà.

Kiến trúc sư cho biết, ngôi nhà có hai lớp thông gió thụ động, một là thông gió cho từng phòng và hai là thông gió cho toàn nhà.

Kiến trúc sư cho biết, ngôi nhà có hai lớp thông gió thụ động, một là thông gió cho từng phòng và hai là thông gió cho toàn nhà.

Tất cả các phòng đều tiếp xúc với cây xanh, thiên nhiên và đều được bố trí thông gió thụ động nên rất thông thoáng.

Tất cả các phòng đều tiếp xúc với cây xanh, thiên nhiên và đều được bố trí thông gió thụ động nên rất thông thoáng.

Trong mỗi khối kín là các chức năng riêng tư như phòng ngủ, phòng tắm, kho và giặt phơi hay khối hở ở tầng một thì là bếp và bàn ăn.

Trong mỗi khối kín là các chức năng riêng tư như phòng ngủ, phòng tắm, kho và giặt phơi hay khối hở ở tầng một thì là bếp và bàn ăn.

Khi đóng cửa phòng cho các nhu cầu sinh hoạt riêng tư, mỗi phòng đều có một mặt tiếp xúc với thiên nhiên với khe lấy gió.

Khi đóng cửa phòng cho các nhu cầu sinh hoạt riêng tư, mỗi phòng đều có một mặt tiếp xúc với thiên nhiên với khe lấy gió.

Không khí sẽ được đối lưu qua ô giếng trời được thiết kế hở

Không khí sẽ được đối lưu qua ô giếng trời được thiết kế hở

Mỗi phòng đều có hai hướng mở cửa ở đầu này và đầu kia của phòng theo nguyên lý thông gió xuyên phòng.

Mỗi phòng đều có hai hướng mở cửa ở đầu này và đầu kia của phòng theo nguyên lý thông gió xuyên phòng.

Tầng ba là không gian thờ, ô giếng trời và khoảng thông tầng nhìn xuống sân chung, sân thượng trước, sau...

Tầng ba là không gian thờ, ô giếng trời và khoảng thông tầng nhìn xuống sân chung, sân thượng trước, sau...

Các ban công như ruộng bậc thang nhằm khai thác ưu điểm của khu đất hướng Đông Bắc. Nơi đây, gia chủ sẽ có các buổi chiều tối ngồi ngắm sao, hóng gió tiếp xúc trực tiếp với thiên nhiên.

Các ban công như ruộng bậc thang nhằm khai thác ưu điểm của khu đất hướng Đông Bắc. Nơi đây, gia chủ sẽ có các buổi chiều tối ngồi ngắm sao, hóng gió tiếp xúc trực tiếp với thiên nhiên.

Đừng bỏ lỡ

Video đang xem nhiều

Đọc thêm