Nhà ống lấy sáng từ 'chiếc phễu' khổng lồ
(PLO)- Nhờ thiết kế thông minh của kiến trúc sư, công trình Minaka House vẫn sáng và thoáng mát dù là nhà ống có diện tích hẹp.
 |
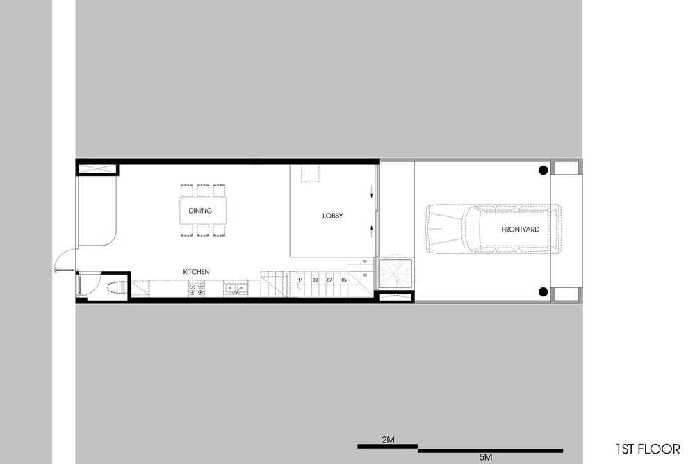
Minaka house được xây dựng trên một lô đất đô thị điển hình ở Việt Nam với một mặt thoáng, 3 mặt giáp công trình khác. |
 |
Gạch đỏ làm nổi bật màu xanh của cây cỏ trên các khoảng không lùi vào giữa các tầng. |
 |
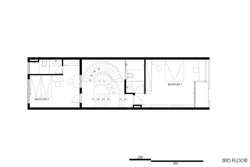
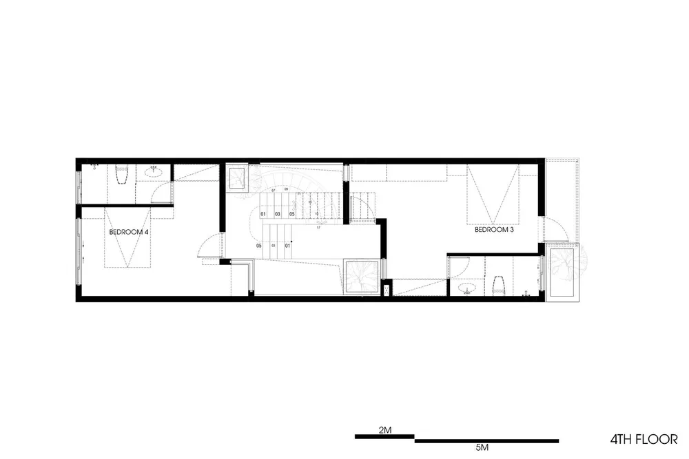
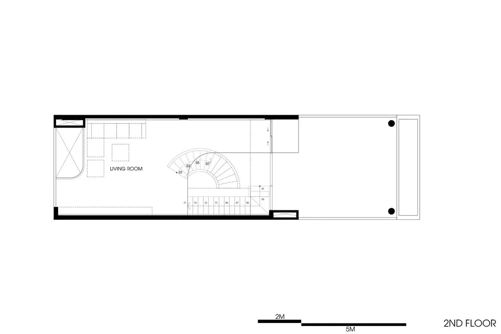
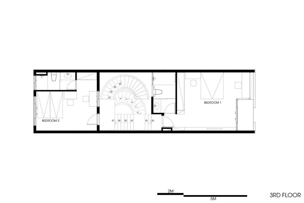
Đối với công trình, chủ nhà có nhu cầu sử dụng lớn nên kiến trúc sư đã mở rộng không gian sử dụng theo chiều dọc nhà. |
 |
Ngôi nhà là không gian sống của một gia đình sáu thành viên, do kiến trúc sư Hinzstudio thiết kế. |
 |
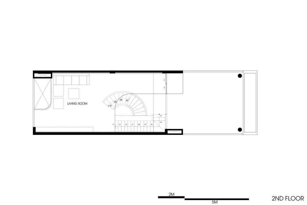
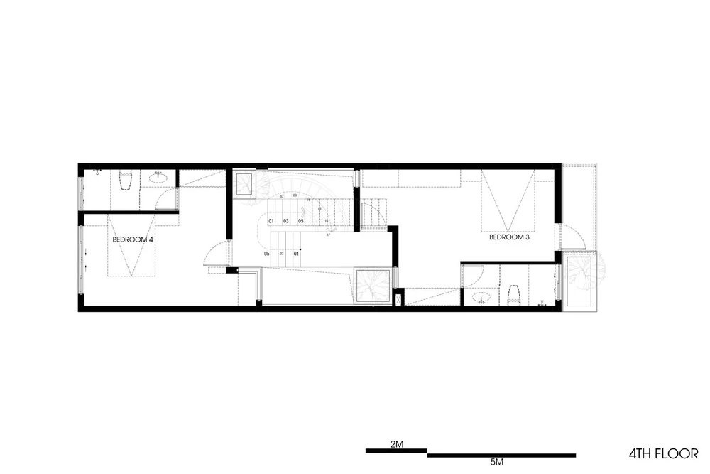
Các khối trên lùi dần so với khối dưới nhà. |
 |
Cách lùi các khối nhà giúp cho công trình trở nên thông thoáng hơn với không gian mặt phố nhà ống năm tầng. |
 |
Cả ngôi nhà lấy ánh sáng mặt trời thông qua một "cái phễu" khổng lồ ở giữa nhà. |
 |
Mọi khoảng trống đều bố trí thêm cây leo tạo sự xanh mát cho công trình. |