Căn hộ 30 m² ở Sài Gòn rộng gấp đôi sau cải tạo

(PLO)- Nhóm thiết kế đã bỏ các vách ngăn trong căn hộ khiến không gian sống như rộng gấp đôi và sáng sủa hơn.

Căn hộ nằm trong một khu chung cư cũ trên đường Phạm Ngọc Thạch, quận 3, TP.HCM với diện tích khoảng 30 m².

Chủ nhà là một đôi bạn trẻ muốn cải tạo lại căn hộ cũ đã xuống cấp làm showroom mỹ phẩm nhỏ kết hợp ở và sinh hoạt.

Trước khi cải tạo căn hộ đã bị xuống cấp, đặc biệt là khu vực nấu ăn chung với nhà vệ sinh bên trong. Trong khi đó, căn hộ khi lại dư một khu vực vệ sinh cá nhân liền kề bên ngoài không được tận dụng.

Thiết kế cũ vừa chiếm không gian trong một tổng thể có phần hạn chế về diện tích, đồng thời lại có những bất cập trong quá trình sinh hoạt hằng ngày.

Căn hộ chỉ có diện tích 30 m² trên đường Phạm Ngọc Thạch, quận 3, TP.HCM.

Toàn bộ trần, tường, sàn, hệ cửa gỗ... qua một thời gian dài sử dụng đã xuống cấp.

khu vực nấu ăn chung với nhà vệ sinh bên trong căn hộ rất bất lợi cho sinh hoạt của gia đình.

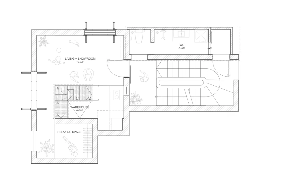
Để phục vụ nhu cầu vừa để ở vừa kinh doanh cùng nguồn kinh phí 150-200 triệu đồng, nhóm thiết kế 6Atelier đã dỡ bỏ vách ngăn giữa khu vực sinh hoạt chung, khu bếp và nhà vệ sinh để mở toàn bộ không gian bên trong căn hộ.

Sau cải tạo, căn hộ tưởng chừng như rộng gấp đôi.

Tuy căn hộ chỉ có diện tích 30 m² nhưng rộng rãi và thoáng như 60 m². Căn hộ được quy hoạch không gian chặt chẽ bằng cách tận dụng cao trần 3,5 m hiện có.

Các sàn lửng đa chức năng được bố trí ở cao độ phù hợp và liên kết với nhau thông qua hệ cầu thang đa dụng. Mặt ngoài là kệ trưng bày, mặt trong là kho và sàn phụ trợ.

Việc tận dụng độ cao trần 3,5 m hiện hữu kết hợp với các cao độ khác nhau của hệ sàn lửng phụ trợ giúp người sử dụng vẫn đảm bảo sự thoải mái.

Bên cạnh đó, cách thiết kế này mang lại nhiều trải nghiệm thú vị, mới mẻ trong sinh hoạt hằng ngày.

Không gian gọn sạch, màu trung tính giúp làm nổi bật thêm các đồ vật mà chủ nhà có thể sẽ tích lũy thêm trong quá trình ở. Đồng thời nhấn mạnh thêm hệ cửa sổ của tòa nhà hiện có. 

Hệ tủ kệ thang là tổ hợp của nhiều tủ nhỏ ghép lại với nhau, khi gia chủ không còn nhu cầu ở tại căn hộ, toàn bộ hệ tủ có thể được tháo lắp, dễ dàng vận chuyển qua nơi ở mới.

Căn hộ dù nhỏ nhưng vẫn sáng thoáng.

Nhóm thiết kế sử dụng các loại vật liệu phổ thông phù hợp với ngân sách cũng như quy mô tạo nên một tồng thể gọn sạch.

Đừng bỏ lỡ

Video đang xem nhiều

Đọc thêm