Caro House xây hướng phía Tây vẫn thừa sức mát

(PLO)- Nhờ giải pháp chống nắng Tây gay gắt cực xuất sắc của KTS Nguyễn Hiếu, ngôi nhà bốn tầng của gia đình trẻ vẫn xanh mát như resort.

Caro House nằm trong khu đô thị mới của thành phố Vĩnh Yên, tỉnh Vĩnh Phúc - một khu vực không có nhiều người sinh sống. Ngôi nhà nằm trên địa hình không bằng phẳng và ở độ sâu khoảng 2 m.

Sở dĩ thiết kế nhà bốn tầng này có tên gọi Caro House bởi vì mặt tiền công trình có sự kết hợp giữa những ô vuông caro sắp xếp theo kiểu bàn cờ, vừa tạo điểm khác biệt vừa giải quyết được cái nắng, nóng của ngôi nhà hướng Tây.

Ngôi nhà trong giai đoạn xây phần thô.

và đã trát vữa...

Để thiết kế ngôi nhà phù hợp với gia đình ba thế hệ, bao gồm cặp vợ chồng trẻ, trẻ em và mẹ của họ nhưng vẫn có thể tận dụng lợi thế của địa hình để giảm chi phí xây dựng và tối ưu hóa việc sử dụng khu vực.

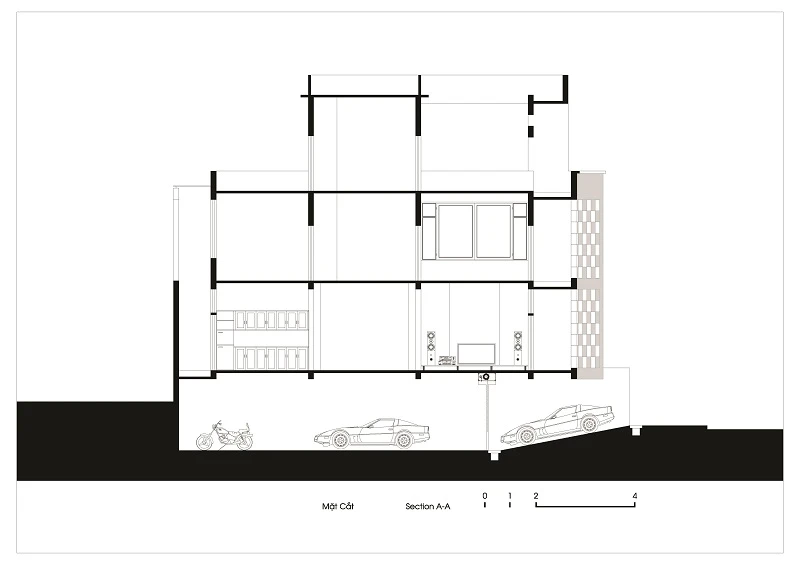
KTS và chủ nhà lên ý tưởng thiết kế một tòa nhà với tầng hầm dành cho bãi đỗ xe hoặc nhà kho mà không ảnh hưởng đến diện tích còn lại để sinh sống.

Góc nghiêng thần thánh của Caro House.

KTS thiết kế tầng hầm để tận dụng tối đa diện tích ngôi nhà.

Caro House gặp bất lợi từ mặt tiền hướng Tây hứng trọn ánh nắng trực tiếp từ mặt trời. Đó cũng là điều trăn trở của KTS làm thế nào để giảm tác động từ ánh nắng mà vẫn đảm bảo thông gió đầy đủ cho ngôi nhà.

Về bài toán trên, KTS Nguyễn Hiếu đã nghĩ cách tạo ra một vùng đệm giữa khu vực sinh sống và bên ngoài. Điều này sẽ biến nhiệt độ bên trong ngôi nhà trở nên mát mẻ và không bị ảnh hưởng bởi gió và mặt trời từ phía Tây. Không gian đối lưu cũng được bố trí sao cho bên trong ngôi nhà sẽ tràn ngập ánh sáng tự nhiên.

Khoảng đệm bên trong giúp ngôi nhà tránh được cái nắng và cái nóng hướng Tây.

Chủ nhà vốn là những người lãng mạn, họ muốn sống và cảm nhận một không gian rừng cây và có thể tận hưởng hoàng hôn từ các phòng. Đó cũng là lý do tại sao KTS chọn thiết kế các ô caro thay vì khối bê tông với kích thước phù hợp để hoàng hôn có thể được nhìn toàn cảnh khi mặt trời lặn.

KTS thiết kế trồng nhiều cây xanh tại các khoảng đệm.

Hoàng hôn trở nên đẹp hơn khi chiếu qua khung cửa.

Phòng ngủ cũng trở nên thơ mộng hơn với ánh hoàng hôn chiếu qua từng ô caro nhỏ.

Chủ nhà muốn cảm nhận sự khác biệt và muốn có âm thanh của nước bên trong ngôi nhà. KTS Nguyễn Hiếu đã nghiên cứu và chọn nhiều điểm nhấn tạo sự khác biệt trong phòng khách. Đó là thác nước chảy trên bề mặt đá tự nhiên. Qua bàn tay biến hóa của KTS bây giờ phòng khách không còn để xem TV mà để thư giãn; thưởng thức một tách trà trong khi ngắm hoàng hôn lắng nghe âm thanh róc rách từ thác nước.

Đây là khu vực đối lưu của ngôi nhà. Một giải pháp tránh nóng, tránh nắng của KTS bên trong ngôi nhà.

Những vệt nắng len lỏi từng ngóc ngách của ngôi nhà.

Ngồi ở phòng khách xem ti vi và nghe tiếng nước chảy róc rách thư thái cho chủ nhà.

Mặt tiền ngôi nhà cũng được thiết kế với từng ô vuông caro tạo nét khác biệt.

Khoảng không gian trước của Caro House.

Sơ đồ ngôi nhà 4 tầng.

Đừng bỏ lỡ

Video đang xem nhiều

Đọc thêm