Mê tít ngôi nhà ở Sơn La có không gian thoáng đãng tuyệt đối
(PLO)- Ngôi nhà ở Sơn La được thiết kế thoáng hết cỡ để phù hợp không gian vừa cho gia đình sinh sống vừa để kinh doanh.
 |
QBY House có diện tích 600 m² tại tỉnh Sơn La. |
 |
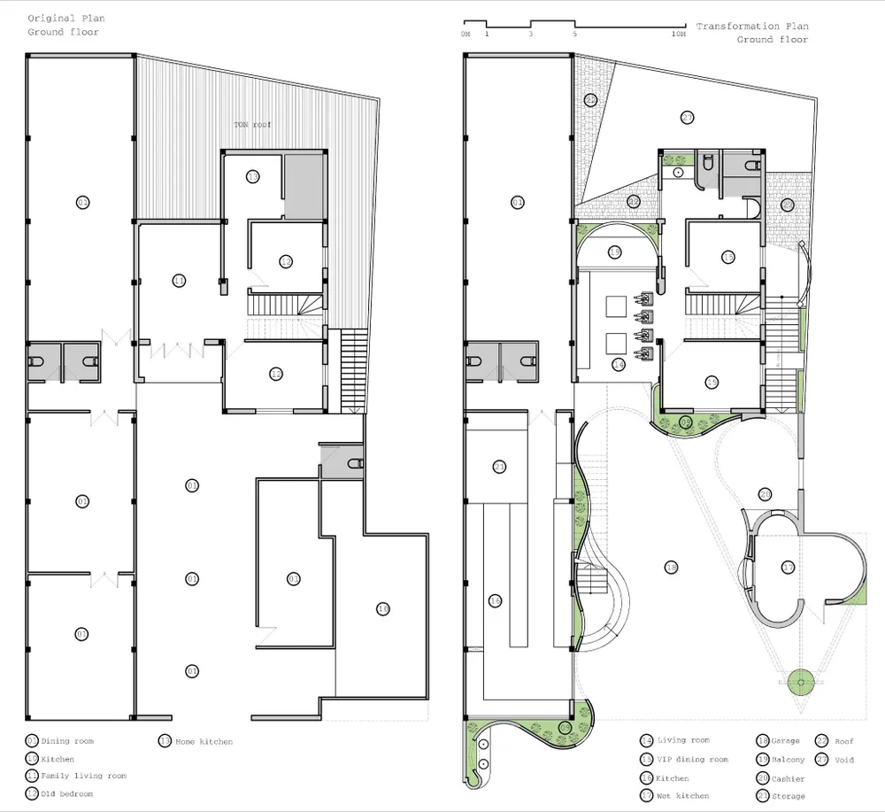
Ngôi nhà được cải tạo từ một ngôi nhà cũ kết hợp với một nhà hàng nhỏ. |
 |
| Không gian cũ của ngôi nhà là nơi ở xen lẫn kinh doanh gây nhiều bất tiện cho cuộc sống gia đình. |
 |
Mục đích của kiến trúc sư Trung Tran Studio là muốn cải tạo ngôi nhà nhằm tạo không gian riêng biệt. |
 |
Qua đó, công trình sẽ đảm bảo việc kinh doanh cũng như môi trường sống cho các thành viên trong gia đình có nhiều thế hệ và đông con. |
 |
Không gian sinh hoạt của gia đình đã được đưa xuống dưới (tầng bán âm), nơi mọi người có thể nhìn thấy cánh đồng lúa. |
 |
Phần trên dành cho khu vực nhà ăn với các không gian chức năng như bãi để xe, khu bếp ăn, bếp củi phục vụ các món ăn dân tộc. |
 |
Sân trên dành cho khu vực nhà hàng và sân dưới dành cho khu vực sinh hoạt được tổ chức để phù hợp với các chức năng khác nhau. |
 |
| Phần mái nhà phòng hội trường được đặt chéo 45 độ, đan xen với mái ngói của ngôi nhà cũ. |
 |
Tất cả các phòng chức năng đều đảm bảo được ánh sáng, tầm nhìn ra các khoảng sân lớn nhỏ. |
 |
Cầu thang cũ nối trực tiếp từ sân trong lên, tạo thành lối đi riêng lên tầng trên. |
 |
Dù ở không gian nào đều có nắng, có gió và sự riêng tư. |
 |
Màu đỏ của ngói mới và cũ hòa quyện tạo nên nét đặc biệt nhưng hài hòa. |
 |
Các phòng chức năng của nhà hàng được phân bổ ở tầng một là các phòng khép kín và tầng hai là sảnh lớn. |
 |
Kiến trúc sư tận dụng những vật liệu cũ sẵn có tại địa phương và một phần của ngôi nhà cũ. |
 |
Vật liệu được sử dụng khiến việc xây dựng trở nên đơn giản và phù hợp hơn với người dân địa phương. |