Ngôi nhà 4 tầng xây trên đất méo vẫn đẹp
(PLO)- NDC house tọa lạc ở quận 1 (TP.HCM) xây trên mảnh đất có hình thù độc đáo với mặt tiền nhỏ hẹp còn sau nhà thì vuông.
 |
NDC house có tổng diện tích sử dụng khoảng 300 m², thiết kế bởi kiến trúc sư của Tropical Space. |
 |
Với khu đất có phần nở hậu vuông vức kiến trúc sư đã tận dụng hình dạng đặc biệt của khu đất để tạo ra thiết kế thông thoáng cho tất cả các hướng. |
 |
Tầng trệt của NDC house là phòng khách, bếp và bàn ăn lớn. |
 |
Kiến trúc sư đề xuất giải pháp kết nối giữa khe sáng, tầng lửng và không gian thông tầng lớn kết hợp với việc mở ô cửa lớn kết nối giữa sân trước. |
 |
Không gian bếp thiết kế một góc riêng biệt. |
 |
Tầng lửng của NDC house là không gian sinh hoạt gia đình thường xuyên, nơi cả nhà cùng chơi đàn piano. |
 |
Tấm phản gỗ cũng nơi đọc sách và thư giãn. |
 |
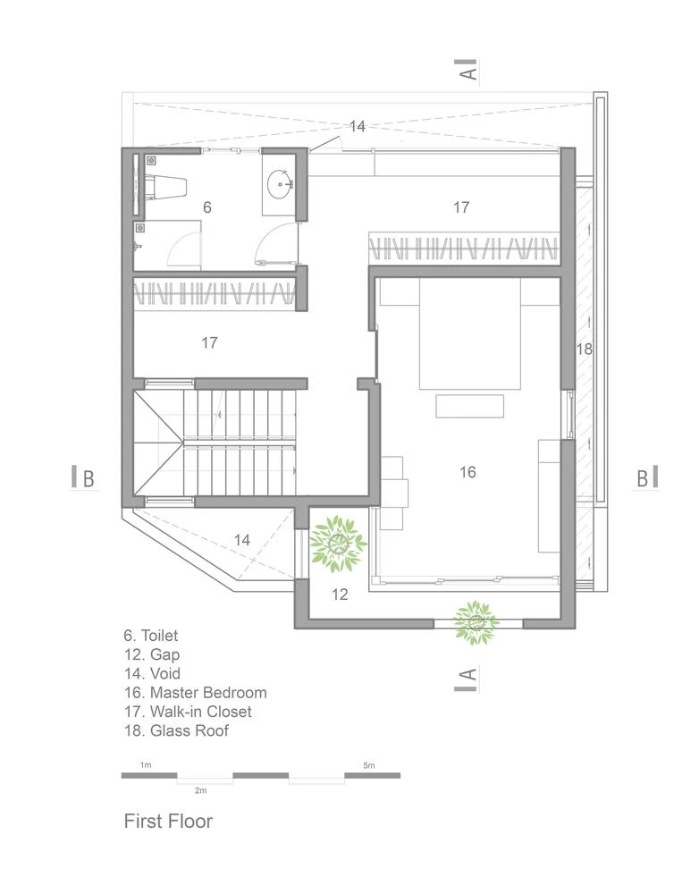
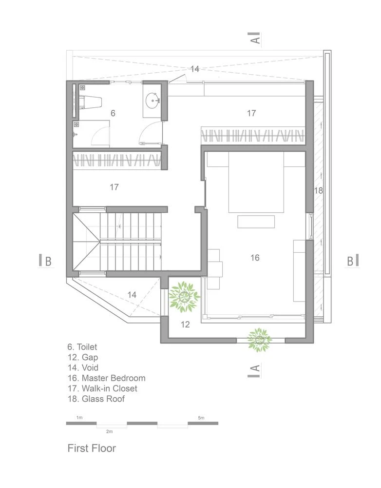
Lầu một dành cho phòng ngủ master đầy đủ tiện nghi như phòng tắm, phòng quần áo lớn và một góc làm việc nhỏ. |
 |
Nội thất trong nhà làm bằng gỗ từ cây chò chỉ xẻ ra và sấy khô. |
 |
| Phần gỗ lớn được chọn làm bàn ăn, tấm phản gỗ ngồi đọc sách ở tầng lửng và giường ngủ lớn phòng master. |
 |
Phòng vệ sinh rộng rãi, thoáng mát. |
 |
Sân thượng của ngôi nhà. |